**Standout Features:**
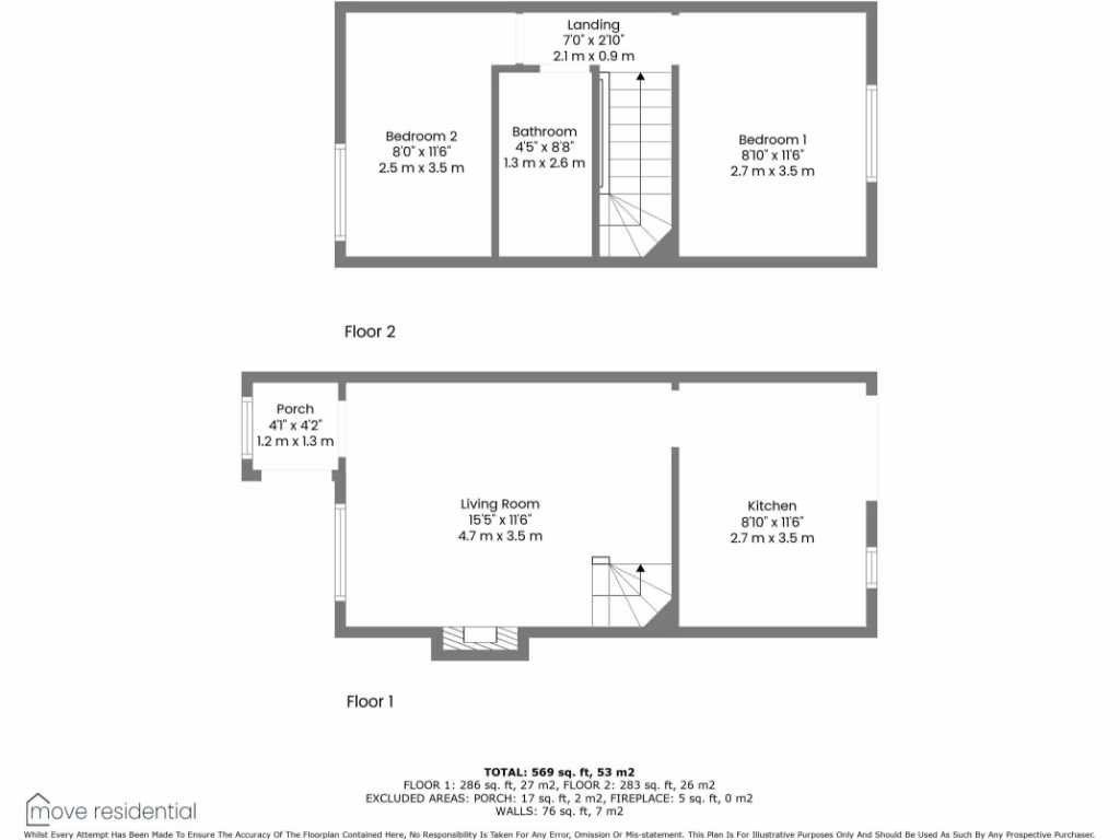
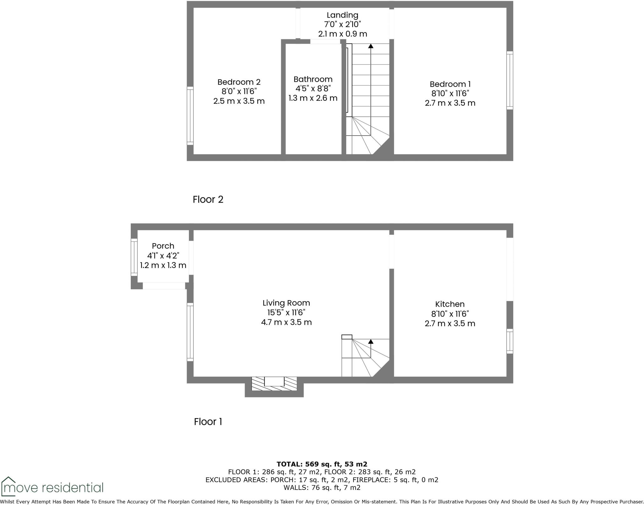
- Modern two-bedroom mid-terraced property in vibrant Wavertree, L15
- Spacious lounge and a well-fitted kitchen diner with direct access to the garden
- Two good-sized double bedrooms and a modern shower room
- Large enclosed rear garden with patio and lawn areas, perfect for outdoor living
- Off-road parking and efficient double glazing with central heating
- Conveniently located near amenities and transport links
**Potential Concerns:**
- Located in an area with high crime rates and deprivation levels
- The overall size is compact, with a total of 569 sq ft, which may limit future expansion
This contemporary mid-terraced home in the sought-after area of Wavertree is an exceptional opportunity for first-time buyers or small families seeking a blend of comfort and convenience. The inviting lounge flows into a modern kitchen diner, perfect for both relaxation and entertaining. Upstairs, you'll find two sizable double bedrooms complete with a shower room, catering to your living needs.
Step outside to a generous rear garden featuring both patio and lawn—an oasis for outdoor enjoyment in an urban setting. The property further offers off-road parking, essential for those who commute. While the local area has its challenges, such as elevated crime rates, the home’s proximity to amenities and transport links makes it a compelling option. Given its excellent maintenance and modern features, this property is expected to attract significant interest—so don’t miss out! Schedule your viewing today to envision the potential of your new home.
2 bedroom terraced house for sale in Grosvenor Road, Wavertree, Liverpool, L15 — £130,000 • 2 bed • 1 bath • 834 ft²
2 bedroom terraced house for sale in Grosvenor Road, Wavertree, Liverpool, L15 — £120,000 • 2 bed • 1 bath • 638 ft²
2 bedroom terraced house for sale in Pennycress Drive, Liverpool, Merseyside, L11 — £150,000 • 2 bed • 1 bath • 697 ft²
3 bedroom terraced house for sale in Brierfield Road, Wavertree, Liverpool, L15 — £250,000 • 3 bed • 1 bath • 916 ft²
3 bedroom terraced house for sale in Cranborne Road, Wavertree, Liverpool, L15 — £160,000 • 3 bed • 1 bath • 773 ft²
3 bedroom terraced house for sale in Avondale Road, Liverpool, Merseyside, L15 — £220,000 • 3 bed • 1 bath • 959 ft²






















































