Bright three-bedroom end terrace — affordable freehold in Wavertree, ready to personalise.
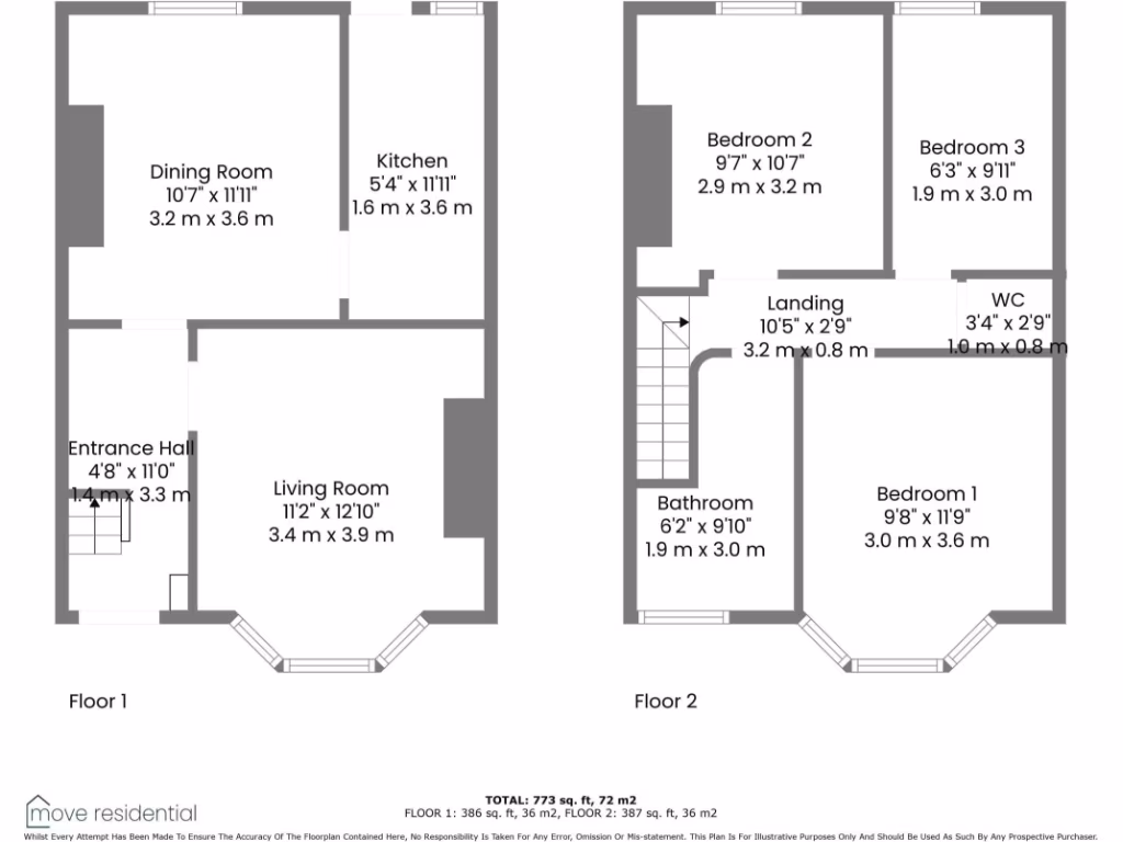
End-terrace with bay-fronted family lounge
Three substantial bedrooms across 773 sq ft
Modern fitted kitchen with built-in appliances
Contemporary bathroom suite plus separate WC
Low-maintenance enclosed rear yard
Freehold tenure; council tax very cheap
Small overall plot; limited outdoor/storage space
Located in a very deprived area; average crime levels
A bright three-bedroom end-terrace offering a compact, well-laid-out home in Wavertree. The property’s bay-fronted lounge, separate dining room and modern kitchen give comfortable living space across 773 sq ft, suited to first-time buyers seeking a move-in-ready core with room to personalise. The modern bathroom and separate WC add everyday convenience, while the enclosed, low-maintenance rear yard is practical for outdoor use without upkeep.
This house sits in a mixed urban neighbourhood popular with young families and students. Local broadband and mobile signal are strong and there is no flood risk. Nearby schools include several rated Good and one Outstanding secondary, making the location sensible for buyers with school-age children. Council tax is very low, helping reduce running costs.
Important facts to consider: the immediate area scores as very deprived and crime is around average; buyers should budget for ongoing maintenance and selective updating to suit long-term tastes. The property’s modest plot and overall small size mean garden space and storage are limited. For investors or first-time buyers this is a practical, affordable freehold terrace with potential to add value through targeted cosmetic improvements.
3 bedroom terraced house for sale in Gainsborough Road, Wavertree, Liverpool, L15 — £180,000 • 3 bed • 1 bath • 969 ft²
2 bedroom terraced house for sale in Grosvenor Road, Wavertree, Liverpool, L15 — £130,000 • 2 bed • 1 bath • 834 ft²
3 bedroom terraced house for sale in Cranborne Road, Wavertree, L15 — £160,000 • 3 bed • 1 bath • 830 ft²
3 bedroom terraced house for sale in Northdale Road, Wavertree, Liverpool, L15 — £190,000 • 3 bed • 1 bath • 958 ft²
3 bedroom terraced house for sale in Eastdale Road, Liverpool, L15 — £189,950 • 3 bed • 1 bath • 786 ft²
3 bedroom terraced house for sale in Northdale Road, Wavertree, Liverpool, L15 — £160,000 • 3 bed • 1 bath • 838 ft²










































































