Move-in-ready three-bed near town centre and schools.
Freehold Victorian terraced house with period character features
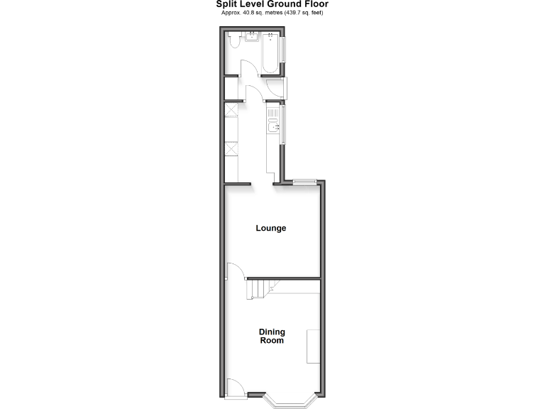
About 1,045 sqft; dining room plus separate lounge
Three bedrooms; one family bathroom only
Low-maintenance rear garden and small plot size
Solid brick walls with no assumed insulation (as built)
Double glazing present; install date unknown
Close to town centre, schools, amenities and transport links
Local recorded crime levels are very high
A well-presented Victorian terraced house offering three bedrooms, generous reception rooms and a low-maintenance rear garden. Neutral décor throughout makes this property move-in ready for first-time buyers, small families or buy-to-let investors looking for immediate occupancy.
The layout includes a dining room and separate lounge, kitchen and a single bathroom, with bedrooms arranged over the upper floor. Period features and original brick exterior provide character while double glazing and mains gas central heating offer everyday comfort. The property is freehold and around 1,045 sq ft in size.
Practical points to note: the building is solid brick with no assumed cavity insulation, glazing install date is unknown and the rear garden/plot is small. The area has excellent transport links and many local amenities, but recorded local crime levels are very high; buyers should factor this into resale and insurance considerations.
Overall this home suits first-time buyers seeking a character property close to schools and the town centre, and investors looking for a centrally located rental with straightforward upkeep. Any buyer should verify fixtures, fittings and legal details with their solicitor.
2 bedroom terraced house for sale in North Street, Sittingbourne, Kent, ME10 — £240,000 • 2 bed • 1 bath • 636 ft²
3 bedroom terraced house for sale in First Avenue, Chatham, Kent, ME4 — £260,000 • 3 bed • 2 bath • 829 ft²
3 bedroom terraced house for sale in Victoria Road, Chatham, Kent, ME4 — £280,000 • 3 bed • 1 bath • 937 ft²
3 bedroom end of terrace house for sale in Heathorn Street, Maidstone, Kent, ME14 — £325,000 • 3 bed • 1 bath • 980 ft²
3 bedroom terraced house for sale in Connaught Road, Chatham, Kent, ME4 — £230,000 • 3 bed • 1 bath • 765 ft²
3 bedroom terraced house for sale in Bergamot Close, Sittingbourne, Kent, ME10 — £310,000 • 3 bed • 2 bath • 797 ft²














































