Listed farmhouse with two barns and planning consents on a large paddock.
Grade II listed Cornish farmhouse with strong original character
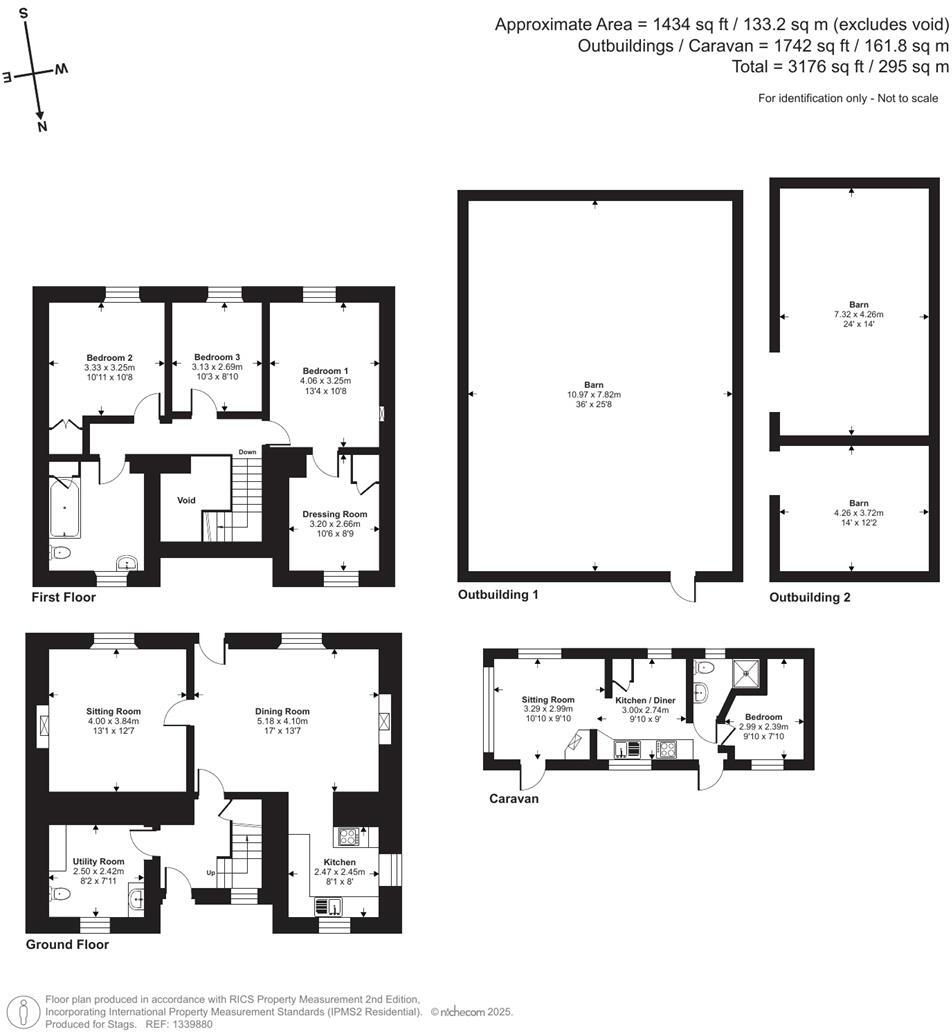
A rare rural development package in South East Cornwall, this Grade II listed Cornish farmhouse sits within a very large paddock and includes two stone barns with planning potential. The farmhouse retains strong character—exposed stone, beams, wood burners—and sits in an elevated, sheltered position with far-reaching countryside views and designated off‑street parking.
Significant uplift potential arises from planning consents: Listed Building Consent to convert and extend the stone threshing barn (PA22/08761 & PA22/08762) and Prior Approval (Class Q) for conversion of an agricultural barn to a dwelling (PA25/05655). These permissions reduce some planning risk, but listed status means restoration and any changes will need careful specialist input and likely higher-cost materials and oversight.
Practical considerations: the main house offers 3–4 bedrooms currently (reporting lists 10 bedrooms across the site), a single family bathroom and EPC Band F. The outbuildings are in need of repair; some corrugated roof sections and general refurbishment works are required. Services are mains electricity, private metered water, and a shared septic tank; the static caravan is included with sale but must be removed on completion of the Class Q barn.
This opportunity suits a developer, investor or experienced owner-occupier seeking a character property with conversion upside. Budget realistically for listed‑building works, structural repairs to barns, and upgrades to heating and services to deliver new dwellings or an enhanced family estate.
 4 bedroom detached house for sale in North Muchlarnick, Pelynt, Looe, PL13 — £495,000 • 4 bed • 1 bath • 1434 ft²
 4 bedroom detached house for sale in North Muchlarnick, Pelynt, Looe, PL13 — £495,000 • 4 bed • 1 bath • 1434 ft² 4 bedroom detached house for sale in Higher Wringworthy Farm, Looe PL13 — £475,000 • 4 bed • 4 bath • 1759 ft²
 4 bedroom detached house for sale in Higher Wringworthy Farm, Looe PL13 — £475,000 • 4 bed • 4 bath • 1759 ft² Land for sale in West Tuelmenna Farm, Dobwalls, Nr. Liskeard, Cornwall, PL14 — £650,000 • 1 bed • 1 bath
 Land for sale in West Tuelmenna Farm, Dobwalls, Nr. Liskeard, Cornwall, PL14 — £650,000 • 1 bed • 1 bath 4 bedroom detached house for sale in East Taphouse, Liskeard, PL14 — £900,000 • 4 bed • 1 bath • 8347 ft²
 4 bedroom detached house for sale in East Taphouse, Liskeard, PL14 — £900,000 • 4 bed • 1 bath • 8347 ft² 4 bedroom detached house for sale in North Hill, Launceston, Cornwall, PL15 — £585,000 • 4 bed • 1 bath • 1098 ft²
 4 bedroom detached house for sale in North Hill, Launceston, Cornwall, PL15 — £585,000 • 4 bed • 1 bath • 1098 ft² Plot for sale in Treswell Farm, Congdons Shop, Launceston, Cornwall, PL15 — £275,000 • 1 bed • 1 bath
 Plot for sale in Treswell Farm, Congdons Shop, Launceston, Cornwall, PL15 — £275,000 • 1 bed • 1 bath


































































































