Commuter-friendly family home with garden and renovation potential.
Chain free — available with no upper chain
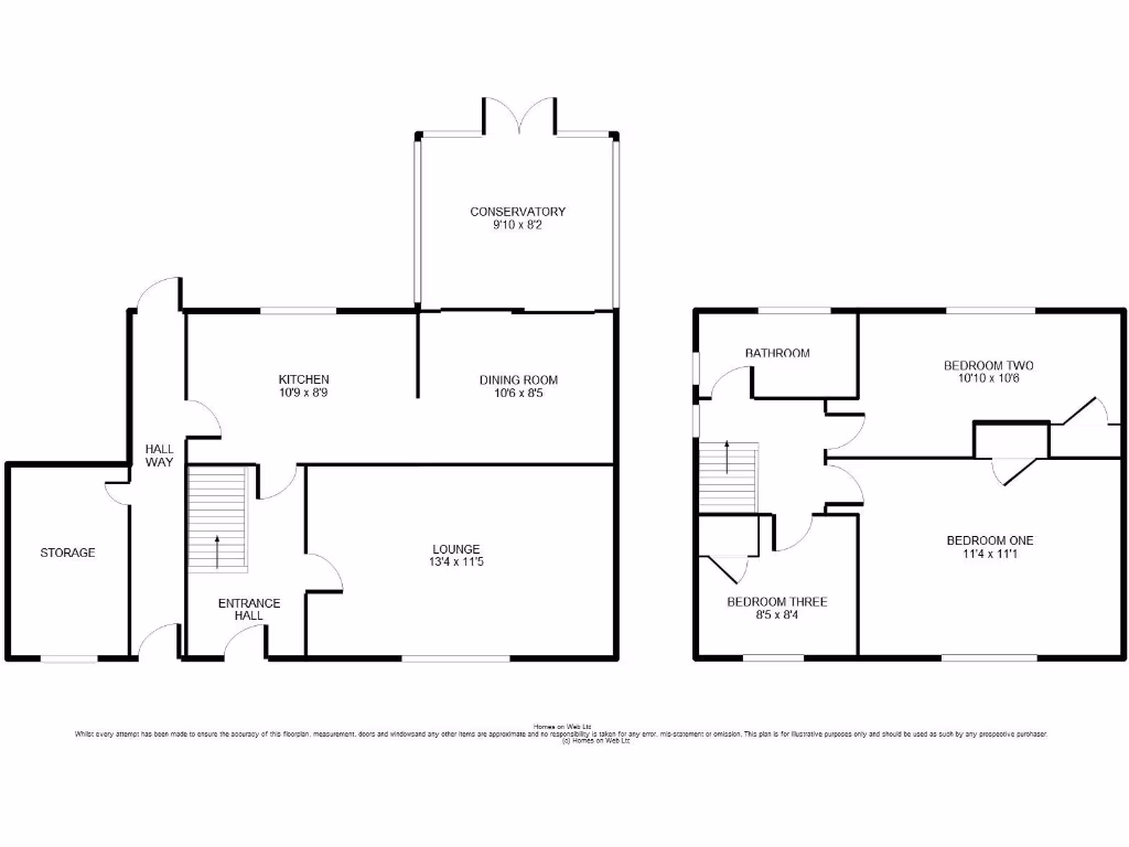
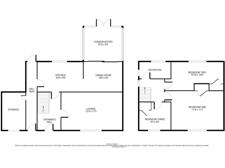
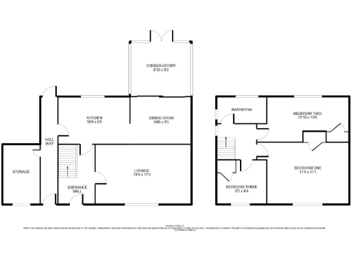
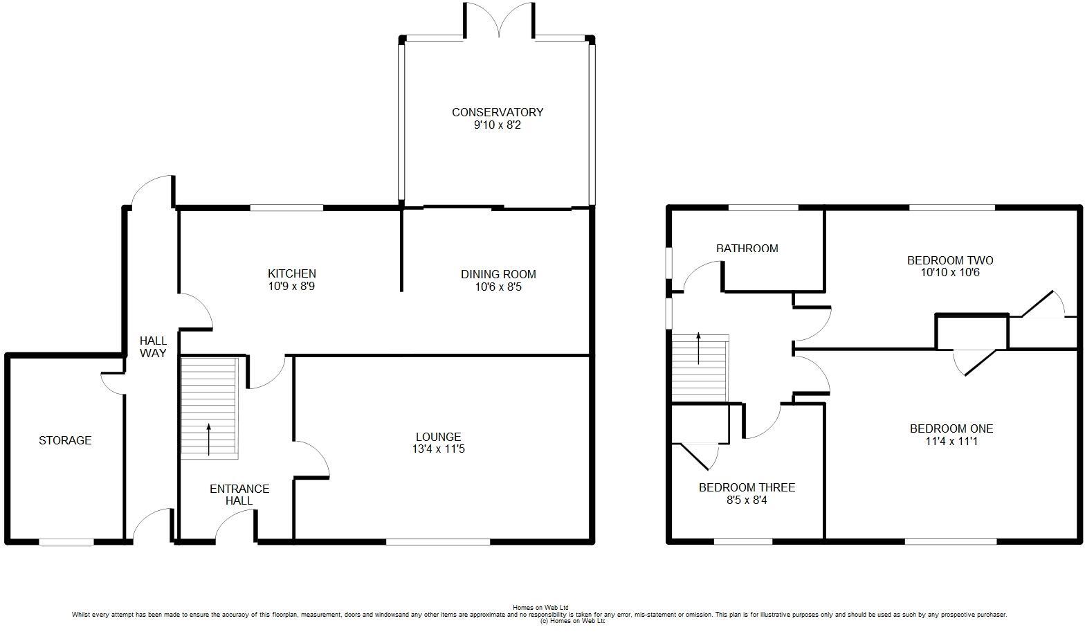
Ready for a family to add value, this three-bedroom semi-detached house in Bletchley is offered chain free and sat close to local shops and Bletchley mainline station (about one mile). The property includes three reception rooms, a conservatory and a south-facing rear garden — useful liveable space while you plan improvements. A garage and small driveway potential add parking convenience in a built-up area.
The interior is bright but requires renovation: cosmetic updating and modernising throughout to realise the home’s full potential. There is one family bathroom and built-in wardrobes to each bedroom; the layout suits family life with practical circulation and a useful storage/utility room. The home is approximately 850 sq ft and constructed in the mid-20th century with double glazing and gas central heating (boiler reportedly fitted January 2025).
Location is a strong selling point for commuting and everyday life: fast broadband and excellent mobile signal, short walks to Tesco Express, Co-op, schools and bus routes, and green spaces nearby. Note the surrounding area is relatively deprived and local schools vary in performance; buyers should see this as potential for improvement and value uplift.
Important negatives: the house needs renovation and updating, plot is small, and internal space is modest for a growing family. Buyers should carry out their own checks on services, structure and finishes before committing.
3 bedroom semi-detached house for sale in Milton Grove, Bletchley, Milton Keynes, MK3 — £350,000 • 3 bed • 1 bath • 1158 ft²
3 bedroom semi-detached house for sale in Orchard Close, Bletchley, Milton Keynes, MK3 — £375,000 • 3 bed • 1 bath • 990 ft²
3 bedroom semi-detached house for sale in Whaddon Way, Bletchley, Milton Keynes, MK3 — £290,000 • 3 bed • 1 bath • 911 ft²
3 bedroom semi-detached house for sale in Wye Close, Bletchley, Milton Keynes, MK3 — £339,995 • 3 bed • 1 bath • 645 ft²
3 bedroom semi-detached house for sale in Whiteley Crescent, Bletchley, Milton Keynes, MK3 — £325,000 • 3 bed • 1 bath • 1022 ft²
4 bedroom house for sale in Bushy Close, Bletchley, Milton Keynes, MK3 — £365,000 • 4 bed • 1 bath • 851 ft²


























































