Four-double-bedroom detached in St Bart's catchment with double garage and large garden, no onward chain..
St Bartholomew's catchment; short cut to local schools
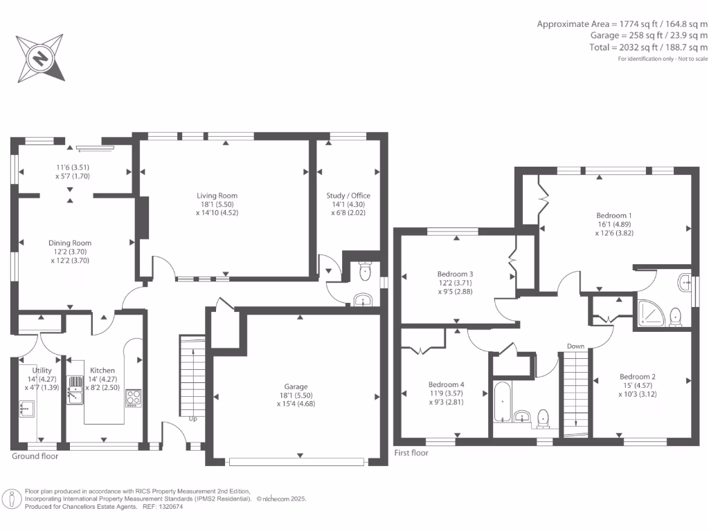
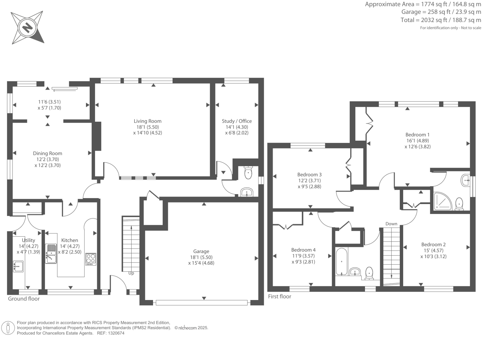
Set in a quiet cul‑de‑sac in Newbury, this spacious four‑double‑bedroom detached home offers 2,032 sq ft of adaptable living in St Bartholomew’s catchment. The house benefits from a refitted kitchen and separate refitted utility room, a dining room with garden doors, a study and a living room that looks over the large rear garden. The master bedroom includes an ensuite and three further double bedrooms provide flexible family space.
Externally there is driveway parking and a double garage on a generous plot. Broadband is fast, crime rates are low and there is easy pedestrian access to Andover Road and nearby primary and outstanding secondary schooling. The property is freehold and offered with no onward chain, simplifying a quick move.
Buyers should note the garden is currently overgrown and will need maintenance to realise its full potential. Council tax is described as expensive. Constructed in the late 1960s–1970s, the house presents solid living space and scope for cosmetic updating rather than a full structural overhaul. Overall this home suits families seeking space, good schools and a peaceful suburban setting with room to personalise.
4 bedroom detached house for sale in Newbury, Berkshire, RG14 — £660,000 • 4 bed • 3 bath • 2279 ft²
3 bedroom semi-detached house for sale in Newbury, Berkshire, RG14 — £370,000 • 3 bed • 1 bath • 1663 ft²
4 bedroom detached house for sale in Valley Road, Newbury, Berkshire, RG14 — £800,000 • 4 bed • 3 bath • 1969 ft²
3 bedroom semi-detached house for sale in Newbury, Berkshire, RG14 — £400,000 • 3 bed • 2 bath • 1120 ft²
4 bedroom detached house for sale in Floreat Gardens, Newbury, RG14 — £857,500 • 4 bed • 2 bath • 2243 ft²
4 bedroom detached house for sale in Tudor Road, Newbury, RG14 7QL, RG14 — £775,000 • 4 bed • 3 bath • 1543 ft²










































































































