Chain-free home with big garden, garage and strong local schools—ample scope to personalise..
- St Bartholomew's School catchment (Outstanding)
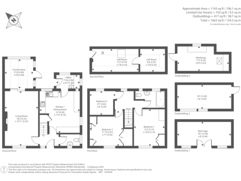
- Larger-than-average rear garden with several outbuildings
- Garage plus private driveway parking
- Enlarged kitchen/dining room and separate utility
- Living room with open fireplace and conservatory
- Loft room split into two areas for storage or conversion
- Requires renovation and modernisation throughout
- One bathroom plus downstairs cloakroom/WC only
A roomy three-bedroom semi-detached house in RG14, offered chain free and located at the edge of St Bartholomew's School catchment. The property sits on a larger-than-average plot with a long garden, several useful outbuildings and private driveway parking alongside a single garage.
Internally the layout suits family life: an enlarged kitchen/dining room with separate utility, a living room with open fireplace and an attached conservatory that faces the garden. There is one family bathroom plus a downstairs cloakroom/WC, and a loft room split into two areas that could provide flexible storage or extra living space subject to any necessary works.
The house requires renovation and modernisation throughout, which presents an opportunity to add value and tailor finishes. The construction is post-war cavity wall with double glazing and mains gas heating to radiators. Broadband and mobile signal are strong and the area is very affluent with low crime, making this a stable neighbourhood for families.
This is a practical purchase for buyers wanting space and scope rather than a turnkey finish. With St Bartholomew's School nearby and good local primary schools, the location suits families; investors and renovators will also find potential in the sizeable garden and additional loft space.
4 bedroom detached house for sale in Newbury, Berkshire, RG14 — £660,000 • 4 bed • 3 bath • 2279 ft²
4 bedroom detached house for sale in Newbury, Berkshire, RG14 — £725,000 • 4 bed • 2 bath • 2032 ft²
3 bedroom semi-detached house for sale in Elmhurst Road, Thatcham, RG18 3DH, RG18 — £375,000 • 3 bed • 2 bath • 1323 ft²
3 bedroom terraced house for sale in Newbury, Berkshire, RG14 — £350,000 • 3 bed • 1 bath • 818 ft²
3 bedroom semi-detached house for sale in Priory Road, Newbury, RG14 — £425,000 • 3 bed • 2 bath • 882 ft²
3 bedroom detached house for sale in Berkeley Road, Newbury, Berkshire, RG14 — £500,000 • 3 bed • 2 bath • 1846 ft²






















































































