Bright extended home with garden, parking and fast rail links to London.
Recent rear extension creating open-plan living and dining area
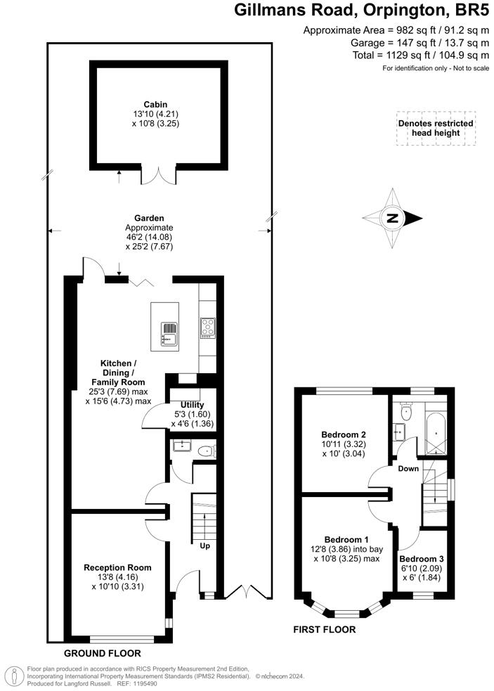
Light-filled and recently renovated, this well-proportioned three-bedroom semi offers practical family living on Gillmans Road. A rear extension creates an open-plan living and dining area that flows to the garden, while the living room’s large window and contemporary finishes give the home a bright, welcoming feel. The kitchen and bathroom both feature underfloor heating and modern fixtures for everyday comfort.
The property suits families who value school access and commuter links. Orpington and Chelsfield stations are a little over a mile away with direct trains into central London, and several good and outstanding local schools are within easy reach. Off-street parking and a decent rear plot with patio, lawn and a summerhouse add useful outdoor and storage options.
Practical details are straightforward: the house is freehold, approximately 982 sq ft, built in the 1950s–1960s with filled cavity walls and double glazing (installation date unknown). There is one family bathroom and current energy rating D; council tax sits above average (Band E). These are sensible considerations for buyers assessing ongoing running costs and family needs.
Overall this is a recently refurbished, ready-to-live-in family home with renovation finishes already in place, offering comfortable everyday living, good schools nearby and convenient commuter access. Buyers seeking additional space or further modernisation potential will find scope in the layout and garden.
3 bedroom semi-detached house for sale in Kynaston Road, Orpington, BR5 — £550,000 • 3 bed • 1 bath • 1161 ft²
3 bedroom semi-detached house for sale in Rowan Walk, Bromley, BR2 — £750,000 • 3 bed • 1 bath • 1195 ft²
3 bedroom semi-detached house for sale in The Highway, Orpington, BR6 — £650,000 • 3 bed • 1 bath • 999 ft²
3 bedroom semi-detached house for sale in Woodley Road, Orpington, BR6 — £550,000 • 3 bed • 1 bath • 1001 ft²
4 bedroom semi-detached house for sale in Alma Road, Orpington, BR5 — £600,000 • 4 bed • 2 bath • 1399 ft²
3 bedroom semi-detached house for sale in Sevenoaks Road, Orpington, BR6 — £850,000 • 3 bed • 3 bath • 1593 ft²






























































































