Ideal for growing families seeking warranties and contemporary finishes.
Over 2,000 sq ft across three storeys, large private plot
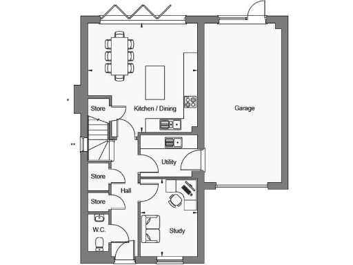
This newly built, three-storey link-detached at Birch Park offers more than 2,000 sq ft of living space and a large private plot. Designed for family living, the ground floor has an open-plan kitchen-dining area with bi-fold doors to a turfed rear garden, plus a separate utility, study and integral garage with driveway parking. The home is energy-efficient and comes with a 10-year Premier warranty and a 2-year builder warranty for added peace of mind.
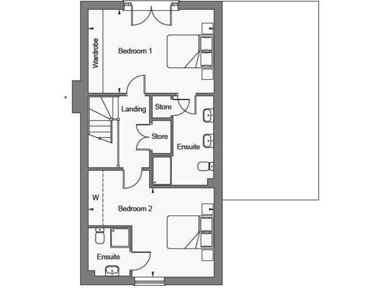
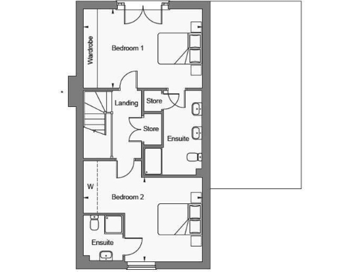
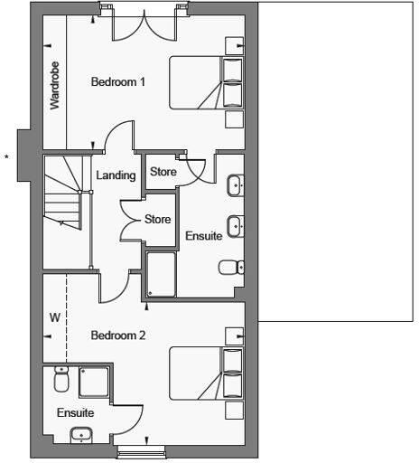
The layout provides four double bedrooms across the upper floors, with built-in wardrobes to the principal bedroom and multiple ensuite shower rooms shown in developer literature. Note: the structured data lists a single bathroom — buyers should confirm the final bathroom/ensuite count and layout before exchange. The show home will be available soon and estimated move-in is January–March 2026, so completion timing is subject to the developer’s programme.
Practical benefits include good broadband and mobile signal, nearby primary schools with Ofsted Good or Outstanding ratings, and local amenities such as sports facilities and bus routes. The development offers reservation incentives (tailor-made package, part-exchange options and a limited £20,000 contribution if reserved by the promotional date) — check full terms with the developer. Council Tax band is TBC.
Suit buyers seeking a contemporary, spacious family home with new-build warranties and low-maintenance finishes. Confirm final specification, room/bathroom configuration and completion dates with the sales team before committing, as plans, finishes and timings are subject to change.
4 bedroom detached house for sale in Panfield Road,
Bocking,
Braintree,
CM7 5BJ, CM7 — £585,000 • 4 bed • 1 bath
4 bedroom detached house for sale in Panfield Road,
Bocking,
Braintree,
CM7 5BJ, CM7 — £525,000 • 4 bed • 1 bath
4 bedroom detached house for sale in Panfield Road,
Bocking,
Braintree,
CM7 5BJ, CM7 — £575,000 • 4 bed • 1 bath
4 bedroom detached house for sale in Panfield Road,
Bocking,
Braintree,
CM7 5BJ, CM7 — £535,000 • 4 bed • 1 bath
4 bedroom detached house for sale in Panfield Road,
Bocking,
Braintree,
CM7 5BJ, CM7 — £500,000 • 4 bed • 1 bath
2 bedroom semi-detached house for sale in Panfield Road,
Bocking,
Braintree,
CM7 5BJ, CM7 — £325,000 • 2 bed • 1 bath










































































