Well-located family home with two receptions and cellar.
Victorian mid-terrace with freehold tenure
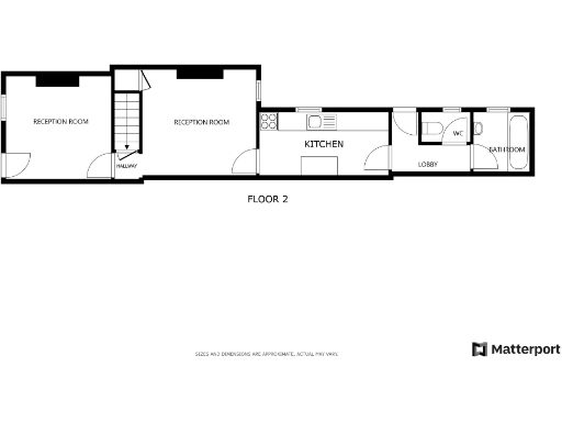
A traditional Victorian mid-terrace arranged over two floors, this freehold home offers practical family accommodation close to local schools and amenities. The layout includes two reception rooms, a cellar for storage, a kitchen, ground-floor bathroom plus separate WC, and three first-floor bedrooms — a straightforward, adaptable plan for everyday living.
The property benefits from mains gas central heating and double glazing, and the compact rear courtyard is low-maintenance. Its mid-terrace position and solid brick construction give character and durability, while the modest footprint suits buyers seeking efficient urban living near regular bus routes and local shops.
Important practical points: the house has an EPC rating of D and solid brick walls likely without cavity insulation, so energy efficiency improvements could be needed. Parking operates under a controlled permit zone — prospective buyers should check permit availability and costs with the council. The area is classified as very deprived, which affects local socio-economic profile.
This home will suit a family or investor looking for a well-located terrace with scope to modernise and improve efficiency. It’s presented in neutral, functional condition, letting new owners personalise finishes or plan targeted upgrades to add value.
3 bedroom terraced house for sale in Cromer Street, Evington, Leicester, LE2 — £260,000 • 3 bed • 1 bath • 958 ft²
2 bedroom terraced house for sale in Sawley Street, Leicester, LE5 — £230,000 • 2 bed • 1 bath • 905 ft²
3 bedroom terraced house for sale in Bartholomew Street, Highfields, Leicester, LE2 — £250,000 • 3 bed • 1 bath • 732 ft²
3 bedroom terraced house for sale in Bolton Road, Off Hinckley Road, Leicester, LE3 — £179,950 • 3 bed • 1 bath • 707 ft²
5 bedroom end of terrace house for sale in St. Peters Road, Leicester, Leicestershire, LE2 — £320,000 • 5 bed • 2 bath • 2127 ft²
3 bedroom terraced house for sale in Haddenham Road, Leicester, Leicestershire, LE3 — £190,000 • 3 bed • 1 bath • 951 ft²






















































