Compact three-bed with period charm and strong local amenities.
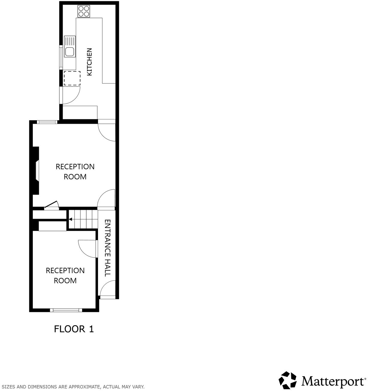
Victorian mid-terrace with three bedrooms and two reception rooms
A red-brick Victorian mid-terrace offering practical three-bedroom accommodation across two storeys. The layout includes two reception rooms, a fitted galley kitchen over 5m long, a galleried first-floor landing and a small rear courtyard — compact, efficiently arranged living for a small family or first-time buyer. High ceilings and period details give the rooms a sense of space despite modest footprints.
The property is presented in generally good decorative order with double glazing and gas central heating via boiler and radiators. It sits within walking distance of everyday amenities, places of worship and several schools, making it convenient for local family life and attractive for Buy-to-Let given nearby universities and hospitals.
Notable restrictions and costs apply: the house lies within an Article 4 direction and a selective licensing area — buyers intending rental use should check local authority licensing and planning obligations before purchase. The building has solid brick walls (no known insulation), an EPC rating of D and likely benefits from kitchen and general modernisation to increase energy efficiency and value.
This compact terrace will suit a purchaser seeking an affordable freehold in a well-connected urban pocket: good local services, strong rental demand and period character, balanced against area deprivation, higher local crime levels and potential retrofit works to improve thermal performance and EPC rating.
2 bedroom terraced house for sale in Sawley Street, Leicester, LE5 — £230,000 • 2 bed • 1 bath • 905 ft²
3 bedroom terraced house for sale in Bolton Road, Off Hinckley Road, Leicester, LE3 — £179,950 • 3 bed • 1 bath • 707 ft²
3 bedroom terraced house for sale in Chandos Street, Highfields, Leicester, LE2 — £240,000 • 3 bed • 1 bath • 904 ft²
3 bedroom terraced house for sale in Montague Road, Clarendon Park, Leicester, LE2 — £250,000 • 3 bed • 1 bath • 818 ft²
3 bedroom end of terrace house for sale in Dronfield Street, Evington, LE5 — £270,000 • 3 bed • 1 bath • 869 ft²
2 bedroom terraced house for sale in Henton Road, Leicester, LE3 — £164,950 • 2 bed • 1 bath • 743 ft²






































