Large 5-bed detached home with huge garden and renovation potential near Fort William..
Five bedrooms including study/5th bedroom
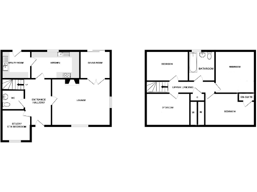
Set on a generous corner plot of around 0.2 acres, this five-bedroom detached villa offers substantial family accommodation and pleasing partial views to the Nevis Range. The ground floor features a dual-aspect lounge with open fire, separate dining room with patio doors, fitted kitchen, utility room and a study that could serve as a fifth bedroom. Upstairs there are four double bedrooms, the principal with en-suite, plus a family bathroom and built-in storage.
The property benefits from an attached garage, private gravel driveway with ample parking, double glazing and an enclosed rear garden. Its size, layout and outdoor space give scope for families who need room to grow or investors seeking a refurbishment project with clear rental potential in a popular residential development near Fort William.
Important practical points: the house requires modernisation and upgrading throughout, reflected in a low EPC rating of F (22). Heating is electric and broadband speeds are slow, though mobile signal is excellent. The home sits in an ageing, rural neighbourhood with higher local deprivation indicators; buyers should factor in potential costs for energy improvements and refurbishment works.
This villa will suit buyers seeking a spacious family home with large gardens and renovation potential, or investors prepared to update fabric and services to unlock greater energy efficiency and market value.
3 bedroom bungalow for sale in 4 Sutherland Avenue Upper Achintore Fort William PH33 6JT, PH33 — £200,000 • 3 bed • 1 bath
5 bedroom detached villa for sale in Achintore Road, FORT WILLIAM, PH33 6RW, PH33 — £380,000 • 5 bed • 1 bath
5 bedroom semi-detached house for sale in 113 Kilmallie Road, Caol, Fort William, PH33 7DX, PH33 — £245,000 • 5 bed • 2 bath • 1345 ft²
3 bedroom house for sale in Inverlochy Place, Fort William, PH33 — £245,000 • 3 bed • 1 bath • 967 ft²
2 bedroom detached house for sale in West Lodge, Achintore Road, Fort William, PH33 6RW, PH33 — £345,000 • 2 bed • 2 bath • 1173 ft²
8 bedroom detached house for sale in Merchiston, Badabrie, Banavie, Fort William, PH33 — £419,995 • 8 bed • 4 bath • 2702 ft²






































































































































































































































