Contemporary energy-efficient home with garage and roomy garden for growing families.
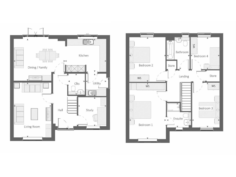
- Four bedrooms, en-suite to principal bedroom
- Open-plan kitchen, dining and family area with French doors
- Separate front living room and dedicated study
- Single garage, driveway and large private rear garden
- Solar panels and 10-year warranty for energy efficiency
- Total area approx 1,100 sqft; new-build, FREEHOLD
- Council Tax Band E — above-average annual charges
- Measurements approximate; services and appliances not tested
A modern four-bedroom detached house designed for everyday family life. The ground floor’s open-plan kitchen, dining and family area is the social heart, with French doors that connect indoor living to a private rear garden. A separate living room and a dedicated study provide quiet space for children’s homework or home working.
Built as a new home with solar panels and covered by a 10-year warranty and insurance protection, this property offers low running-cost potential and contemporary finishes throughout. The single garage and driveway provide convenient off-street parking, while the larger-than-average plot delivers a private rear garden for play and relaxation.
Practical details to note: the house is new and measurements are approximate; services and appliances have not been tested. Council Tax Band E means annual charges will be above average for the area. Title documents may include restrictive covenants, so check these if you plan changes to the property.
Set in a quiet, semi-rural suburb close to local amenities, beaches and leisure facilities, this home suits families seeking a modern, energy-efficient house with useful extra rooms and outdoor space in a well-maintained neighbourhood.
4 bedroom detached house for sale in Clavering Park, Cooden, Bexhill-On-Sea, TN39 — £709,995 • 4 bed • 2 bath • 1100 ft²
3 bedroom detached house for sale in Clavering Walk, Cooden, Bexhill, TN39 — £505,995 • 3 bed • 2 bath • 1110 ft²
3 bedroom detached house for sale in Clavering Walk, Cooden, Bexhill, TN39 — £515,995 • 3 bed • 2 bath • 1110 ft²
3 bedroom detached house for sale in Clavering Walk, Cooden, Bexhill, TN39 — £515,000 • 3 bed • 2 bath • 1110 ft²
3 bedroom detached house for sale in Clavering Park, Cooden Bexhill, TN39 — £500,000 • 3 bed • 2 bath • 1110 ft²
5 bedroom detached house for sale in Clavering Park, Cooden, Bexhill, TN39 — £819,995 • 5 bed • 3 bath • 1371 ft²






























































