Flexible three-bedroom detached with garage, large garden and NHBC cover.
Three double-aspect reception rooms with two sets of French doors to garden
Principal bedroom with en-suite; two further bedrooms and family bathroom
Open-plan kitchen/dining area with breakfast bar and utility room
Integral garage, driveway parking and large rear garden
10-year NHBC Buildmark policy included for structural cover
New-build freehold; measurements approximate and services untested
Restrictive covenants may apply; buyers advised to seek legal advice
Average mobile signal; fast broadband and low local crime
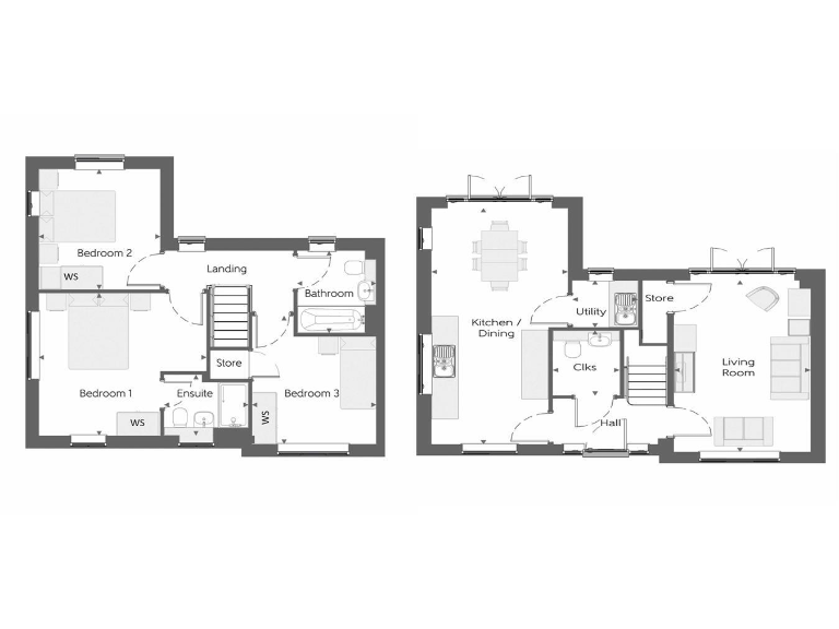
A modern three-bedroom detached home built to the 'Life' Collection specification, ideal for growing families who value flexible living and easy future access. The ground floor offers dual-aspect living and study rooms, plus an open-plan kitchen/dining area with two sets of French doors opening to a generous rear garden. Practical additions include a separate utility and an integral garage, while the property is covered by a 10-year NHBC Buildmark policy.
The first floor provides three bedrooms, including a principal bedroom with en-suite shower, and a family bathroom. Room sizes suit family bedrooms or a home gym/hobby space; the study offers a dedicated work-from-home space. The house sits in a low-crime, affluent suburb with countryside views to the rear and fast broadband for remote working.
Buyers should note this is a new-build freehold with approximate internal measurements and untested services; the sale particulars advise checks on title and restrictive covenants before proceeding. Council Tax Band D and average mobile signal are factual constraints to consider. The development benefits from green spaces and nearby leisure amenities, making it a practical family buy with future-proof design features.
3 bedroom detached house for sale in Clavering Walk, Cooden, Bexhill, TN39 — £515,995 • 3 bed • 2 bath • 1110 ft²
3 bedroom detached house for sale in Clavering Park, Cooden Bexhill, TN39 — £500,000 • 3 bed • 2 bath • 1110 ft²
3 bedroom detached house for sale in Clavering Walk, Cooden, Bexhill, TN39 — £505,995 • 3 bed • 2 bath • 1110 ft²
3 bedroom detached house for sale in Clavering Walk,
Cooden,
Bexhill,
East Sussex,
TN39 4TW, TN39 — £500,000 • 3 bed • 1 bath • 1037 ft²
3 bedroom semi-detached house for sale in Clavering Walk, Cooden, Bexhill, TN39 — £479,995 • 3 bed • 2 bath • 686 ft²
4 bedroom detached house for sale in Sandhurst Lane, Bexhill On Sea, TN39 — £650,000 • 4 bed • 3 bath • 2004 ft²


















































