Spacious three-bedroom house with large garden, garage and strong local schools nearby.
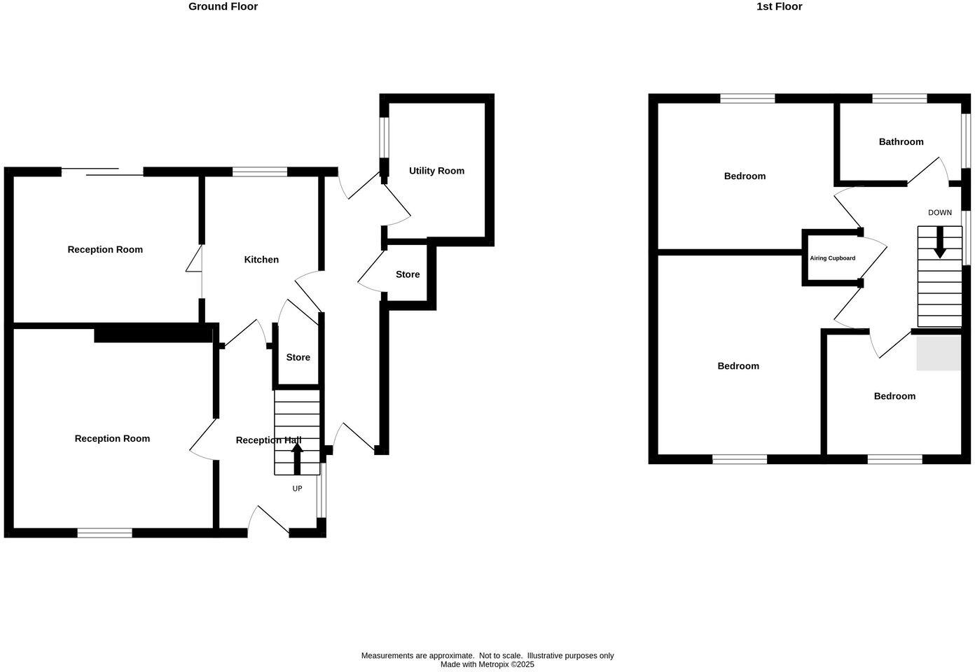
Three bedrooms with two reception rooms for flexible family living|Mature, very large private rear garden and garage parking|Stylish fitted kitchen plus pantry and separate utility room|Double glazing and mains gas central heating fitted post-2002|Single bathroom only; may be limiting for larger families|Some interior areas show dated 1980s decor and need updating|Freehold, approx 819 sq ft, very cheap council tax (Band A)|EPC currently TBA; buyers should confirm energy rating
This well-proportioned three-bedroom semi-detached house sits on the popular Old Park Farm estate, ideal for growing families seeking practical space and a large private garden. The layout includes two reception rooms and a stylish kitchen, giving flexible living and entertaining options. A single bathroom and three decent bedrooms serve everyday family life.
The mature rear garden and off-street parking with garage are standout practical features—great for children, pets and outdoor use. Gas central heating and double glazing (installed post-2002) add comfort and efficiency. The home is freehold and modest in size (approx. 819 sq ft), with a very cheap council tax band A.
There are some honest drawbacks: parts of the interior show dated 1980s decor and may benefit from cosmetic updating or redecoration; the property has one bathroom only. EPC rating is to be advised. The surrounding area is classified as deprived, so buyers should weigh long-term area prospects.
For families prioritising space, schools and outdoor area, this house offers good value and scope to personalise. Early viewing is recommended to appreciate the plot size, garden and flexible living spaces.
3 bedroom semi-detached house for sale in Gregory Drive, Dudley, DY1 — £299,950 • 3 bed • 1 bath • 1141 ft²
2 bedroom semi-detached house for sale in Wrens Hill Road, DUDLEY, DY1 — £190,000 • 2 bed • 1 bath • 462 ft²
3 bedroom semi-detached house for sale in Limes Road, Dudley, DY1 — £224,950 • 3 bed • 1 bath • 757 ft²
3 bedroom semi-detached house for sale in Teviot Gardens, Pensnett, Brierley Hill, DY5 4QL, DY5 — £215,000 • 3 bed • 1 bath • 728 ft²
3 bedroom semi-detached house for sale in Old Park Road, Dudley, DY1 — £220,000 • 3 bed • 1 bath • 1012 ft²
3 bedroom semi-detached house for sale in Sledmore Road, Dudley, West Midlands, DY2 — £300,000 • 3 bed • 2 bath • 832 ft²


































































































