Large wraparound garden and multiple parking spaces for family life.
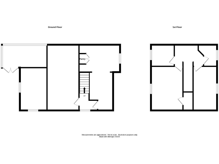
3 bedrooms with flexible living across 1,141 sq ft
This well-presented three-bedroom semi-detached home sits on a large corner plot with an outstanding wraparound garden — excellent for children, pets and outdoor entertaining. The ground floor gives flexible living: a generous lounge flowing to a defined dining area, a useful conservatory/snug and a stylish modern kitchen with pantry and breakfast bar. Off-street parking on a wide driveway provides space for multiple vehicles.
Upstairs are three well-proportioned bedrooms and a single family bathroom finished to a contemporary standard. The house is freehold, double-glazed and warmed by a gas boiler and radiators. Constructed in the late 1960s/early 1970s, it offers solid, practical living space across approximately 1,141 sq ft.
Practical points to note: the property has an EPC rating of D and includes a flat felt roof section alongside the pitched roof — something to be aware of for long-term maintenance. There is one bathroom which may feel tight for larger families. Local schooling and amenities are mixed in performance; a couple of nearby schools are rated Good while others require improvement.
Overall this is a move-in-ready family home with generous outdoor space and parking, ideal for buyers seeking outdoor living and practical, spacious accommodation in a well-connected Dudley suburb. Early viewing recommended to appreciate the garden and flexible layout in person.
3 bedroom semi-detached house for sale in Vanborough Walk, Dudley, DY1 — £250,000 • 3 bed • 1 bath • 1107 ft²
3 bedroom semi-detached house for sale in Limes Road, Dudley, DY1 — £224,950 • 3 bed • 1 bath • 757 ft²
3 bedroom semi-detached house for sale in Whitehall Drive, Dudley, DY1 2RB, DY1 — £225,000 • 3 bed • 1 bath • 840 ft²
3 bedroom semi-detached house for sale in Old Park Road, Dudley, DY1 — £220,000 • 3 bed • 1 bath • 1012 ft²
3 bedroom semi-detached house for sale in Matlock Close, Netherton, Dudley, DY2 9RP, DY2 — £230,000 • 3 bed • 1 bath • 722 ft²
3 bedroom semi-detached house for sale in Newland Grove, Dudley, DY2 0TL, DY2 — £250,000 • 3 bed • 2 bath • 876 ft²






























































































































































