New-build four-bedroom house with large garden and easy commuter links.
4 double bedrooms including main with en suite (verify bathroom count)
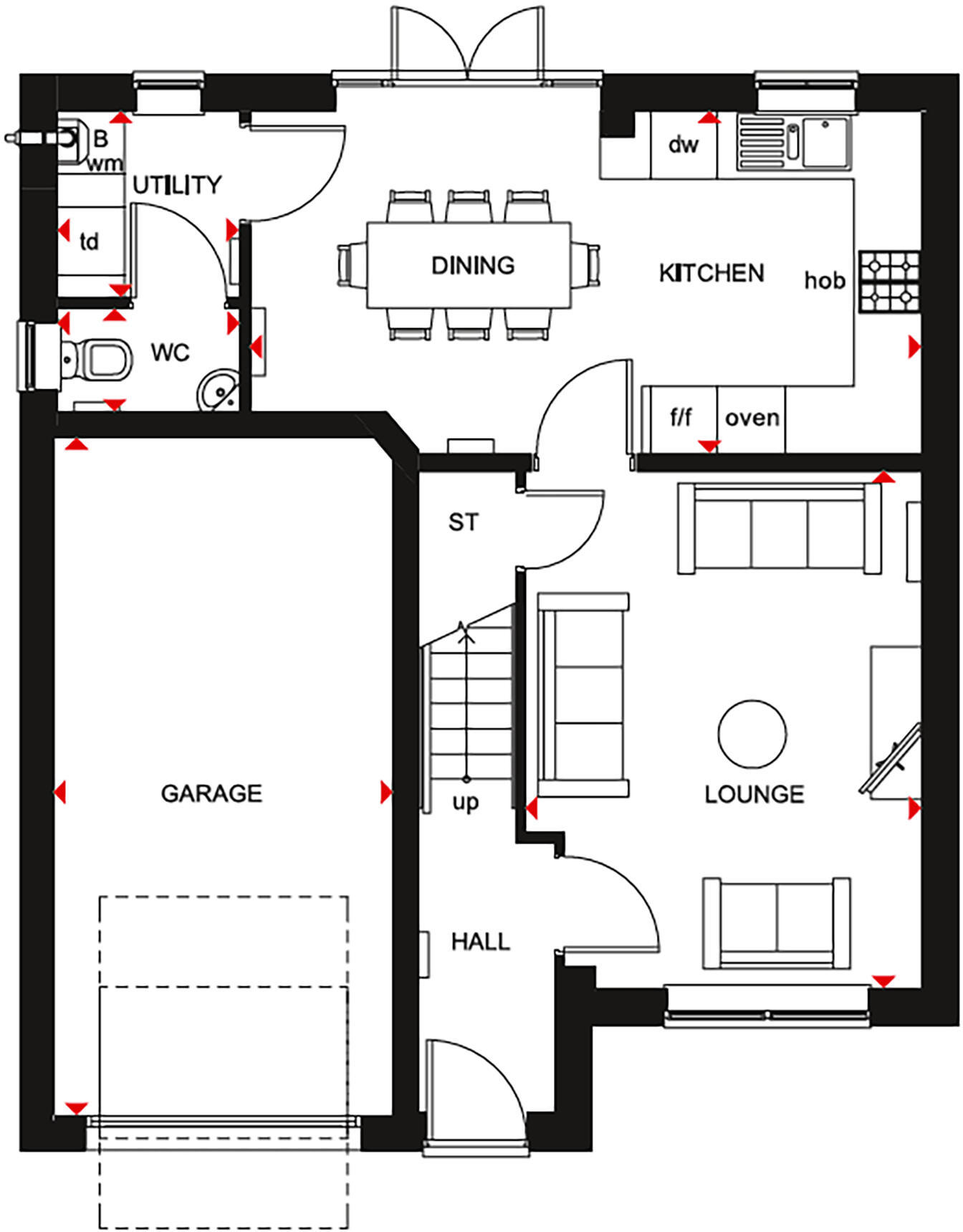
A bright, modern four-bedroom detached house arranged for practical family living. The ground floor centres on an open-plan kitchen-dining area with French doors onto a large private garden, plus a separate utility and a spacious lounge. The main bedroom is described with an en suite; overall bathroom count is listed as one, so buyers should verify the exact bathroom configuration.
The property sits on a notably large plot within a new-build development that backs onto open green space and offers direct access to the Trans Pennine Trail. Commuters benefit from quick links to the M1, Chesterfield under five miles away and Sheffield about 13 miles away. On-site parking includes an integral garage and two drive spaces.
Important practical points: this is a new-build in an area classified as very deprived with above-average local crime statistics and slow broadband speeds. The house’s total internal area is relatively small at about 946 sq ft, so storage and room proportions are modest compared with larger family homes.
This home suits families seeking a modern, low-maintenance house on a large plot with good outdoor access and school options nearby. Be aware of local social and infrastructure challenges — factor broadband, local crime and broader area deprivation into decisions and budget for any desired upgrades.
4 bedroom detached house for sale in Inkersall Road,
Chesterfield,
Derbyshire,
S43 3YJ, S43 — £409,995 • 4 bed • 1 bath • 1132 ft²
4 bedroom detached house for sale in Inkersall Road,
Staveley,
Chesterfield,
S43 3YJ, S43 — £379,995 • 4 bed • 1 bath • 1276 ft²
4 bedroom detached house for sale in Inkersall Road,
Staveley,
Chesterfield,
S43 3YJ, S43 — £329,995 • 4 bed • 1 bath • 839 ft²
5 bedroom detached house for sale in Inkersall Road,
Staveley,
Chesterfield,
S43 3YJ, S43 — £569,995 • 5 bed • 1 bath • 1589 ft²
4 bedroom detached house for sale in Inkersall Road,
Staveley,
Chesterfield,
S43 3YJ, S43 — £419,995 • 4 bed • 1 bath • 1183 ft²
3 bedroom semi-detached house for sale in Inkersall Road,
Chesterfield,
Derbyshire,
S43 3YJ, S43 — £269,995 • 3 bed • 1 bath • 654 ft²


























































