DN21 5AH - Land for sale in Shearwater House, The Willows, Marton, DN21

View on Property Piper

Land for sale in Shearwater House, The Willows, Marton, DN21

Summary - 3 THE HILLSIDE, HIGH STREET, GAINSBOROUGH, MARTON DN21 5AH

4 bed 4 bath Land

**Standout Features:**
- Self-build opportunity with full planning permission
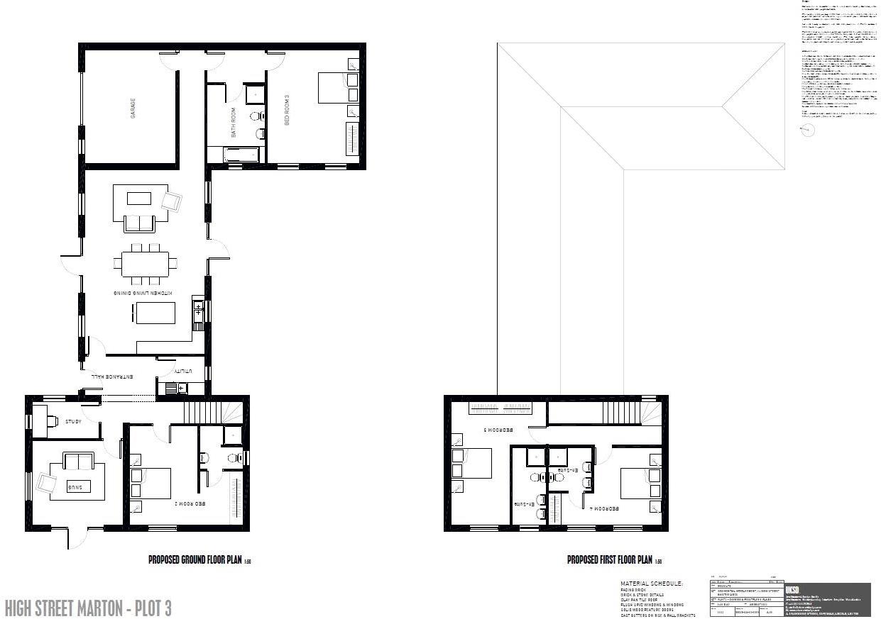
- Exciting modern design, approximately 2,723 sq ft
- Spacious, versatile layout perfect for families
- Private, south-facing 'wrap around' garden with countryside views
- Driveway and integral double garage
- Located in a peaceful village setting
- Close to good-rated primary schools

**Summary:**
Embrace the rare chance to create your dream family home at Shearwater House, a stunning self-build opportunity in the tranquil village of Marton, just 11 miles from Lincoln. With full planning permission granted for an architect-designed property spanning 2,723 sq ft, this exceptional offer includes spacious living areas, four generous bedrooms—each equipped with ensuite facilities—and a dedicated study, ideal for modern family living.

Situated on a generous plot with a private south-facing garden coming alive with nature, this home promises a peaceful retreat while still being connected to nearby amenities, including good-rated schools and community facilities. Enjoy the convenience of a driveway and double garage for ample parking. This fantastic opportunity to build your perfect home won't last long—call today for self-build mortgage advice and take your first step toward a new beginning in a sought-after rural haven.

Property Details

Image Descriptions

Floorplan Description

Rooms

Textual Property Features

Detected Visual Features

Nearby Schools

Nearest Bars And Restaurants

,,,,}

Nearest General Shops

,,}

Nearest Grocery shops

,,}

Nearest Supermarkets

,,}

Nearest Religious buildings

,,}

Nearest Medical buildings

,,,}

Nearest Airports

}

Nearest Leisure Facilities

,,,,}

Nearest Tourist attractions

,,}

Nearest Train stations

,,,,}

Nearest Bus stations and stops

,,,,}

Nearest Hotels

,,}

Tags

Local Market Stats

Similar Properties

Meta

High Res Images

Compatible Images

Low res Images

Thumbnails

Raw Images

High Res Floorplan Images

Compatible Floorplan Images

Low res Floorplan Images

FloorplanImages Thumbnail

Raw Floorplan Images