DN21 5AH - Land for sale in Owls Hoot, The Willows, Marton, DN21

View on Property Piper

Land for sale in Owls Hoot, The Willows, Marton, DN21

Summary - THE HAVEN, HILLSIDE DN21 5AH

4 bed 2 bath Land

**Standout Features:**
- Premier self-build opportunity with full planning permission
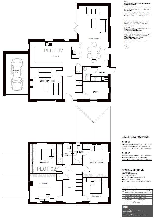
- Architect-designed, spacious 4-bedroom detached home (approximately 2,120 sq ft)
- Generous south-facing garden, perfect for outdoor entertaining
- Driveway with parking for at least 2 vehicles and attached garage
- Located in a serene village setting, just 11 miles from Lincoln

**Summary:**
Unlock the potential for your dream home at Owls Hoot, a highly sought-after plot in the picturesque village of Marton, DN21. With full planning permission already in place, you can dive straight into creating a stunning 4-bedroom detached house that boasts a generous living space of around 2,120 sq ft. Designed for modern family living, the home will feature a spacious entrance hallway, a home office, and an open-plan kitchen dining area with bifold doors leading to a sun-soaked south-facing garden.

The upstairs layout is designed to comfortably host family living, including four well-proportioned double bedrooms, a master en-suite, and a separate family bathroom. Add in the advantage of a driveway, garage, and a tranquil local environment known for its low crime rates, and you have the makings of an ideal family home or profitable rental. With amenities, schools, and beautiful surroundings just a stone's throw away, now is the perfect time to consider this exceptional self-build opportunity before it’s gone! Don’t hesitate to seek advice on self-build mortgages and take the first step towards your future today.

Property Details

Image Descriptions

Floorplan Description

Rooms

Textual Property Features

Detected Visual Features

Nearby Schools

Nearest Bars And Restaurants

,,,,}

Nearest General Shops

,,}

Nearest Grocery shops

,,}

Nearest Supermarkets

,,}

Nearest Religious buildings

,,}

Nearest Medical buildings

,,,}

Nearest Airports

}

Nearest Leisure Facilities

,,,,}

Nearest Tourist attractions

,,}

Nearest Train stations

,,,,}

Nearest Bus stations and stops

,,,,}

Nearest Hotels

,,}

Tags

Local Market Stats

Similar Properties

Meta

High Res Images

Compatible Images

Low res Images

Thumbnails

Raw Images

High Res Floorplan Images

Compatible Floorplan Images

Low res Floorplan Images

FloorplanImages Thumbnail

Raw Floorplan Images