Renovated three-bed with smart heating and sunny southwest garden.
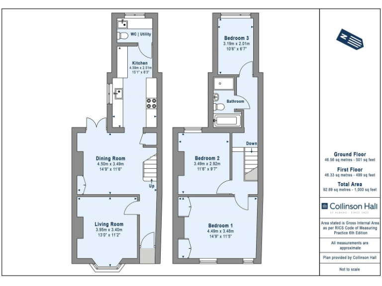
Approximately 1,000 sq ft over two floors, three bedrooms
This mid-terrace Victorian home, built in 1884 and recently renovated, offers about 1,000 sq ft of well-laid-out living across two floors. The living and dining rooms retain period character with bay windows, fireplaces and original wood floors; the kitchen has been fully remodelled and a modern bathroom added on the first floor. A Tado smart heating system and double glazing (post-2002) improve comfort and running costs.
Set on a popular Cavendish Road close to shops, cafes, Clarence Park and a short walk to the mainline station, the house suits families seeking convenient commuter links and strong local schools. The south-west facing, partially walled garden is a useful outdoor space but the plot is small, so it suits low-maintenance gardening or a patio rather than large-scale landscaping.
Practical considerations: the building is solid-brick and, as originally constructed, likely has limited wall insulation — further insulation work could reduce bills and improve comfort. The EPC is D (64). The area reports a higher crime level; prospective buyers should factor local safety measures and costs for any security upgrades.
Sold freehold with mains gas heating via boiler and radiators, the property blends period charm and modern fixtures. It will particularly appeal to buyers who value location, school catchments and a ready-to-move-in interior but who are comfortable with a small garden and incremental improvement projects (insulation, security) if desired.
3 bedroom terraced house for sale in Cavendish Road, St Albans, AL1 — £700,000 • 3 bed • 2 bath • 1044 ft²
3 bedroom terraced house for sale in Hart Road, St Albans, AL1 — £625,000 • 3 bed • 1 bath • 856 ft²
3 bedroom terraced house for sale in Church Street, St. Albans, Hertfordshire, AL3 — £725,000 • 3 bed • 1 bath • 1063 ft²
3 bedroom semi-detached house for sale in Alma Road, St Albans, AL1 3BL, AL1 — £1,250,000 • 3 bed • 2 bath • 1575 ft²
2 bedroom terraced house for sale in Camp Road, St. Albans, AL1 5DX, AL1 — £575,000 • 2 bed • 1 bath • 767 ft²
3 bedroom terraced house for sale in Pageant Road, St. Albans, AL1 — £750,000 • 3 bed • 2 bath • 941 ft²






















































































