Spacious four bedroom house with generous garden and modernisation potential.
Elevated plot with south‑west views across the Beauly Firth
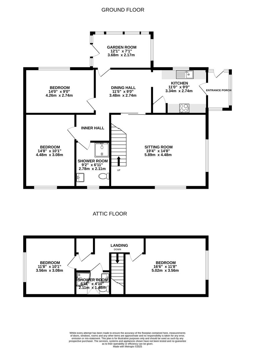
Set on an elevated plot with south‑west views across the Beauly Firth, this detached one‑and‑a‑half storey home offers flexible family accommodation across two floors. The layout centres on a bright kitchen and adjoining dining room that flows into a large sitting room, while two porches give useful, light‑filled transition spaces. Four comfortable double bedrooms and two shower rooms suit multi‑generational living or home working.
Practical features include PVC double glazing, a single attached garage and a tarmac driveway providing off‑street parking. The generous, irregular garden has lawn, shrubs, mature fruit trees and space for landscaping or a gardener’s projects. Fast broadband and an easy commuter route to Inverness make the house convenient for city access while retaining a calm, coastal village feel.
The property will suit buyers looking to personalise rather than move straight in. Heating is electric (Quantum night storage and panel heaters) and the kitchen, bathrooms and some finishes are older in style — there is clear scope and value in modernisation. The garage roof is corrugated and other external elements are dated, so buyers should allow for maintenance and improvement costs.
This is a spacious family home in a desirable North Kessock location with strong potential for uplift through cosmetic and energy‑efficiency updates. Viewings are recommended to appreciate the views, flexible layout and garden at this peaceful address close to Inverness.
3 bedroom detached house for sale in Lettoch, North Kessock , Inverness, IV1 — £430,000 • 3 bed • 2 bath • 1853 ft²
3 bedroom detached bungalow for sale in Main Street, North Kessock, IV1 — £325,000 • 3 bed • 1 bath • 1453 ft²
3 bedroom terraced house for sale in 12 Ferry Brae, North Kessock, Inverness, IV1 — £170,000 • 3 bed • 2 bath
4 bedroom detached house for sale in Croftnacreich, North Kessock, Inverness, IV1 — £375,000 • 4 bed • 2 bath
4 bedroom detached house for sale in Braeside Park, Inverness, IV2 7HN, IV2 — £320,000 • 4 bed • 2 bath • 1195 ft²
4 bedroom detached house for sale in 5 Culloden Road, Balloch, IV2 — £310,000 • 4 bed • 2 bath • 2455 ft²






























































































































































































