BR2 8HW - 2 bedroom terraced house for sale in Croydon Road, Keston,…

View on Property Piper

2 bedroom terraced house for sale in Croydon Road, Keston, BR2

Summary - 121 CROYDON ROAD KESTON BR2 8HW

2 bed 1 bath Terraced

Characterful two-bed terrace with long south garden and garage in desirable Keston.
Victorian mid-terrace with original character features
Extended modern kitchen with breakfast bar and utility area
South-facing garden approaching 50ft; low-maintenance sections
Garage with rear access via Quiet Nook
Compact footprint — approx 467 sq ft (small overall size)
Solid brick walls assumed uninsulated — consider energy upgrades
Double glazing present; install date unknown
One bathroom; two bedrooms with loft access
This attractive Victorian mid-terrace pairs original character with later upgrades, offering comfortable living in sought-after Keston.
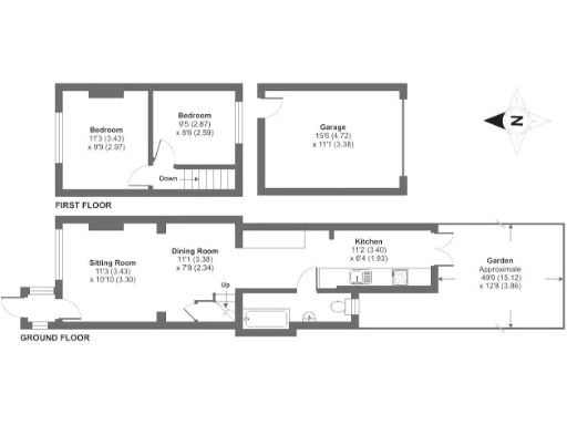
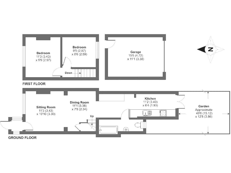
The ground floor has a double reception and an extended modern kitchen with breakfast bar and utility area; French doors open onto a south-facing garden that stretches nearly 50ft, a rare outdoor space for terraces in the area. A separate garage with rear access provides secure parking and storage.
Upstairs there are two bedrooms, loft access and a contemporary bathroom. The house is compact (approximately 467 sq ft) and best suited to buyers seeking a smaller, low-maintenance home near village amenities and good schools. Note the property is a pre-1900 solid-brick build with no known wall insulation and double glazing of unknown age; upgrading insulation and checking services may be advisable.
Overall this home will appeal to families, downsizers or professionals wanting village life near green spaces, with potential to modernise energy performance and make efficient use of the cozy layout.

Property Details

Image Descriptions

Floorplan Description

Rooms

Textual Property Features

Target Audience

AI Tags

Detected Visual Features

EPC Details

Nearby Schools

Nearest Bars And Restaurants

,,,,}

Nearest General Shops

,,}

Nearest Grocery shops

,,}

Nearest Supermarkets

,,}

Nearest Religious buildings

,,}

Nearest Medical buildings

,,,}

Nearest Airports

,,}

Nearest Leisure Facilities

,,,,}

Nearest Tourist attractions

,,}

Nearest Train stations

,,,,}

Nearest Bus stations and stops

,,,,}

Nearest Hotels

,,}

Tags

Local Market Stats

Similar Properties

Meta

High Res Images

Compatible Images

Low res Images

Thumbnails

Raw Images

High Res Floorplan Images

Compatible Floorplan Images

Low res Floorplan Images

FloorplanImages Thumbnail

Raw Floorplan Images