Chain-free three-bed detached on a large plot — excellent schools and refurbishment potential.
No onward chain — vacant possession ready
Large elevated plot backing onto woodland
Detached three-bedroom layout with spacious reception rooms
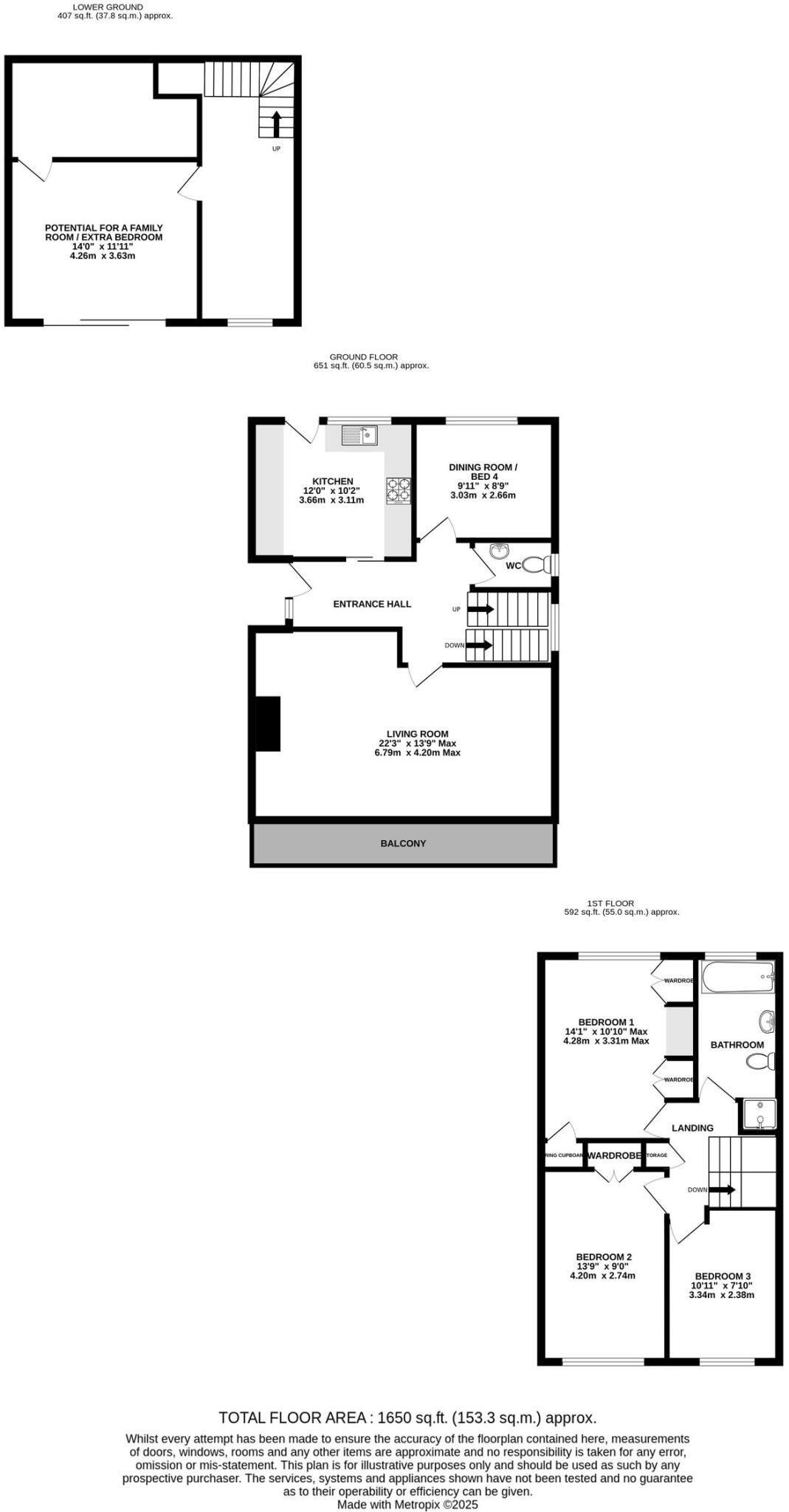
Lower-ground rooms could become fourth bedroom (planning needed)
Requires full updating and renovation throughout
Single family bathroom only; limited wet-room provision
Septic tank on site — ongoing maintenance responsibility
Long private driveway and integral/double garage, multiple parking
Set back on an elevated, substantial plot, this detached three-bedroom house is offered chain-free and ready for refurbishment. The main level provides a generous lounge with balcony, separate dining room and fitted kitchen; lower-ground rooms offer versatile space that could be a family room or a potential fourth bedroom subject to planning permission. With a long private driveway, integral garage and good off-street parking, the plot suits family life and extension or reconfiguration.
The location is a key strength: quiet Boxley Road position backing onto woodland, close to several well-rated primary and secondary schools, nearby shops and easy motorway connections. Fast broadband and low local crime make the house practical for modern family living while mature trees and boundary planting give immediate privacy.
Important drawbacks are clear and factual: the property requires updating throughout and is marketed as needing renovation. There is a single family bathroom, and the lower-ground rooms would need planning consent to become a legal bedroom. The house uses a septic tank (maintenance responsibility) and sits in Council Tax band E (above average running costs).
For a buyer seeking substantial outdoor space and renovation potential, this house offers scope to add value and tailor a comfortable family home. Buyers should budget for refurbishment works, septic tank upkeep and any planning applications if altering the lower-ground layout.
4 bedroom detached house for sale in York Avenue, Walderslade, Kent, ME5 — £550,000 • 4 bed • 1 bath • 1915 ft²
4 bedroom detached house for sale in Hurst Hill, Walderslade Woods, Kent, ME5 — £600,000 • 4 bed • 2 bath • 1534 ft²
3 bedroom detached house for sale in Haysel, Sittingbourne, Kent, ME10 — £375,000 • 3 bed • 1 bath • 981 ft²
3 bedroom detached house for sale in Boxley Road, Chatham, ME5 — £350,000 • 3 bed • 2 bath • 1906 ft²
2 bedroom terraced house for sale in Silverweed Road, Chatham, ME5 — £250,000 • 2 bed • 1 bath • 1079 ft²
3 bedroom detached house for sale in Oaks Dene, Chatham, ME5 — £350,000 • 3 bed • 1 bath • 1084 ft²














































