**Standout Features:**
- No forward chain
- Two double bedrooms
- Extended living space
- Off-street parking and garage
- Close to local schools and amenities
- Requires updating and renovation
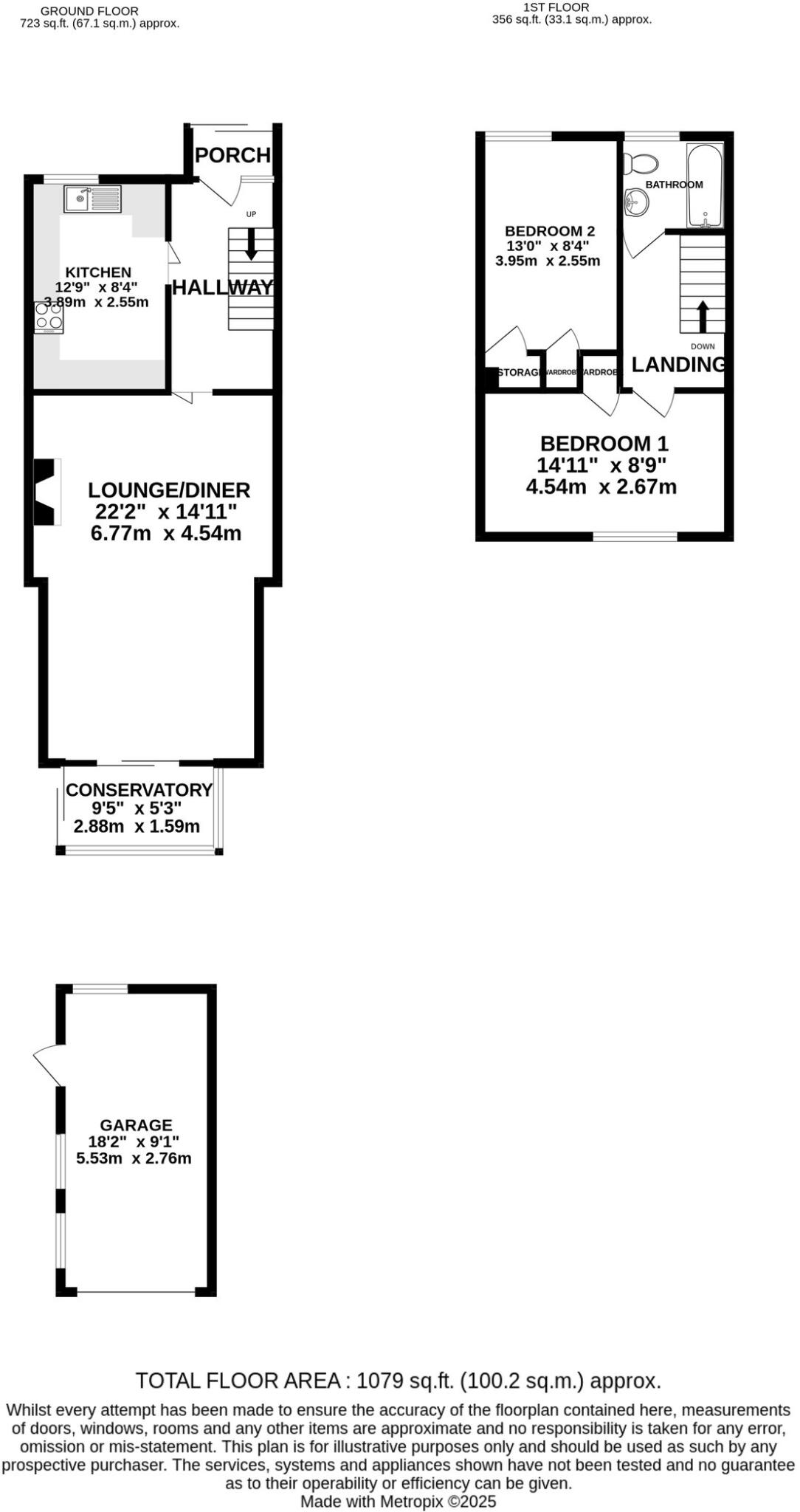
This extended mid-20th century terraced home, featuring two spacious double bedrooms, is a hidden gem awaiting your personal touch. With no onward chain, the property offers a great opportunity for first-time buyers or investors looking to create a bespoke living space. The ground floor consists of a welcoming entrance hall that leads to a traditional kitchen/diner, flowing seamlessly into a bright lounge/family room, and further extending into a conservatory — perfect for family gatherings.
Upstairs, two well-proportioned bedrooms complete with fitted wardrobes offer ample storage, alongside a family bathroom. The property benefits from a quiet location close to local schools rated 'Good' and 'Outstanding', making it ideal for families. Externally, an enclosed garden leads to a rear garage, and off-street parking is available in front of the house. Though the property requires updating, its attractive brick facade and spacious layout promise significant value. With fast broadband and excellent transport links nearby, this home presents a solid investment in a thriving community. Act now to seize this chance to craft a home tailored to your needs!
3 bedroom semi-detached house for sale in Walderslade Road, Walderslade, Kent, ME5 — £325,000 • 3 bed • 1 bath • 1348 ft²
2 bedroom semi-detached house for sale in Wedgewood Drive, Chatham, ME5 — £250,000 • 2 bed • 1 bath • 520 ft²
2 bedroom terraced house for sale in Greenwich Close, Lordswood, Chatham, Kent. ME5 — £250,000 • 2 bed • 1 bath • 850 ft²
3 bedroom semi-detached house for sale in Eden Avenue, Wayfield, Kent, ME5 — £310,000 • 3 bed • 1 bath
3 bedroom semi-detached house for sale in Tunbury Avenue, Walderslade, Kent, ME5 — £350,000 • 3 bed • 1 bath
2 bedroom semi-detached house for sale in Homewood Avenue, Sittingbourne, Kent, ME10 — £270,000 • 2 bed • 1 bath • 810 ft²










































