Freehold central Leigh site with consent and clear GDV potential.
- Full planning permission for 18 apartments and 20 townhouses
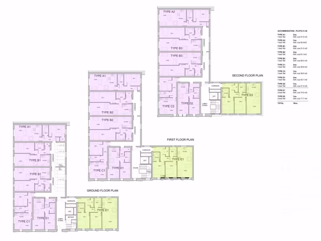
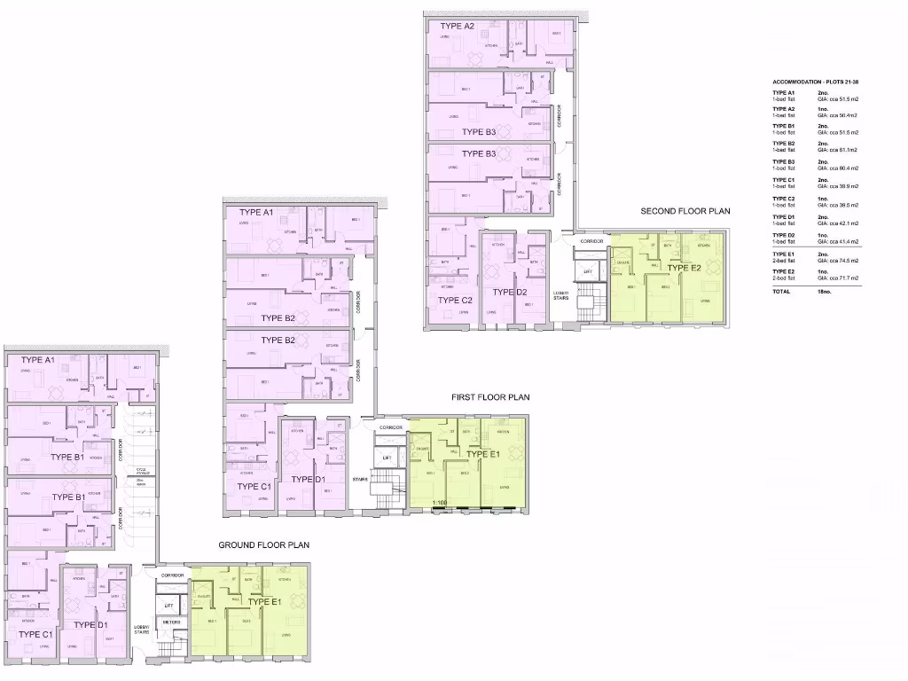
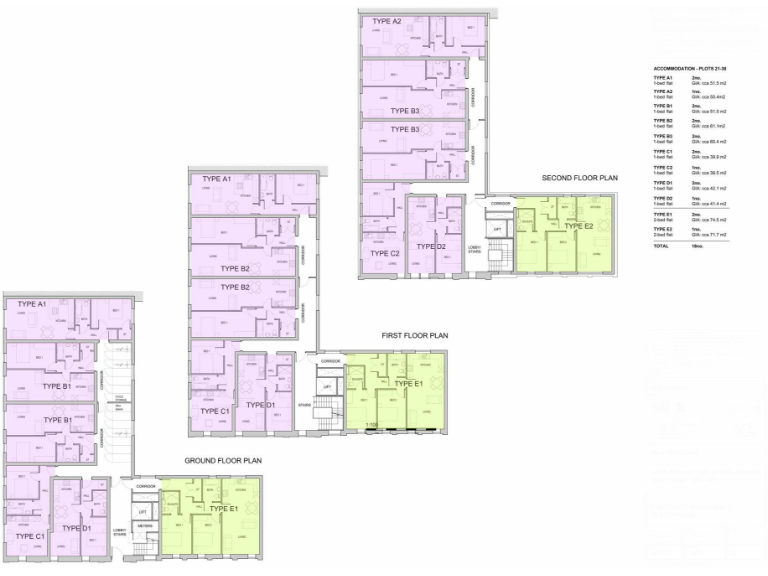
A rare town-centre development site offered with full planning permission to convert the former college gymnasium into 18 one- and two-bedroom apartments (40–71 sqm) and to deliver 20 new three-storey townhouses on the rear land. The scheme preserves key historic features of the gymnasium while adding contemporary, new-build townhouses — a combined opportunity for resale or build-to-rent.
Planning is granted (Wigan ref A/22/94743/MAJOR) and the site is freehold with no Section 106 or affordable housing requirement. An independent June 2023 valuation estimated a GDV of £2,801,000; the advertised asking price is £450,000 per plot and the vendor will sell the apartment parcel and the rear parcel separately or together.
The site fronts Ullswater, Boughey and Thirlmere Streets in central Leigh, within an established town-centre setting with excellent mobile signal and fast broadband. The former gymnasium is locally significant and has notable heritage interest, but the building is derelict and will require substantial refurbishment and conversion works to meet the approved plans.
Investors should weigh the strong planning position and clear GDV against local market context: the area is classified as very deprived with hampered aspiration and constrained rental demographics. The consented scheme suits developers targeting mid-market apartments and townhouses, refurbishment-led value-add, or a long-term rental portfolio.
Land for sale in Ulleswater Street, Leigh, WN7 — £900,000 • 1 bed • 1 bath • 1118 ft²
Commercial property for sale in Lord Street South, Leigh, WN7 — £875,000 • 1 bed • 1 bath • 1674 ft²
Land for sale in Sportsman Street, Leigh, WN7 5AA, WN7 — £140,000 • 1 bed • 1 bath
Commercial property for sale in Bradshawgate, Leigh, WN7 — £350,000 • 1 bed • 1 bath
Property for sale in Former Higher Ince Labour Club, Anderton Street, Ince WN2 2BG, WN2 — £300,000 • 1 bed • 1 bath
2 bedroom flat for sale in Mather Lane, Leigh, WN7 — £150,000 • 2 bed • 2 bath • 1227 ft²


















































