Contemporary four-bedroom home with conservatory and off-street parking.
Three-storey semi-detached townhouse, well presented throughout
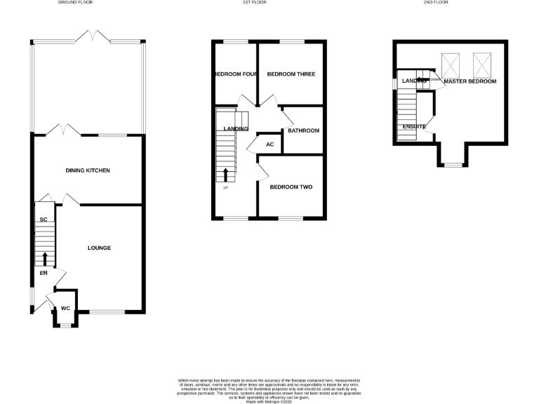
A well-presented three-storey town house in a central Northwich spot, this property offers flexible family accommodation over three floors. The ground floor has a comfortable lounge, a fitted kitchen-diner with Quartz worktops and a bright conservatory opening onto a modest enclosed rear garden. Off-street parking to the front and useful storage shed add everyday convenience.
Upstairs provides four bedrooms, including a large top-floor main bedroom with roof windows and an en-suite; the family bathroom features a spa bath and shower. Strong practical features include double glazing, modern finishes, good natural light and usable landing space suitable for a small home office.
Practical cautions are set out plainly: the property footprint and internal size are modest (about 875 sq ft) and gardens are small to average. Local area indicators show very high crime and significant deprivation — buyers should factor local conditions into their decision. Tenure information is inconsistent in the papers (leasehold with 231 years remaining is stated, but another source records freehold) so prospective purchasers must verify title before proceeding.
Overall this is a straightforward, contemporary town-centre family home or buy-to-let opportunity for someone seeking three-storey living within walking distance of local shops, schools and transport. Viewing is recommended to appreciate the layout and finish in person.
3 bedroom town house for sale in Webbs Court, Northwich, CW9 — £275,000 • 3 bed • 2 bath • 733 ft²
4 bedroom house for sale in Winnington Lane, Northwich, CW8 — £260,000 • 4 bed • 3 bath • 967 ft²
4 bedroom end of terrace house for sale in Curzon Avenue, Winnington Village, CW8 4YU, CW8 — £325,000 • 4 bed • 2 bath • 1398 ft²
3 bedroom semi-detached house for sale in Violet Grove, Northwich, CW8 — £250,000 • 3 bed • 2 bath • 806 ft²
3 bedroom semi-detached house for sale in David Street, Northwich, CW8 — £350,000 • 3 bed • 1 bath • 1032 ft²
4 bedroom town house for sale in Northwich, Cheshire, CW9 — £290,000 • 4 bed • 2 bath • 1052 ft²


























































