Large, newly renovated two-bedroom with private garden office and long lease for families.
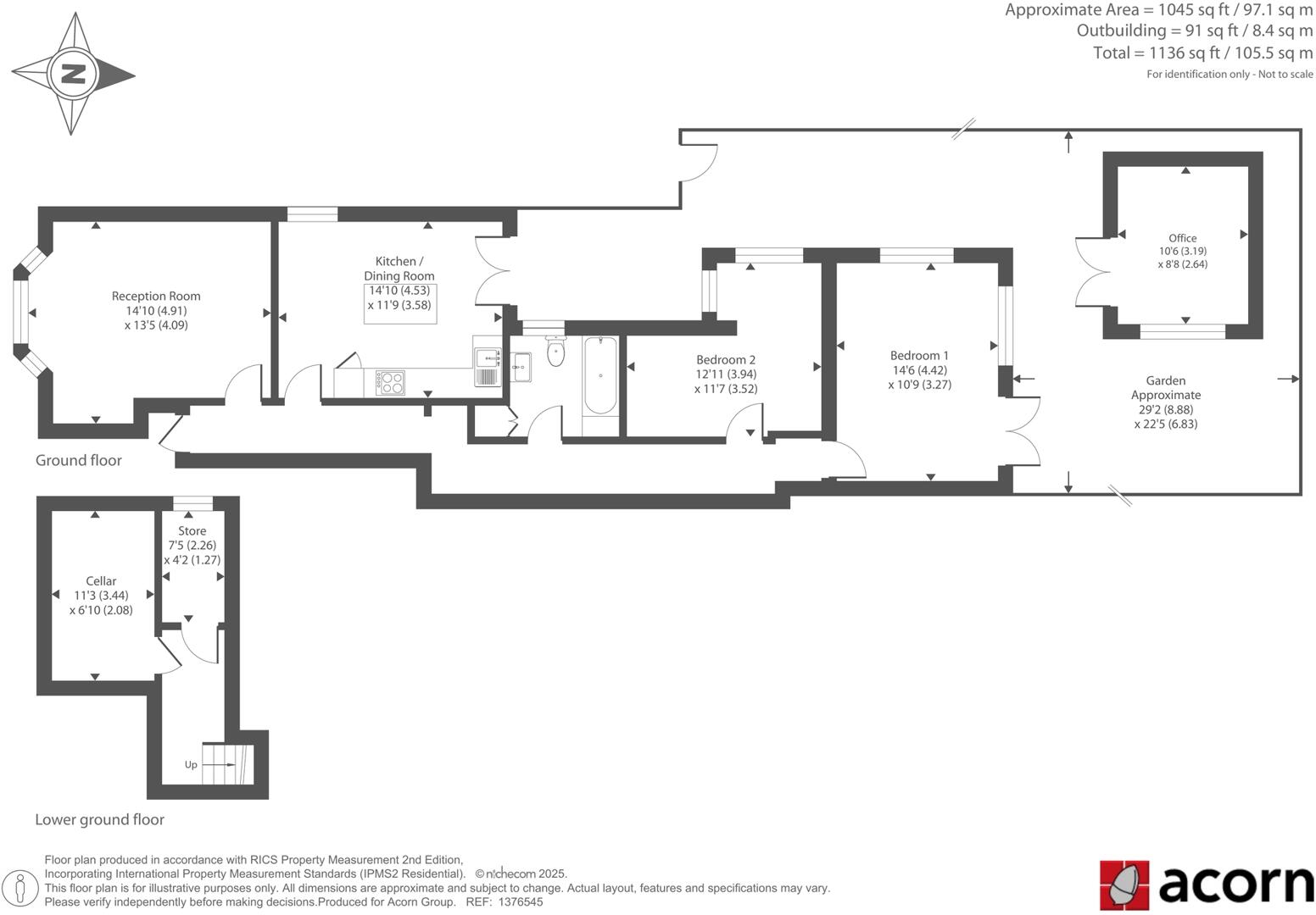
- Over 1,000 sq ft of internal living space
- Two well-proportioned double bedrooms
- Good-size rear garden with heated garden office
- Newly renovated; move-in ready
- Share of freehold; 982 years remaining on lease
- Solid brick walls; no assumed cavity insulation
- Single family bathroom for two bedrooms
- Area classed as very deprived; average local crime
This spacious garden flat occupies over 1,000 sq ft on a highly sought road in SE6. Recently renovated throughout, it offers two double bedrooms, a large bay-fronted lounge and a well-appointed kitchen with island. A single modern family bathroom serves the apartment. The property comes with a share of freehold and a very long lease (982 years), providing secure tenure for years to come.
Externally there is a good-size rear garden with patio and lawn plus a heated, powered garden office — useful for home working, a play room or studio. The flat is bright and benefits from tall ceilings, period character and double glazing installed after 2002. Broadband speeds are fast and mobile signal is excellent, convenient for commuting and remote working.
Practical points to note: the building has solid brick walls with no assumed cavity insulation, so there may be future improvement work to reduce heat loss. The neighbourhood is described as very deprived with average local crime statistics; buyers should weigh this alongside excellent transport links to Catford stations and nearby Mountsfield Park. There is one bathroom for two double bedrooms, which may be a consideration for some families.
Overall this is a roomy, ready-to-move-in period garden flat that balances period character with modern finishes. It will suit families or buyers wanting flexible living space, secure long-term tenure and a private outside area with a usable garden office.
2 bedroom apartment for sale in Nelgarde Road, London, SE6 — £350,000 • 2 bed • 1 bath • 683 ft²
2 bedroom flat for sale in Glenwood Road, Catford, London, SE6 — £425,000 • 2 bed • 1 bath • 582 ft²
2 bedroom flat for sale in Lenham Road, Lee, SE12 — £550,000 • 2 bed • 1 bath • 581 ft²
2 bedroom flat for sale in Brownhill Road, Catford, London, SE6 — £350,000 • 2 bed • 1 bath • 678 ft²
2 bedroom flat for sale in Brownhill Road, Catford, London, SE6 — £425,000 • 2 bed • 1 bath • 674 ft²
2 bedroom flat for sale in Brownhill Road, Catford, SE6 — £350,000 • 2 bed • 1 bath • 1030 ft²






























































