Four approved home plots near beaches, ready for prompt construction.
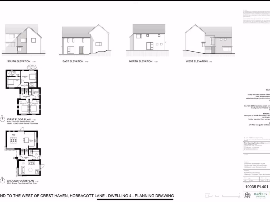
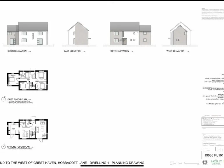
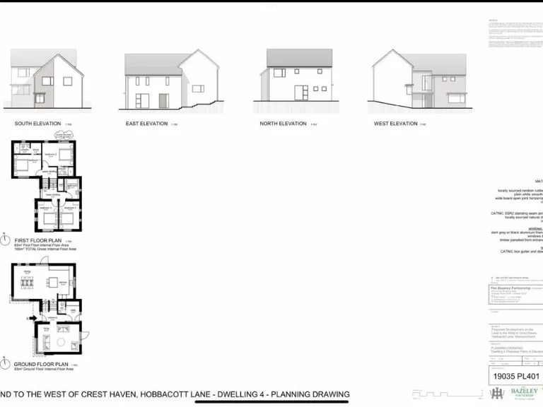
Detailed conditional consent for four detached 4-bed houses
Plots range 145–166m2; total built area c.632m2
Private gardens, parking and garage options per plot
Freehold vacant land; gently sloping pasture, enclosed
Close to Bude coast; village amenities within easy reach
CIL liability approx £66,181.13 (c. £100/m2)
Consent conditional — buyers must meet planning conditions
Average broadband; primary school rated Requires Improvement
This is a rare, ready-to-start development opportunity on an enclosed 0.7-acre plot at the edge of Marhamchurch, around two miles from Bude’s coast. Detailed conditional planning consent (PA20/02034) covers four detached four-bedroom houses, each with private gardens and parking; plot sizes range from 145m2 to 166m2 (632m2 total). The site is gently sloping pasture bounded by a natural bank and hedge, with a small brook along the lower boundary.
The consented scheme offers contemporary open-plan living across two-storey designs, garages for several plots and straightforward access to village amenities, schools and coastal recreation. Because the consent is detailed and conditional, construction could begin almost immediately subject to meeting the planning conditions and statutory requirements.
Material considerations: the development is liable for Community Infrastructure Levy (CIL) at approximately £66,181.13 (c. £100/m2), there is no affordable housing requirement, and the consent remains conditional on the stated planning terms. The site is in a remoter, established farming area with average broadband speeds and a primary school rated as ‘Requires improvement’. Any purchaser should allow budget and time for satisfying planning conditions, CIL payment, services connection and standard site preparation adjacent to the brook.
Plot for sale in Hobbacott Lane, Marhamchurch, Bude, Cornwall, EX23 — £100,000 • 1 bed • 1 bath • 1097 ft²
Plot for sale in Ocean View Road, Bude, Cornwall, EX23 — £850,000 • 1 bed • 1 bath
Plot for sale in Cleavelands, Bude, Cornwall, EX23 — £400,000 • 1 bed • 1 bath
Plot for sale in Poundstock, Bude, Cornwall, EX23 — £575,000 • 1 bed • 1 bath
Plot for sale in Beside West Beckon Close, Morwenstow, Bude, EX23 — £700,000 • 1 bed • 1 bath
4 bedroom detached house for sale in Poundstock, Bude, Cornwall, EX23 — £350,000 • 4 bed • 1 bath


























































































































