Large cleared corner plot with granted hotel consent near transport and stadium.
Freehold cleared corner plot with very large development footprint
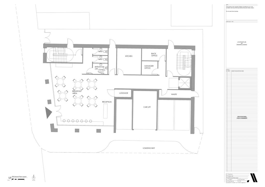
Planning permission for 50-bed hotel (GIA 10,307 sqm); application to 78 beds submitted
Interest shown by major hotel groups; pre-contract paperwork provided
Ten-minute walk to Sandhills station; close to Hill Dickinson Stadium
Brownfield site — cleared but with rubble and previous neglect
Area classed very deprived with above-average crime levels
Sold at auction 3 Dec 2025; buyer fee 1% + VAT (min £2,500 + VAT)
Straddles two titles; check legal pack for additional fees and constraints
This cleared freehold corner plot on Sandhills Lane/Regent Road is being sold at online auction with planning permission for a 50-bed hotel (GIA 10,307 sqm) and a pending application to extend to 78 beds. The site has already attracted interest from established hotel operators and an international brand supplied pre-contract papers for a potential pre-let, underlining strong commercial development potential in a regeneration area.
The plot is huge and level, previously brownfield and cleared of structures and vegetation, simplifying groundworks compared with a built site. It sits within a ten-minute walk of Sandhills station and close to the newly opened Hill Dickinson Stadium, with Liverpool Lime Street ten minutes by rail and the airport about 30 minutes by car — useful for leisure and business hotel demand. Broadband is fast and mobile signal excellent.
Buyers should factor material considerations: the area is classified as very deprived with above-average crime and mixed local amenities. The land straddles two title numbers (LA249824 and MS255706) and will be sold at auction on 3 December 2025. A Buyer’s Administration Fee of 1% + VAT of the sale price (minimum £2,500 + VAT) is payable on the fall of the hammer; further legal or seller-imposed fees may apply and are detailed in the legal pack.
This lot suits experienced developers or investors able to progress a hotel scheme within a challenging but improving city-regeneration context. Due diligence is essential: review planning consents, site investigations and the legal pack before bidding.
Hotel for sale in Regent Road, Blackstone Street, 15-17 Fulton Street, Liverpool, Merseyside, L5 9TG, L5 — £2,000,000 • 1 bed • 1 bath
Land for sale in Breckfield Road North, Liverpool, L5 — £175,000 • 1 bed • 1 bath
Land for sale in Land Lying to the North East of, Wango Lane, Aintree, Sefton, L10 8LQ, L10 — £235,000 • 1 bed • 1 bath
Land for sale in Kensington, Liverpool, Merseyside, L7 — £50,000 • 1 bed • 1 bath • 969 ft²
Residential development for sale in Charleywood Road, Liverpool, Merseyside, L33 — £2,500,000 • 140 bed • 1 bath
Land for sale in Land off St Andrews Avenue, (Belfry Close, Muirfield Close and Troon Close), West Derby, Liverpool, Merseyside L12 9LU, L12 — £4,000 • 1 bed • 1 bath


















































