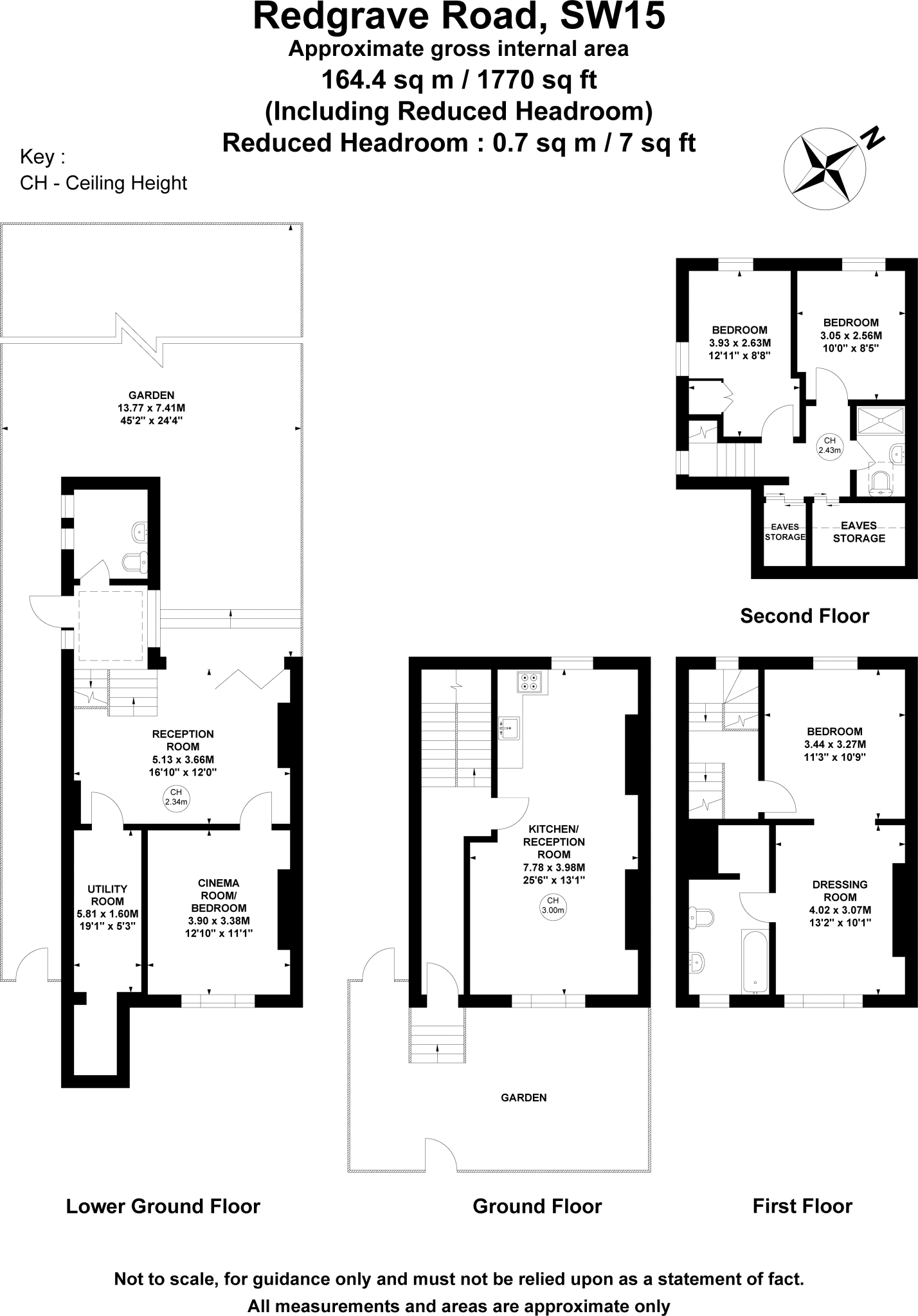
High-ceilinged family home with major works mostly done and strong finishing potential.
Victorian semi-detached with high ceilings and large sash windows
Approximately 65% internally renovated; ready for final fit-out
Builder estimate £120k–£150k and about 12 weeks to complete
Sale includes Howdens kitchen, appliances, wardrobe and flooring
Westerly-facing rear garden, front garden and side access
Freehold; mains gas heating, double glazing (install date unknown)
Solid brick walls likely uninsulated; further insulation may be needed
Council tax noted as quite expensive; on-street resident parking
Set on a sought-after West Putney street, this elegant Victorian semi-detached home (c.1850s) offers generous proportions, high ceilings and original sash windows. Substantial refurbishment work has been completed — the new layout, structural and major works are in place — leaving a buyer the opportunity to specify final finishes and create a high-end family home.
The property is currently circa 65% internally renovated and comes with multiple high-quality fixtures and appliances ready for installation, including a Howdens kitchen, utility units, walk-in wardrobe, herringbone flooring and major appliances. A nominated builder has quoted approximately £120k–£150k and about 12 weeks to finish internal and external works, depending on the buyer’s final specification.
Practical benefits include a westerly rear garden with side access, a small front garden, resident permit on-street parking, excellent local schools and fast transport links: Putney mainline (0.4 miles), Putney Bridge tube (0.6 miles), buses and river services nearby. The property is freehold, has mains gas central heating and double glazing (install date unspecified).
Notable drawbacks are factual: the house requires completion of kitchen, bathrooms, laundry, plumbing, electrical work, flooring and landscaping; the solid brick walls are assumed uninsulated; council tax is described as quite expensive. Buyers should budget for the quoted completion cost and allow time for final fit-out. Once finished, the estimated completed value is circa £2,150,000.
4 bedroom semi-detached house for sale in Redgrave Road, Putney, London, SW15 — £1,750,000 • 4 bed • 3 bath • 1740 ft²
5 bedroom semi-detached house for sale in Clarendon Drive, Putney, London, SW15 — £2,250,000 • 5 bed • 3 bath • 2447 ft²
4 bedroom semi-detached house for sale in Redgrave Road, Putney, London, SW15 — £2,325,000 • 4 bed • 3 bath • 1990 ft²
4 bedroom semi-detached house for sale in Upper Richmond Road, London, SW15 — £1,500,000 • 4 bed • 3 bath • 2702 ft²
5 bedroom house for sale in Ruvigny Gardens,
West Putney, SW15 — £2,165,000 • 5 bed • 4 bath • 2400 ft²
3 bedroom end of terrace house for sale in Westhorpe Road, London, SW15 — £1,195,000 • 3 bed • 1 bath • 1269 ft²






























































