Period charm and scope for improvement in a superb west Putney location for families.
- Four double bedrooms across three floors, including large principal suite
- Mature west-facing garden with patio, good for alfresco dining
- High ceilings and original period features throughout
- Mid-renovation: structural work started, significant finishes still required
- EPC rating E; likely higher running costs until upgraded
- Solid brick walls assumed without insulation, may need upgrading
- Freehold; no flood risk, very low local crime
- Council tax described as quite expensive
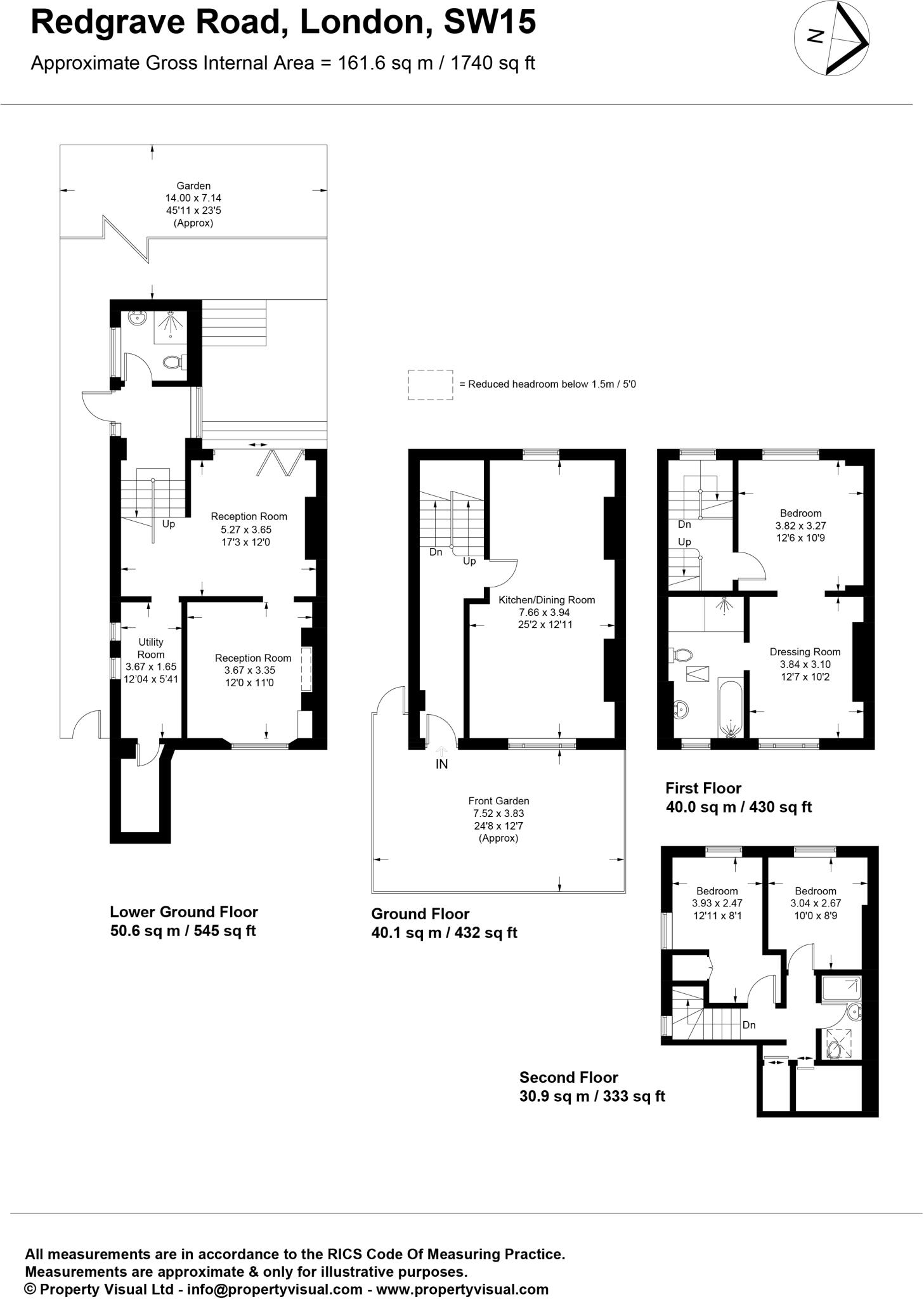
A handsome Victorian semi-detached house in west Putney, offering generous lateral space and high ceilings across 1,740 sq ft. The property is mid-renovation, with structural groundwork already underway, presenting a rare blank canvas for a buyer wishing to personalise finishes and layouts.
The principal suite occupies the entire first floor, with a large en suite and dressing room, while the top floor’s mansard extension provides two double bedrooms and a shower room. Ground-floor living includes a dual-aspect kitchen/dining room, a formal sitting room, TV room, utility and a downstairs bathroom—ideal for family life and flexible use.
Outside, a mature west-facing garden with patio and established borders is a strong family asset for afternoon sun and alfresco dining. The house sits on a small plot but is well set back from Redgrave Road and benefits from excellent local amenities, very low crime, fast broadband and strong transport links to Putney High Street and Putney Bridge.
Practical points to note: the property needs completion of its renovation, has an EPC rating of E, and solid brick walls likely lack modern insulation. Council tax is described as quite expensive. These are realistic considerations for budgeting further works and ongoing running costs.
4 bedroom semi-detached house for sale in Redgrave Road,
West Putney, SW15 — £1,750,000 • 4 bed • 3 bath • 1770 ft²
5 bedroom semi-detached house for sale in Clarendon Drive, Putney, London, SW15 — £2,250,000 • 5 bed • 3 bath • 2447 ft²
4 bedroom semi-detached house for sale in Redgrave Road, Putney, London, SW15 — £2,325,000 • 4 bed • 3 bath • 1990 ft²
4 bedroom terraced house for sale in Roskell Road, Putney, London, SW15 — £1,495,000 • 4 bed • 2 bath • 1978 ft²
3 bedroom end of terrace house for sale in Westhorpe Road, London, SW15 — £1,195,000 • 3 bed • 1 bath • 1269 ft²
4 bedroom semi-detached house for sale in Upper Richmond Road, London, SW15 — £1,500,000 • 4 bed • 3 bath • 2702 ft²


















































