Chain-free three-bed with development potential and sunny garden near Belvedere.
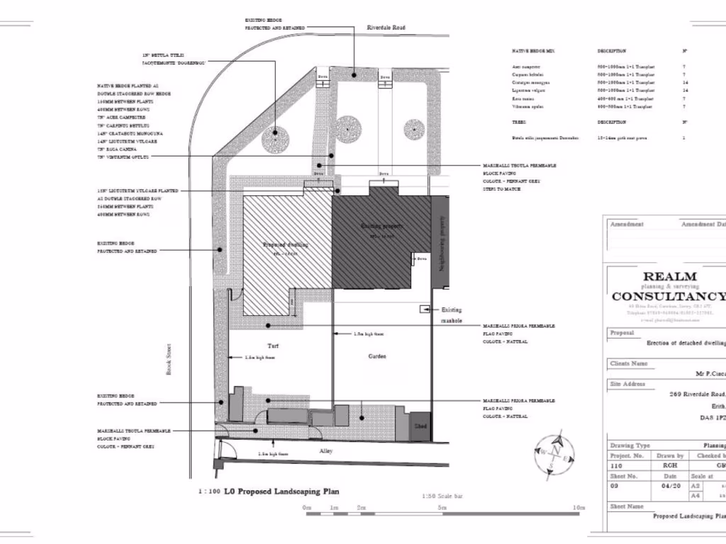
- Planning permission granted to build on side plot (plans available)
- Chain free; freehold tenure
- South-facing rear garden, good sunlight throughout the day
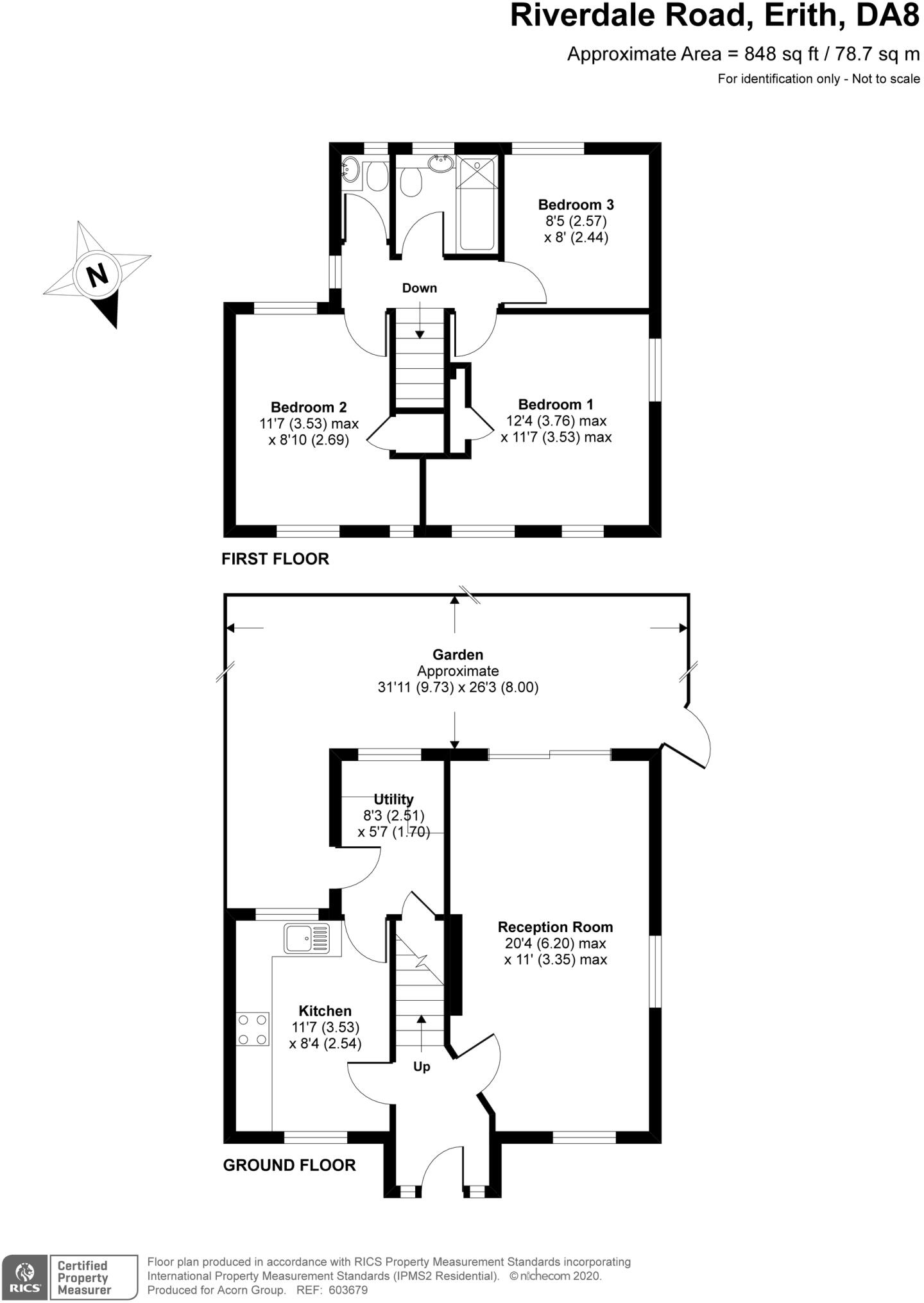
- Large triple-aspect reception room, 20'4" x 11' approx
- Modern kitchen, utility room could be integrated or extended (STPP)
- Single family bathroom; three bedrooms only
- Area classified as deprived; average local crime levels
- Energy Efficiency Rating D; mid-20th century build (1950s–1960s)
This end-of-terrace three-bedroom home on Riverdale Road offers 848 sqft of well-presented living space and practical family layout. The ground floor features a large, triple-aspect reception room and a modern L-shaped kitchen with a useful utility; upstairs are three generous bedrooms and a contemporary family bathroom. The south-facing rear garden is sunny and ready for landscaping or family use.
A standout value driver is the side plot with planning permission already granted to build a separate house (plans available). There is clear scope to extend the existing house (STPP) using the utility or side space, giving strong development and rental potential for investors or growing families seeking extra space.
Practical details are straightforward: freehold tenure, chain-free sale, gas central heating, double glazing, updated electrics and an affordable Council Tax band. Local transport links are good — Belvedere station is about 0.8 miles and Nuxley Village 0.4 miles — and shops, parks and a mix of primary and secondary schools are within easy reach.
Buyers should note material negatives plainly: the area is classified as deprived with average local crime levels, and the property, while well presented, sits on a modest plot and has one family bathroom. The Energy Performance Rating is D and the house dates from the 1950s–1960s, so longer-term maintenance and upgrade planning should be considered.
 3 bedroom semi-detached house for sale in Erith Road, Belvedere, DA17 — £495,000 • 3 bed • 1 bath • 1172 ft²
 3 bedroom semi-detached house for sale in Erith Road, Belvedere, DA17 — £495,000 • 3 bed • 1 bath • 1172 ft² 3 bedroom semi-detached house for sale in Riverdale Road, Bexley, DA5 — £625,000 • 3 bed • 1 bath • 1334 ft²
 3 bedroom semi-detached house for sale in Riverdale Road, Bexley, DA5 — £625,000 • 3 bed • 1 bath • 1334 ft² 3 bedroom semi-detached house for sale in Beltwood Road, Belvedere, DA17 — £450,000 • 3 bed • 1 bath • 872 ft²
 3 bedroom semi-detached house for sale in Beltwood Road, Belvedere, DA17 — £450,000 • 3 bed • 1 bath • 872 ft² 3 bedroom end of terrace house for sale in Caldy Road, Belvedere, DA17 — £475,000 • 3 bed • 1 bath • 1312 ft²
 3 bedroom end of terrace house for sale in Caldy Road, Belvedere, DA17 — £475,000 • 3 bed • 1 bath • 1312 ft² 3 bedroom semi-detached house for sale in Erith Road, Erith, DA8 — £400,000 • 3 bed • 1 bath • 1335 ft²
 3 bedroom semi-detached house for sale in Erith Road, Erith, DA8 — £400,000 • 3 bed • 1 bath • 1335 ft² 3 bedroom semi-detached house for sale in Coptefield Drive, Belvedere, DA17 — £450,000 • 3 bed • 1 bath
 3 bedroom semi-detached house for sale in Coptefield Drive, Belvedere, DA17 — £450,000 • 3 bed • 1 bath






































































