Prime Burnham location for redevelopment or rental income.
Freehold mixed-use building, approximately 3,550 sq ft total
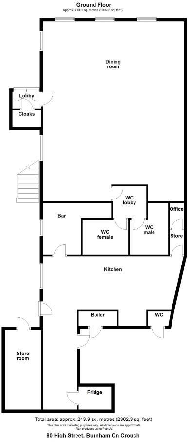
A substantial freehold building on Burnham-on-Crouch’s High Street offered for sale by public auction with vacant possession. The property combines a former restaurant unit at ground floor (c.2,300 sq ft) and a large duplex residential element above (c.1,250 sq ft), giving c.3,550 sq ft in total and genuine mixed-use potential for investors or developers.
The ground floor retains commercial kitchen fittings and open-plan areas suitable for reoccupation as a restaurant or alternative commercial use (subject to consents). The upper floors are arranged as a 4/5-bedroom duplex and could be retained as one large flat, adapted into multiple studios or HMOs, or refurbished to other residential uses — planning and building regulation approvals would be required.
Important practical facts: the building is sold at auction, has no private off-street parking (on-street only), and is noted with EPC ratings Residential E and Commercial B. Business rates from 1 April 2023 are shown at £16,500 pa. The property will need some updating and verification of services; buyers should allow for refurbishment and confirm planning potential with Maldon District Council.
Located in a sought-after sailing town with good local amenities, rail links and strong seasonal footfall, this is an opportunity for a buyer seeking an income-producing asset or a conversion/refurbishment project in a prime high-street location. Public notice indicates sale by auction/repo process; purchasers must carry out their own due diligence.
Commercial property for sale in High Street, Burnham-On-Crouch, CM0 — £325,000 • 4 bed • 2 bath • 3500 ft²
5 bedroom mixed use property for sale in 80 High Street, Burnham-on-Crouch, Essex, CM0 8AA, CM0 — £325,000 • 5 bed • 1 bath • 3550 ft²
2 bedroom mixed use property for sale in 162-164 High Street, Maldon, Essex, CM9 5BX, CM9 — £380,000 • 2 bed • 1 bath • 1480 ft²
Mixed use property for sale in 40 High Street, Burnham-on-crouch, Essex, CM0 — £300,000 • 1 bed • 1 bath • 2904 ft²
5 bedroom house for sale in High Street, Burnham-On-Crouch, CM0 — £600,000 • 5 bed • 1 bath
3 bedroom semi-detached house for sale in Station Road, Burnham-On-Crouch, CM0 — £250,000 • 3 bed • 1 bath • 1315 ft²






















































































