Large vacant mixed‑use building with garage, courtyard and strong conversion potential.
Large mixed‑use freehold: restaurant (ground) plus 5‑bed duplex above
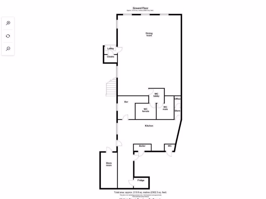
A substantial mixed‑use freehold in Burnham‑on‑Crouch offering a former ground‑floor restaurant and a large duplex five‑bedroom flat above. The ground floor space (approx. 2,300 sq ft) provides flexible commercial potential for another hospitality use or alternative trade, subject to necessary consents. The upper duplex (approx. 1,250 sq ft) currently provides communal living, kitchen, bathroom and five bedrooms and could be adapted into multiple lettings or studios with planning permission.
This building is offered vacant and will be sold at public auction, making it suitable for investors or owner‑occupiers with a renovation brief. The property dates from 1930–1949 with solid brick walls (likely uninsulated) and older double glazing; there will be ongoing maintenance and upgrade work needed to modernise heating, insulation and internal finishes. The attic conversion has low, sloped ceilings and limited natural light in places.
Practical positives include a rear courtyard and garage storage, mains gas central heating, fast broadband and a low flood risk. Important constraints: no planning permissions are currently granted for conversion to studios/MO lettings and any change of use will require Maldon District Council consent. The sale is by auction and is subject to public notice/repossession — buyers should carry out full enquiries and factor in renovation costs and consent timelines.
Commercial property for sale in High Street, Burnham-On-Crouch, CM0 — £325,000 • 4 bed • 2 bath • 3500 ft²
2 bedroom mixed use property for sale in 162-164 High Street, Maldon, Essex, CM9 5BX, CM9 — £380,000 • 2 bed • 1 bath • 1480 ft²
4 bedroom cottage for sale in High Street, Burnham-On-Crouch, CM0 — £500,000 • 4 bed • 2 bath • 3500 ft²
3 bedroom semi-detached house for sale in Station Road, Burnham-On-Crouch, CM0 — £250,000 • 3 bed • 1 bath • 1315 ft²
Mixed use property for sale in 40 High Street, Burnham-on-crouch, Essex, CM0 — £300,000 • 1 bed • 1 bath • 2904 ft²
1 bedroom cottage for sale in 36 North Street, Maldon, Essex, CM9 5HL, CM9 — £165,000 • 1 bed • 1 bath • 496 ft²


























































































