**Standout Features:**
- Late Edwardian detached house with original period details
- Spacious 4-bedroom, 3-bathroom layout (1976 sq. ft)
- Double garage and a unique in & out driveway
- Expansive rear garden with views of the cricket ground
- Versatile accommodation potential for an annexe
- High-quality local schools and excellent commuting links
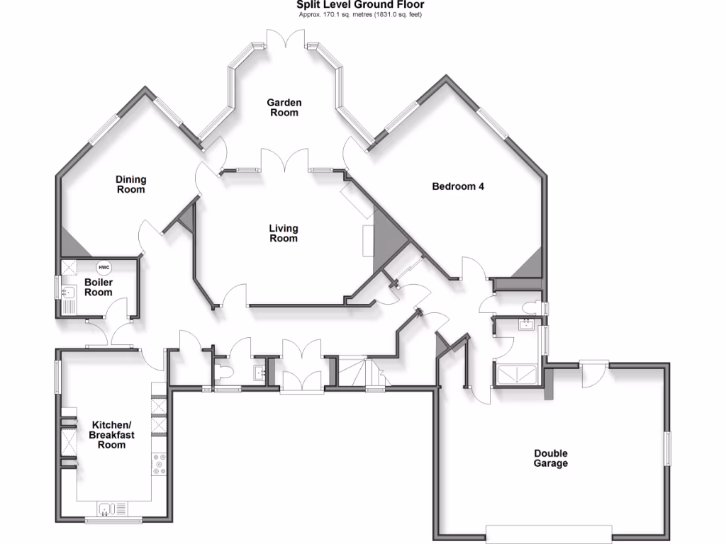
Nestled in a tranquil area of Folkestone, this enchanting late Edwardian detached home is perfect for families and investors alike. Spanning an impressive 1976 square feet, the residence features well-preserved original elements such as oak flooring, ornate coving, and a charming garden room that seamlessly connects indoor and outdoor spaces. Enjoy your evenings on the first-floor balcony overlooking the local cricket pitch or entertain guests in the spacious garden, enhanced by a summerhouse and vegetable plot.
While the house presents extensive character and comfort, it also offers potential for modernization. Currently, the double garage could be converted into additional living space, subject to planning permission. The property is set within a green oasis, complete with a large lawn surrounded by trees and shrubs for privacy and serenity. Furthermore, the location provides easy access to local amenities, schools, and fast commutes to London, making it a lucrative choice for those seeking a family home or rental investment. Seize this opportunity to own a unique property that blends elegance, space, and future potential!
7 bedroom detached house for sale in Dixwell Road, Folkestone, Kent, CT20 — £1,600,000 • 7 bed • 4 bath • 754 ft²
4 bedroom detached house for sale in Cherry Garden Lane, Folkestone, Kent, CT19 — £875,000 • 4 bed • 2 bath • 1486 ft²
6 bedroom detached house for sale in Julian Road, Folkestone, CT19 — £875,000 • 6 bed • 2 bath • 3084 ft²
4 bedroom detached house for sale in Cornwallis Avenue, Folkestone, Kent, CT19 — £795,000 • 4 bed • 2 bath • 2162 ft²
5 bedroom detached house for sale in Cherry Garden Avenue, Folkestone, CT19 — £825,000 • 5 bed • 2 bath • 2706 ft²
5 bedroom detached house for sale in Godwyn Road, Folkestone, CT20 — £1,000,000 • 5 bed • 2 bath • 2615 ft²














































































