Spacious multigenerational living with large garden and strong transport links.
Short walk to Folkestone seafront and local amenities
This substantial 1920s detached house sits on a very large 0.511-acre plot a short walk from Folkestone seafront. Recently renovated, the house retains and sympathetically replaced many original period features — oak staircase, wood floors and fireplaces — while providing flexible accommodation across three floors. The mature, landscaped rear garden and wide crazy‑paved terrace create private outdoor space well suited to family life and entertaining.
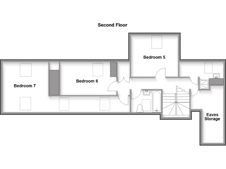
Accommodation is generous: seven bedrooms, four bathrooms and numerous reception rooms including a 32ft double‑aspect drawing room, separate sitting room and a dual‑aspect kitchen/dining room with central island. A self-contained ground‑floor wing with utility, wet room and office offers scope for a granny annexe, home business or multigenerational living. Driveway parking and a garage with inspection pit add practical value.
Practical points to note: the property’s solid brick walls are those as built and are assumed to have no added cavity insulation; buyers may want to budget for further thermal improvements. Council tax is described as quite expensive and the wider area has pockets of deprivation; these are factual considerations alongside excellent local schools and fast rail connections to London St Pancras from Folkestone West.
Overall this home will suit a large family or buyers seeking flexible multigenerational accommodation with strong period character, generous outside space and convenient coastal and transport links. The recent renovation reduces immediate refurbishment work, but there remains scope to modernise energy efficiency and personalise interiors further.
 4 bedroom detached house for sale in Cherry Garden Lane, Folkestone, Kent, CT19 — £875,000 • 4 bed • 2 bath • 1486 ft²
 4 bedroom detached house for sale in Cherry Garden Lane, Folkestone, Kent, CT19 — £875,000 • 4 bed • 2 bath • 1486 ft² 4 bedroom detached house for sale in Cornwallis Avenue, Folkestone, CT19 — £750,000 • 4 bed • 1 bath • 2011 ft²
 4 bedroom detached house for sale in Cornwallis Avenue, Folkestone, CT19 — £750,000 • 4 bed • 1 bath • 2011 ft² 4 bedroom house for sale in Welson Road, Folkestone, CT20 — £695,000 • 4 bed • 2 bath • 2062 ft²
 4 bedroom house for sale in Welson Road, Folkestone, CT20 — £695,000 • 4 bed • 2 bath • 2062 ft² 6 bedroom detached house for sale in Lindenthorpe Road, Broadstairs, Kent, CT10 — £1,500,000 • 6 bed • 5 bath • 3542 ft²
 6 bedroom detached house for sale in Lindenthorpe Road, Broadstairs, Kent, CT10 — £1,500,000 • 6 bed • 5 bath • 3542 ft² 5 bedroom detached house for sale in Dixwell Road, Folkestone, CT20 — £1,750,000 • 5 bed • 4 bath • 5737 ft²
 5 bedroom detached house for sale in Dixwell Road, Folkestone, CT20 — £1,750,000 • 5 bed • 4 bath • 5737 ft² 4 bedroom detached house for sale in Old Park Avenue, Dover, Kent, CT16 — £775,000 • 4 bed • 2 bath • 2175 ft²
 4 bedroom detached house for sale in Old Park Avenue, Dover, Kent, CT16 — £775,000 • 4 bed • 2 bath • 2175 ft²


















































































































































































