**Standout Features:**
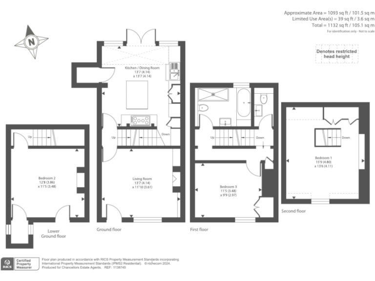
- Flexible accommodation across four floors
- Delightful extended kitchen/dining room with large central island
- Three bedrooms with potential for a loft room
- Private enclosed patio garden with off-street parking for two vehicles
- Located in the highly desirable village of Sonning, near the River Thames
- Average size: 1,132 sq ft
- Freehold tenure
- Exceptional local schools with high ratings
**Property Summary:**
Discover this charming three-bedroom Victorian mid-terrace property in the picturesque village of Sonning, just 500 yards from the scenic River Thames. This thoughtfully extended home showcases a spacious kitchen/dining area with a conservatory-style extension, perfect for entertainment and family gatherings. Enjoy off-street parking for two vehicles at the rear, alongside an enclosed patio garden offering secluded outdoor relaxation.
The versatile lower ground floor can serve as a second bedroom or additional reception room with its independent access from Thames Street, adding to the property's potential. The first floor features a comfortable principal bedroom, a well-appointed family bathroom, and an additional WC, while the second floor loft room currently serves as a bedroom with built-in storage.
Location is a key selling point, with local amenities, reputable restaurants, and excellent schools nearby. The vibrant community and low crime rates make this a perfect choice for families or first-time buyers. With a price of £500,000 for this exquisite home, don't miss the opportunity to secure a property that offers both charm and functional living space in a sought-after area.
2 bedroom end of terrace house for sale in Thames Street, Sonning, Reading, Berkshire, RG4 — £525,000 • 2 bed • 1 bath • 1537 ft²
3 bedroom house for sale in Sonning, RG4 — £750,000 • 3 bed • 2 bath • 1302 ft²
5 bedroom detached house for sale in Spring Lane, Sonning, Reading, Oxfordshire, RG4 — £835,000 • 5 bed • 3 bath • 2311 ft²
4 bedroom semi-detached house for sale in Bath Road, Sonning, Reading, Berkshire, RG4 — £695,000 • 4 bed • 2 bath • 1420 ft²
4 bedroom detached house for sale in Bath Road, Sonning, Reading, RG4 — £850,000 • 4 bed • 3 bath • 1742 ft²
5 bedroom detached house for sale in Sonning Meadows, Sonning, Reading, Berkshire, RG4 — £1,250,000 • 5 bed • 3 bath • 2639 ft²














































