Chain-free Victorian terrace — compact two-bedroom home with small gardens and renovation potential.
Chain-free Victorian mid-terrace, freehold
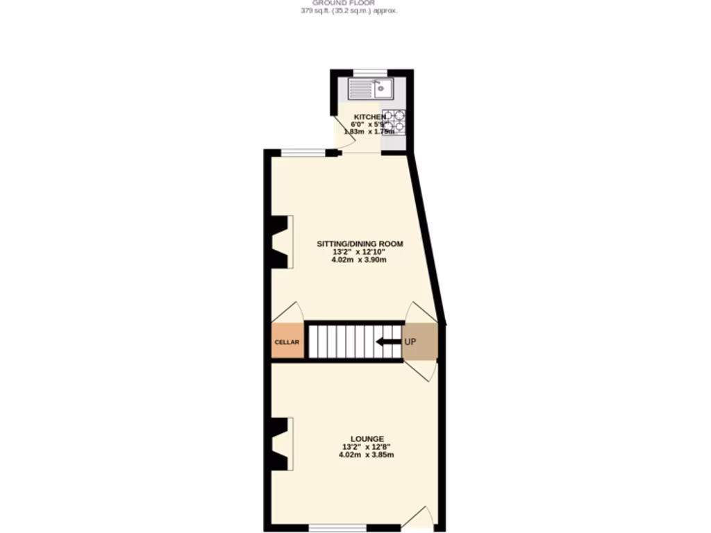
This chain-free Victorian mid-terrace offers an affordable entry into Wombwell with practical living space and small front and rear gardens. The house benefits from double glazing, central heating and a fitted kitchen with oven and hob — ready for immediate occupation while offering scope to improve. At roughly 405 sq ft, the layout includes a lounge, separate dining room, two first-floor bedrooms and a family bathroom accessed via Bedroom 2.
The property is well placed for everyday needs: supermarkets, bus links and several good primary and secondary schools are within easy reach. The local area supports first-time buyers and provides fast broadband and excellent mobile signal, making the home convenient for work and study.
Buyers should note the size is compact and the home may need updating; images and description indicate potential damp and general renovation work typical of older Victorian terraces. The bathroom arrangement (accessed through Bedroom 2) limits privacy unless reconfigured. The neighbourhood is a working-class, economically challenged area — factors to consider for resale and rental demand.
Overall this freehold terrace suits first-time buyers or compact-household buyers seeking a low-cost, chain-free purchase with renovation potential and good local amenities. Early viewing is recommended to assess the property’s condition and improvement possibilities.
2 bedroom terraced house for sale in Station Road, Wombwell, Barnsley, South Yorkshire, S73 — £89,950 • 2 bed • 1 bath • 679 ft²
2 bedroom terraced house for sale in Hough Lane, Wombwell, Barnsley, S73 — £137,500 • 2 bed • 1 bath • 1007 ft²
2 bedroom terraced house for sale in Station Road, Wombwell, Barnsley, S73 0BJ, S73 — £80,000 • 2 bed • 1 bath • 765 ft²
2 bedroom terraced house for sale in Wath Road, Wombwell, Barnsley, S73 — £130,000 • 2 bed • 1 bath • 749 ft²
2 bedroom terraced house for sale in Bank Street, Barnsley, South Yorkshire, S70 — £110,000 • 2 bed • 1 bath • 773 ft²
2 bedroom terraced house for sale in Bond Street, Wombwell, Barnsley, S73 8JD, S73 — £75,000 • 2 bed • 1 bath • 465 ft²


















































































