Freshly updated two-bedroom home with extra loft space and low running costs.
Chain-free sale at an accessible £130,000
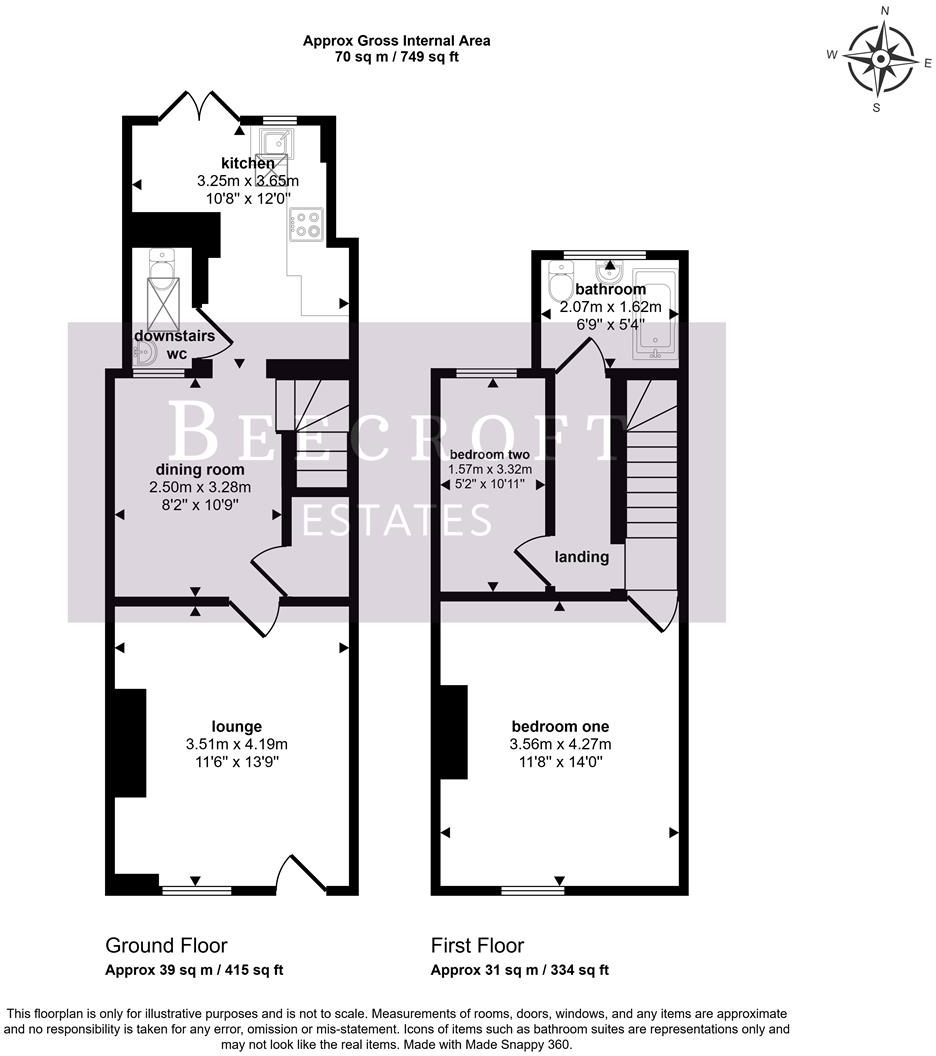
Rear kitchen extension with French doors to private patio
Converted loft with Velux; access by drop-down ladder
Recently decorated and newly carpeted throughout
Downstairs WC for added convenience
Solid-brick Victorian build; assumed no wall insulation
Modest rear patio, shared access beyond vendor’s enclosed area
Area: deprived neighbourhood; average crime, fast broadband, excellent mobile
This two-bedroom mid-terrace on Wath Road offers an affordable, move-in-ready option for first-time buyers or couples. Recent decoration and new carpets create a fresh interior, and a rear kitchen extension with French doors opens onto a private patio for low-maintenance outdoor space.
The converted loft with Velux provides useful extra space for a home office or guest room, but access is via a pull-down ladder rather than a fixed staircase. The home includes a convenient downstairs WC and gas central heating with a boiler and radiators. Broadly average room sizes suit everyday living rather than large-family requirements.
Practical considerations: the property is solid-brick Victorian construction with no known wall insulation (assumed), which could mean future insulation or improvement costs. The rear garden is modest and part of a shared access arrangement, currently enclosed by the vendor. The area is described as deprived with average crime levels, but benefits from fast broadband, excellent mobile signal, nearby shopping at Cortonwood Retail Park, and several local schools rated Good or Outstanding.
Chain-free sale and a low council tax band make this a straightforward purchase at an accessible price point. The house is best for buyers seeking a compact, recently refreshed home with scope to personalise or add insulating improvements over time.
2 bedroom terraced house for sale in Wath Road, Wombwell, S73 — £100,000 • 2 bed • 1 bath • 678 ft²
2 bedroom terraced house for sale in Bank End Road, Barnsley, S70 — £120,000 • 2 bed • 1 bath • 810 ft²
2 bedroom semi-detached house for sale in Barnsley Road, Wath-Upon-Dearne, S63 6PZ, S63 — £120,000 • 2 bed • 1 bath • 937 ft²
2 bedroom terraced house for sale in Everill Gate Lane, Wombwell, BARNSLEY, S73 — £120,000 • 2 bed • 1 bath • 697 ft²
2 bedroom terraced house for sale in Vicar Road, Wath-Upon-Dearne, Rotherham, S63 — £110,000 • 2 bed • 1 bath • 894 ft²
2 bedroom terraced house for sale in George Street, Wombwell, Barnsley, S73 — £105,000 • 2 bed • 1 bath • 625 ft²






























































