Vacant three-bed home with garden and parking, ideal for a renovation project.
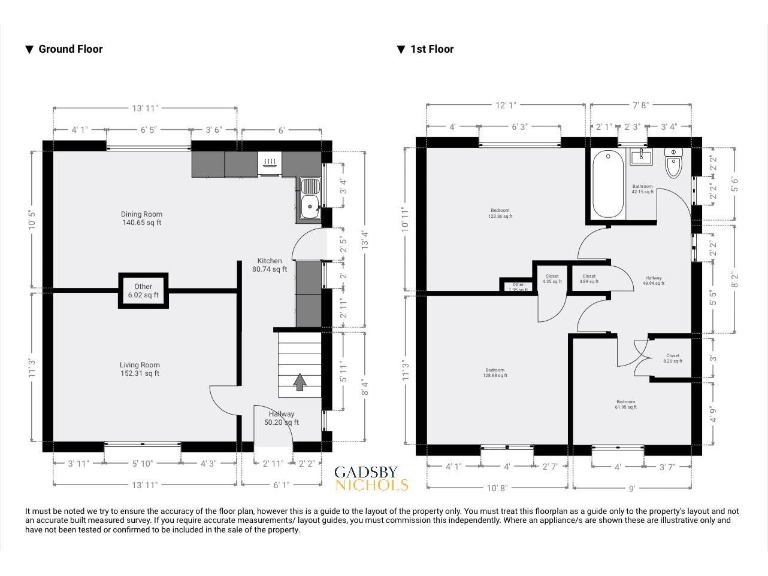
Three bedrooms and two reception rooms, practical family layout
A three-bedroom semi-detached home in Borrowash offered with immediate vacant possession and clear scope for improvement. The house has two reception rooms, a compact kitchen, and a wide rear garden — a straightforward layout that will suit a growing family or an investor seeking a value purchase.
Practical benefits include gas central heating, UPVC double glazing, tandem off-street parking and fast broadband with excellent mobile signal. The property sits close to Elvaston Park, local shops, and several primary schools, and has easy access to the A52 and M1 for commuting.
The house requires renovation and cosmetic updating throughout; fixtures and fittings are dated and the property is sold as in need of work. There is potential for a structural extension subject to planning and building regulations, which could materially increase living space and value.
Note the EPC rating is D and the property lies in an area with higher deprivation indicators; crime is average. Council Tax band A makes running costs low, but buyers should factor refurbishment costs and any planning timescales into their budget and schedule.
3 bedroom semi-detached house for sale in Victoria Avenue, Borrowash, DE72 — £375,000 • 3 bed • 1 bath • 1378 ft²
4 bedroom detached house for sale in Belmont Drive, Borrowash, DE72 — £315,000 • 4 bed • 2 bath • 973 ft²
3 bedroom semi-detached house for sale in Derby Road, Borrowash, Derby, DE72 — £175,000 • 3 bed • 1 bath • 804 ft²
3 bedroom semi-detached house for sale in Princess Drive, Borrowash, DE72 — £240,000 • 3 bed • 1 bath • 930 ft²
3 bedroom semi-detached house for sale in Ladbroke Gardens, Mackworth, DE22 — £160,000 • 3 bed • 1 bath • 733 ft²
3 bedroom semi-detached house for sale in Beaufort Street, Derby, Derbyshire, DE21 — £220,000 • 3 bed • 1 bath • 910 ft²






































