**Standout Features:**
- Iconic double-fronted retail property in prime Ramsbottom location
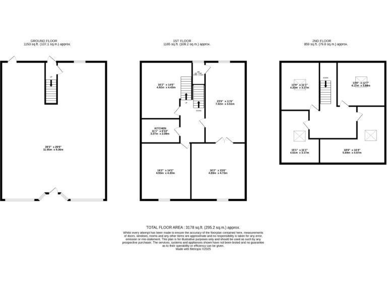
- Spacious total area of 3,100 sq ft across three floors
- Freehold tenure, providing ownership advantages
- Low crime rate and affluent neighborhood classification
- Excellent mobile signal and fast broadband speeds
**Potential Concerns:**
- Requires redevelopment for mixed-use potential
- Interior maintenance may be needed based on age and use
This exceptional retail property offers a unique opportunity in the heart of Ramsbottom, combining classic Victorian architecture with modern commercial potential. With 3,100 square feet of versatile space distributed over three floors, you can easily envision creating a vibrant retail environment while considering options for residential units above. The double-fronted facade enhances street appeal and invites a steady flow of foot traffic, ideal for entrepreneurs looking to establish a prominent presence.
The prime location benefits from an array of amenities, including restaurants, childcare, and various retail options, making it an attractive spot for families and professionals alike. With low crime rates and affluent surroundings, this property promises a secure investment. Additionally, with the possibility of subdividing the space (subject to permissions), the potential for profitable mixed-use development is significant. Seize this rare opportunity to transform an iconic property into a thriving business venture that offers both immediate return and future value in an ever-evolving market. Don't miss out – properties like this don’t last long!
High street retail property for sale in 8 Square Street, Ramsbottom, Bury, BL0 9BE, BL0 — £199,950 • 1 bed • 1 bath • 1044 ft²
Shop for sale in Bridge Street, Ramsbottom, Bury, BL0 — £195,000 • 1 bed • 1 bath • 790 ft²
Commercial property for sale in Bolton Street, Ramsbottom, Bury, BL0 — £230,000 • 1 bed • 1 bath • 1190 ft²
High street retail property for sale in Bank Street, Rossendale (district Of), Lancashire, BB4 — £260,000 • 1 bed • 1 bath • 4322 ft²
Commercial property for sale in 51-53 Bolton Street, Ramsbottom, Bury, Greater Manchester, BL0 — £595,000 • 1 bed • 1 bath • 12000 ft²
Hairdressers or barber shop for sale in Bolton Road West, Ramsbottom, Bury, BL0 — £259,000 • 2 bed • 1 bath • 1423 ft²


















































