**Standout Features:**
- Immaculate condition, modern design
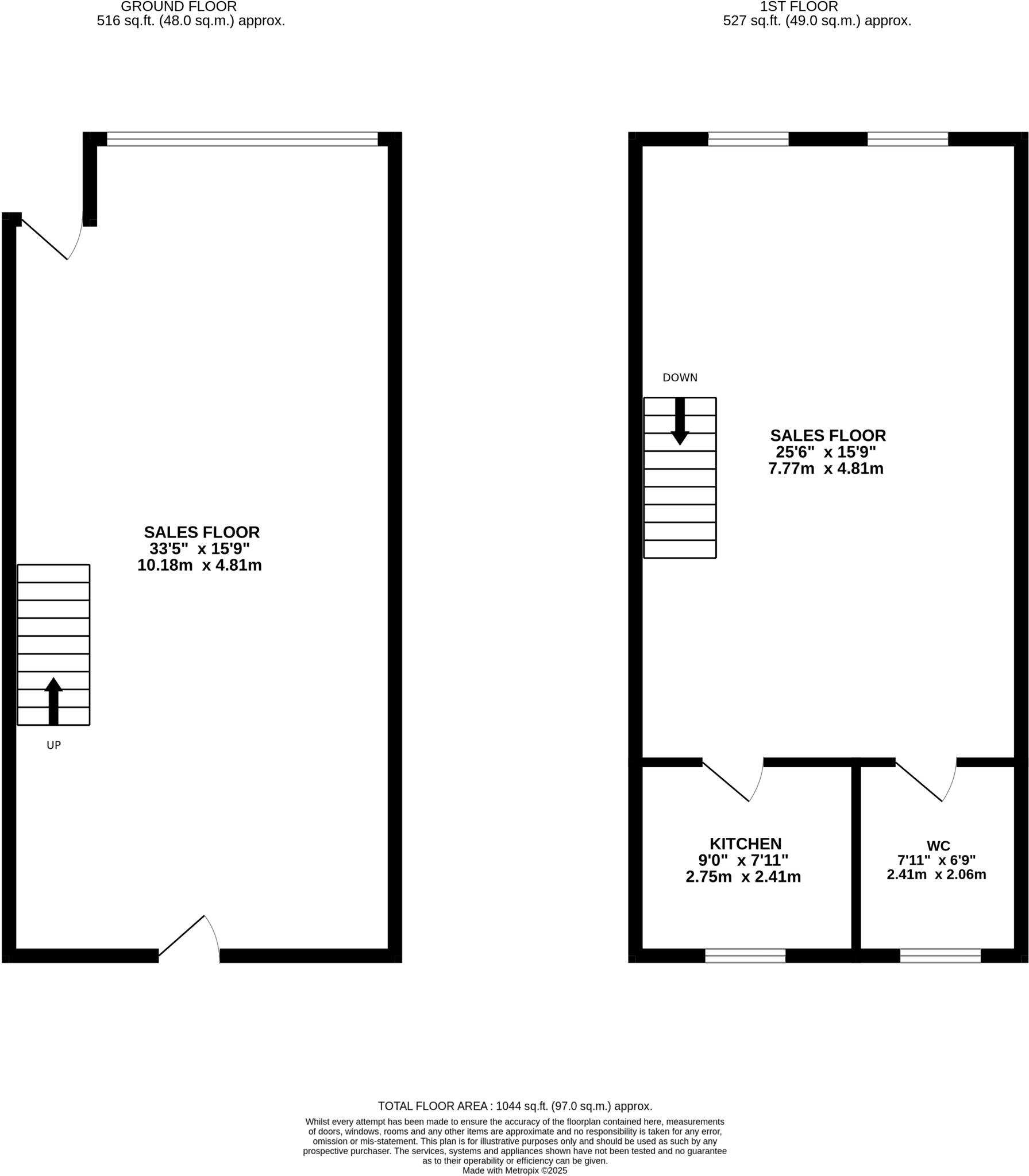
- Two floors with versatile commercial layout (1,044 sq ft)
- Ground floor large open plan sales area
- First-floor distinct sales area, staff kitchen, and W.C.
- Rear flagged yard area for additional utility
- Prime location in the heart of Ramsbottom Village
**Summary:**
Discover this prime commercial opportunity in the bustling heart of Ramsbottom Village. This exquisite two-floor retail property, previously utilized as a high-end clothes shop and audio-visual retailer, offers a spacious 1,044 square feet of versatile space. The ground floor features a generous open-plan sales area, perfect for attracting foot traffic and showcasing products. Upstairs, you will find an additional sales area, along with essential amenities including a staff kitchen and W.C.—ideal for any business needing operational convenience.
With its modern stone facade and excellent visibility, this property is not only an attractive business location but also presents a brilliant investment opportunity. While the surrounding area is affluent and vibrant, potential buyers should note that additional renovations could further enhance the space to fit specific business needs. Don't miss the chance to secure a spot in this renowned community—explore the potential today before someone else does!
High street retail property for sale in 51-53 Bridge Street, Ramsbottom, Bury, BL0 9AD, BL0 — £450,000 • 1 bed • 1 bath • 3100 ft²
Commercial property for sale in Bolton Street, Ramsbottom, Bury, BL0 — £230,000 • 1 bed • 1 bath • 1190 ft²
Shop for sale in Bridge Street, Ramsbottom, Bury, BL0 — £195,000 • 1 bed • 1 bath • 790 ft²
Hairdressers or barber shop for sale in Bolton Road West, Ramsbottom, Bury, BL0 — £259,000 • 2 bed • 1 bath • 1423 ft²
High street retail property for sale in Bank Street, Rossendale (district Of), Lancashire, BB4 — £260,000 • 1 bed • 1 bath • 4322 ft²
Commercial property for sale in 51-53 Bolton Street, Ramsbottom, Bury, Greater Manchester, BL0 — £595,000 • 1 bed • 1 bath • 12000 ft²






































