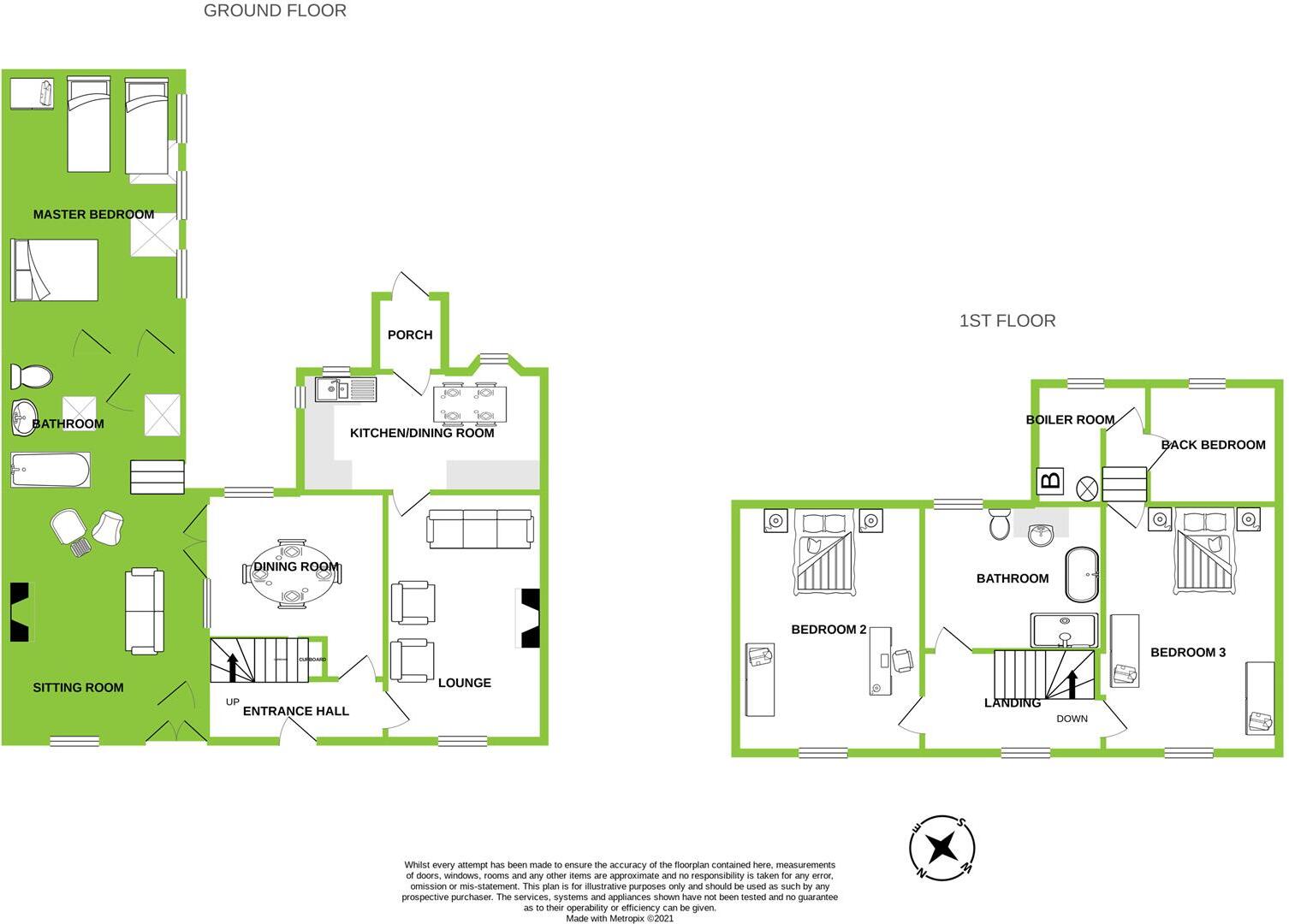
**Key Features:**
- 3 spacious double bedrooms and 2 bathrooms
- Versatile layout for family living or rental potential
- Attached annexe with its own entrance – previously used as a B&B
- Large terraced garden with scenic views and direct access to local primary school
- Located on High Street in sought-after Aberlour
- Off-street parking available
Nestled in the vibrant High Street of Aberlour, this charming 3-bedroom townhouse from 1903 blends classic character with modern versatility, making it an excellent choice for families or investors. Spanning 1,668 square feet, the property features three generous reception rooms, large double bedrooms, and two well-appointed bathrooms. The inviting lounge with a cozy stove and functional dining kitchen form perfect spaces for family gatherings.
A unique highlight is the attached annexe, offering a separate entrance, bedroom, and lounge, ideal for guests or as a rental unit. The terraced rear garden provides a peaceful retreat, complete with impressive views and pedestrian access to the primary school, enhancing its appeal for families. While the property holds tremendous potential for personal touches and renovations, be aware that it may require some modern upgrades in areas. This versatile townhouse, rich in design and full of potential, is a must-see for anyone seeking a spacious home or promising investment in a desirable location. Don’t miss out on this opportunity!
2 bedroom terraced house for sale in High Street, Aberlour, AB38 9QD, AB38 — £170,000 • 2 bed • 1 bath • 807 ft²
4 bedroom semi-detached house for sale in High Street, Aberlour, Banffshire, AB38 — £225,000 • 4 bed • 2 bath • 1490 ft²
3 bedroom terraced house for sale in Church Street, Dufftown, Keith, Scotland, AB55 — £260,000 • 3 bed • 1 bath • 581 ft²
3 bedroom detached house for sale in 2 Elchies Road, Aberlour, AB38 — £199,950 • 3 bed • 2 bath • 478 ft²
3 bedroom terraced house for sale in Fife Street, Dufftown, Keith, Moray, AB55 — £105,000 • 3 bed • 1 bath • 1659 ft²
5 bedroom detached house for sale in Mary Avenue, Aberlour, AB38 — £400,000 • 5 bed • 5 bath • 4951 ft²










































































































































