Affordable renovation project in central Dufftown with generous floor area.
Three double bedrooms; master with separate dressing room
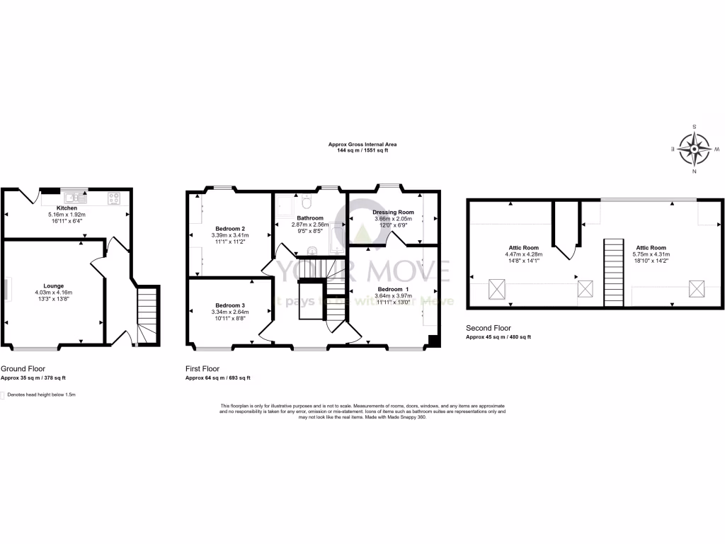
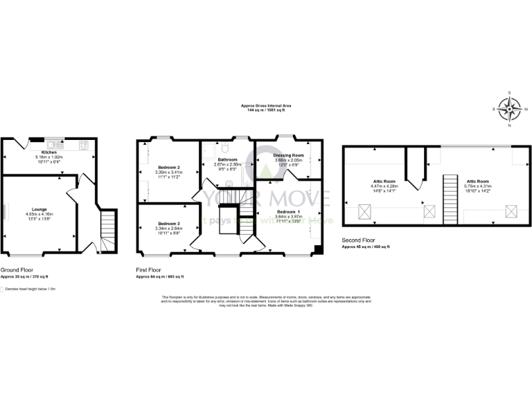
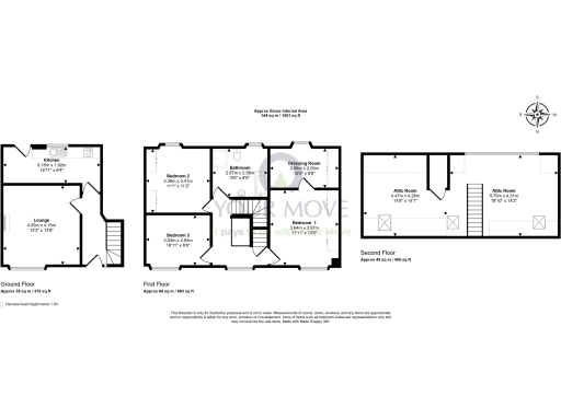
A traditional stone terraced townhouse in central Dufftown offering substantial floor area and clear scope for improvement. The house has three generous double bedrooms; the master includes a separate dressing room, and a large bathroom provides both bath and shower. High ceilings, period fireplace details and an open-plan attic room create real potential for bright, characterful living spaces.
The property is sold freehold and sits on-street in a location well served by public transport and local amenities. Broadband is average and mobile signal is excellent. At the asking price this will suit buyers looking for an affordable home to modernise or an investor prepared to renovate and add value.
Important practical points: the house needs renovation — cosmetic and likely updating of services — and there is a single bathroom for three bedrooms. The area is described as very deprived, which may affect resale pace and local services. On-street parking only and council tax is low.
This is a straightforward project property with strong upside for those comfortable managing refurbishment in a rural/industrial town setting. Viewings will suit buyers seeking space, period character and a central Dufftown address to personalise over time.
3 bedroom semi-detached house for sale in Auchinview, Church Street, Dufftown, AB55 4AR, AB55 — £175,000 • 3 bed • 1 bath
3 bedroom terraced house for sale in York Street, Dufftown, AB55 — £145,000 • 3 bed • 2 bath • 1195 ft²
High street retail property for sale in Fife Street, Dufftown, Keith, Moray, AB55 — £295,000 • 4 bed • 2 bath • 2617 ft²
7 bedroom semi-detached house for sale in Conval Street, Dufftown, AB55 — £300,000 • 7 bed • 3 bath • 3068 ft²
3 bedroom end of terrace house for sale in Balvenie Street, Dufftown, AB55 4AS, AB55 — £220,000 • 3 bed • 1 bath
3 bedroom terraced house for sale in Church Street, Dufftown, Keith, Scotland, AB55 — £260,000 • 3 bed • 1 bath • 581 ft²


























































































































































