Ready-for-build town centre site with consented seven‑unit scheme and early site works complete.
- Freehold development plot of c.0.49 acres, level and cleared
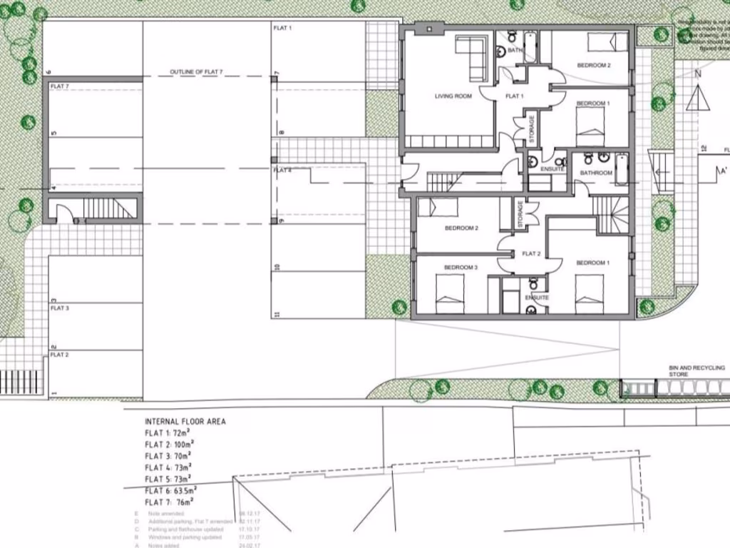
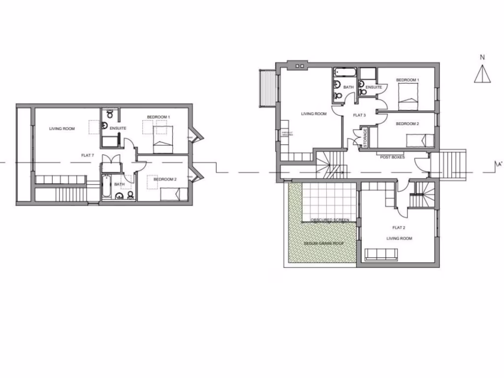
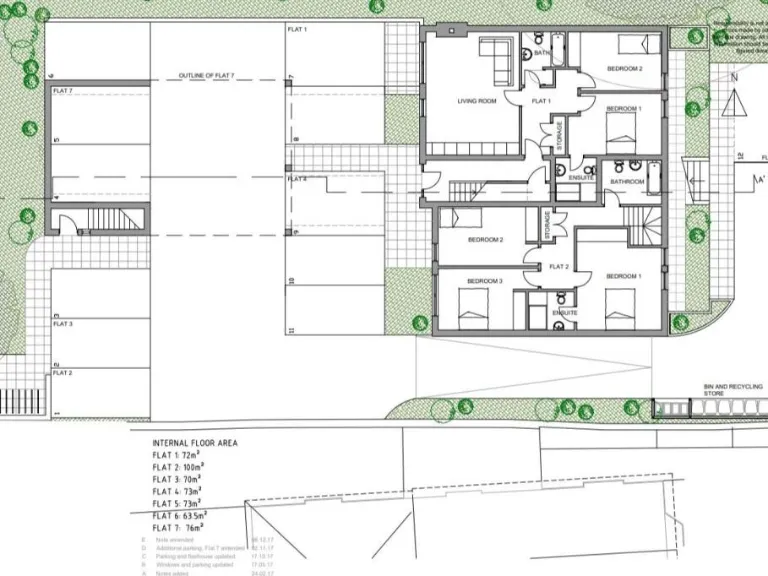
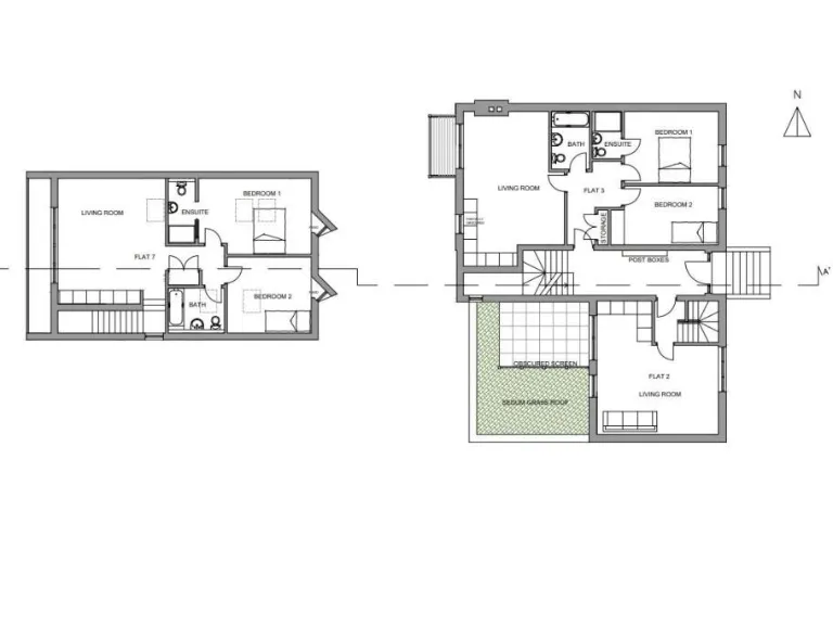
- Planning granted for 7 units (ref 17/P/5425/FUL), GDV ~£1.895m
- Site partially excavated and CIL reported paid (£26,000)
- Allocated off‑street parking and proximity to town amenities
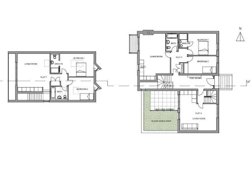
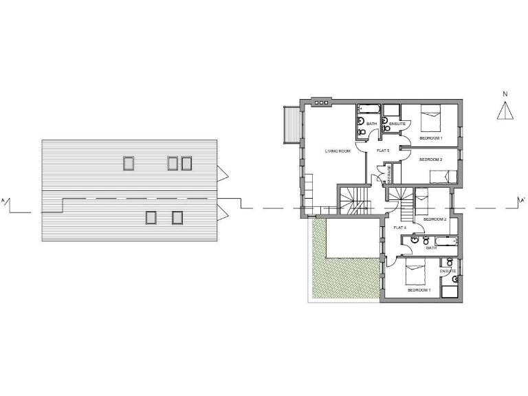
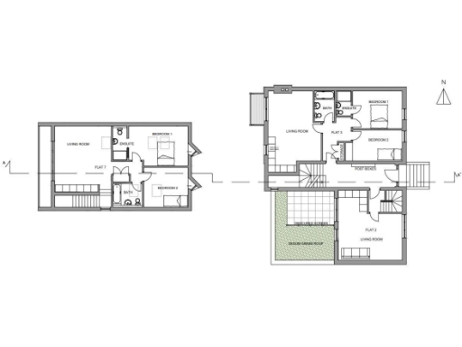
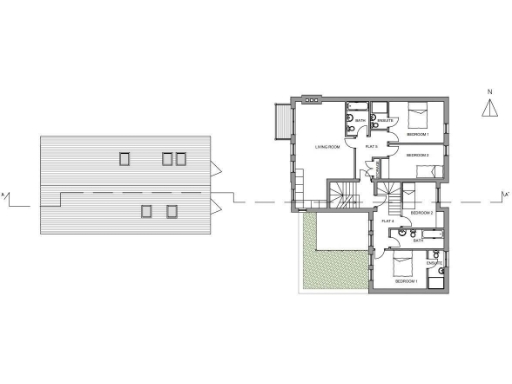
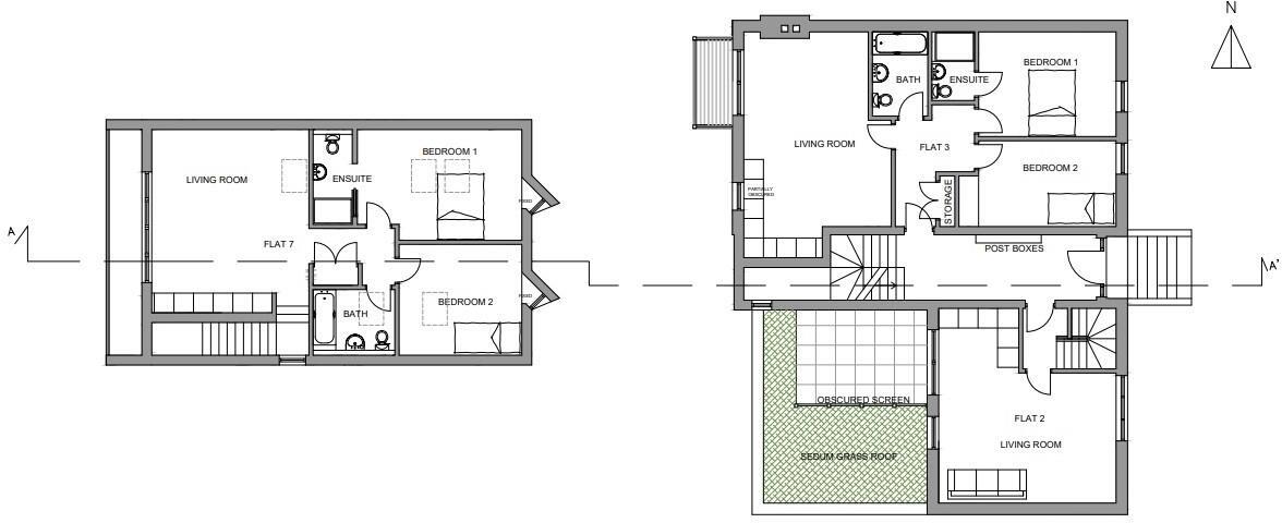
- Potential to convert flat layout to add bedroom; scope for extra land
- Buyers must verify remaining planning conditions and consents
- Services, building regs and exact costs untested; legal pack essential
- Neighbouring relationships and drop in levels may constrain design
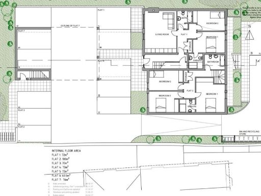
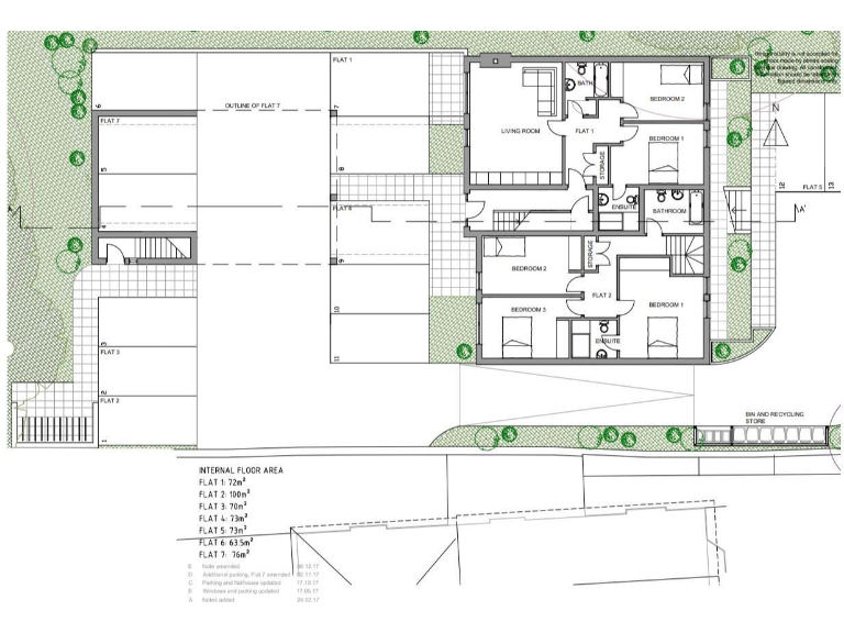
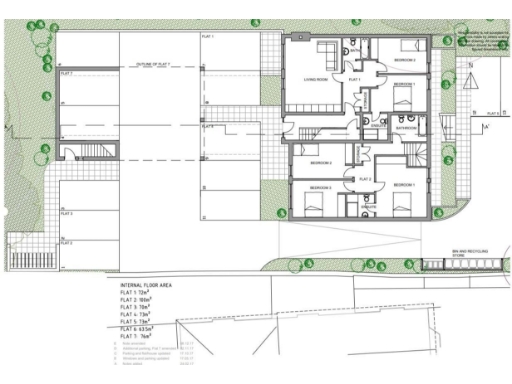
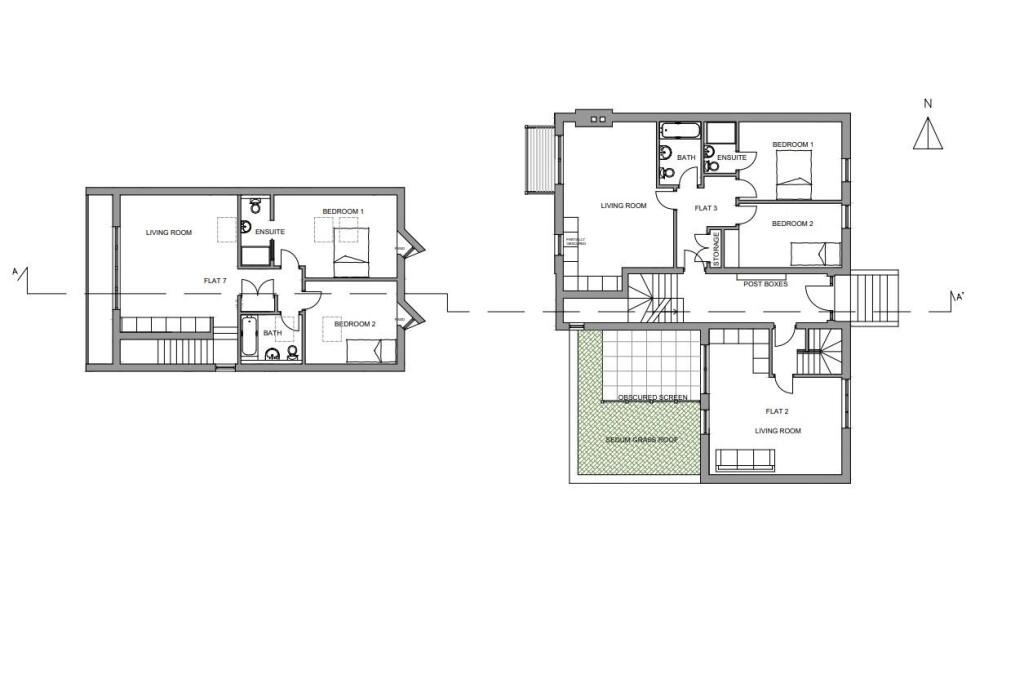
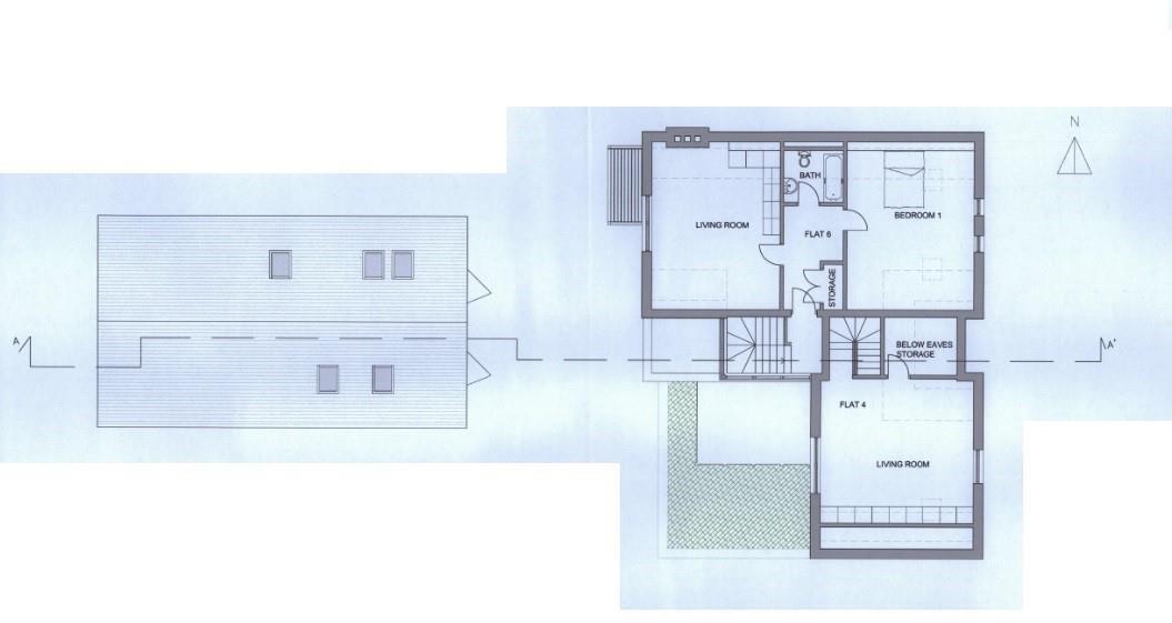
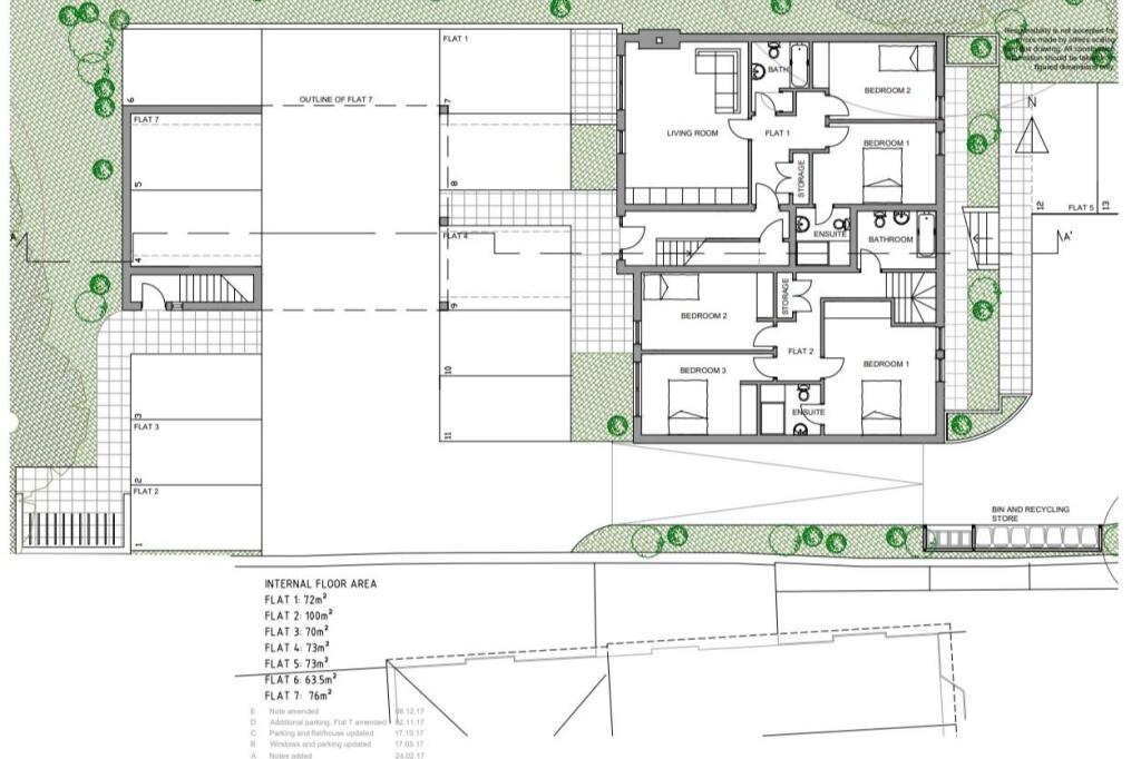
A cleared 0.49-acre freehold site in Weston‑super‑Mare with full planning consent (ref 17/P/5425/FUL) for seven residential units and an estimated GDV of £1.895m. The parcel is level, partially excavated and sold with vacant possession; CIL liability has been paid and the site is reported ready for foundations, which can reduce early construction lead-in time. The approved scheme mixes two‑bed apartments, a three‑bed duplex, a one‑bed flat and a two‑bed coach house with allocated off‑street parking and modest terraces.
This is aimed at developers or investors targeting a small coastal town scheme: the consented layout is deliverable without a full new planning application, and there is scope to tweak one flat to create an additional bedroom or explore small further development on the remaining land (both subject to consent). Local market advantages include good road and rail links to Bristol, nearby schools with good Ofsted ratings, and an affluent local area profile.
Material points to verify: planning was approved in 2018 with subsequent minor amendments and some conditions discharged — buyers must confirm current compliance and any outstanding conditions in the legal pack. Services, building regulation status and exact build costs are unverified; neighbouring relationships, drop in levels and detailed site constraints will affect final layouts and costs. The vendor’s information notes that photographs and measurements should be confirmed independently.
In short: a ready-to-build, medium‑sized infill plot with consented multi-unit residential delivery and early-stage site works complete, offering a relatively quick route to construction for a purchaser able to manage remaining consents, site surveys and build procurement.
Plot for sale in Edingworth Road, Edingworth, BS24 — £1,000,000 • 1 bed • 1 bath
Industrial park for sale in Land at Weston-Super-Mare, BS24 — POA • 1 bed • 1 bath
Commercial development for sale in Phase 5b Locking Parklands, Weston-super-Mare, BS24 7NN, BS24 — POA • 1 bed • 1 bath
8 bedroom house for sale in PLANNING | 8 BED HMO | £70K pa | WSM, BS23 — £285,000 • 8 bed • 8 bath • 2376 ft²
Land for sale in Banwell Road, Weston-Super-Mare, BS24 — £3,600,000 • 1 bed • 1 bath
Land for sale in Land to Rear 37 Alma Street, Weston-super-Mare, Avon, BS23 1RD, BS23 — £5,000 • 1 bed • 1 bath


























































































































