**Standout Features:**
- 3 bedrooms, ideal for families or first-time buyers
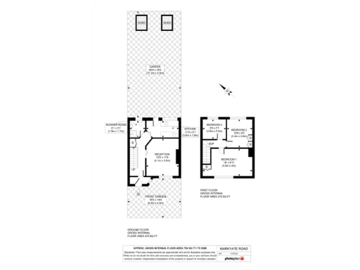
- Spacious 56'9" private rear garden with two sheds
- Separate fitted kitchen and ground floor shower room/WC
- Close proximity to Becontree Station and Parsloes Park
- Affordable council tax band C
**Essential Details:**
This mid-century terraced house located at RM8 2LD combines comfort with renovation potential, making it an excellent choice for young families or investors. Featuring three cozy bedrooms and a welcoming 13'6" x 11'9" reception room, the layout maximizes space while offering an inviting atmosphere. The separate fitted kitchen is perfect for family meals, and the ground floor shower room provides convenience for busy mornings.
Step outside to the expansive private rear garden, a rare find in city living, ideal for children's play or hosting gatherings—complete with two handy sheds for extra storage. The front garden adds a touch of charm, enhancing the property's curb appeal. Positioned near the vibrant Parsloes Park and just a brief walk to Becontree Station, this home caters to commuters and nature lovers alike.
While the property boasts a solid build from the post-war era, potential buyers should be aware of the outdated double glazing and consider options for modernization. Enjoy fast broadband and excellent mobile signal in this urban cultural hub with access to good local schools. Don’t miss your chance to secure a family-friendly abode where you can create lasting memories—properties like this don’t stay on the market long!
2 bedroom terraced house for sale in Ilchester Road, Dagenham, RM8 — £375,000 • 2 bed • 1 bath • 1080 ft²
3 bedroom terraced house for sale in Canonsleigh Road, Dagenham, RM9 — £375,000 • 3 bed • 1 bath • 945 ft²
3 bedroom terraced house for sale in Romsey Road, Dagenham, RM9 — £390,000 • 3 bed • 1 bath • 960 ft²
3 bedroom terraced house for sale in Davington Road, Dagenham, RM8 — £450,000 • 3 bed • 2 bath • 887 ft²
2 bedroom terraced house for sale in Langley Crescent, Dagenham, RM9 — £390,000 • 2 bed • 1 bath • 727 ft²
3 bedroom end of terrace house for sale in Parsloes Avenue, Dagenham, RM9 — £425,000 • 3 bed • 1 bath • 884 ft²














































