**Standout Features:**
- Charming 3-bedroom terraced house with potential for modernization
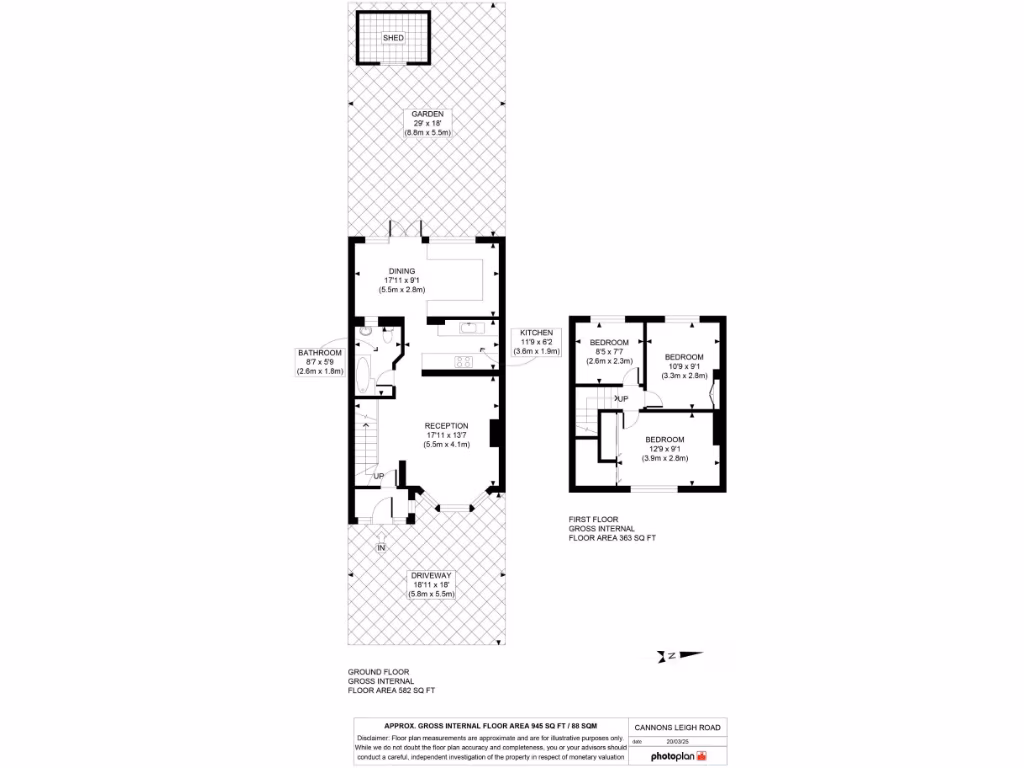
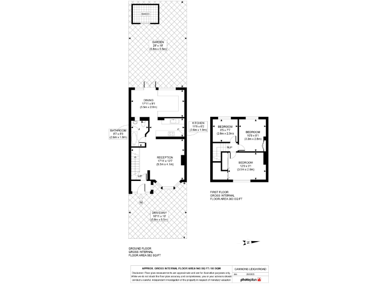
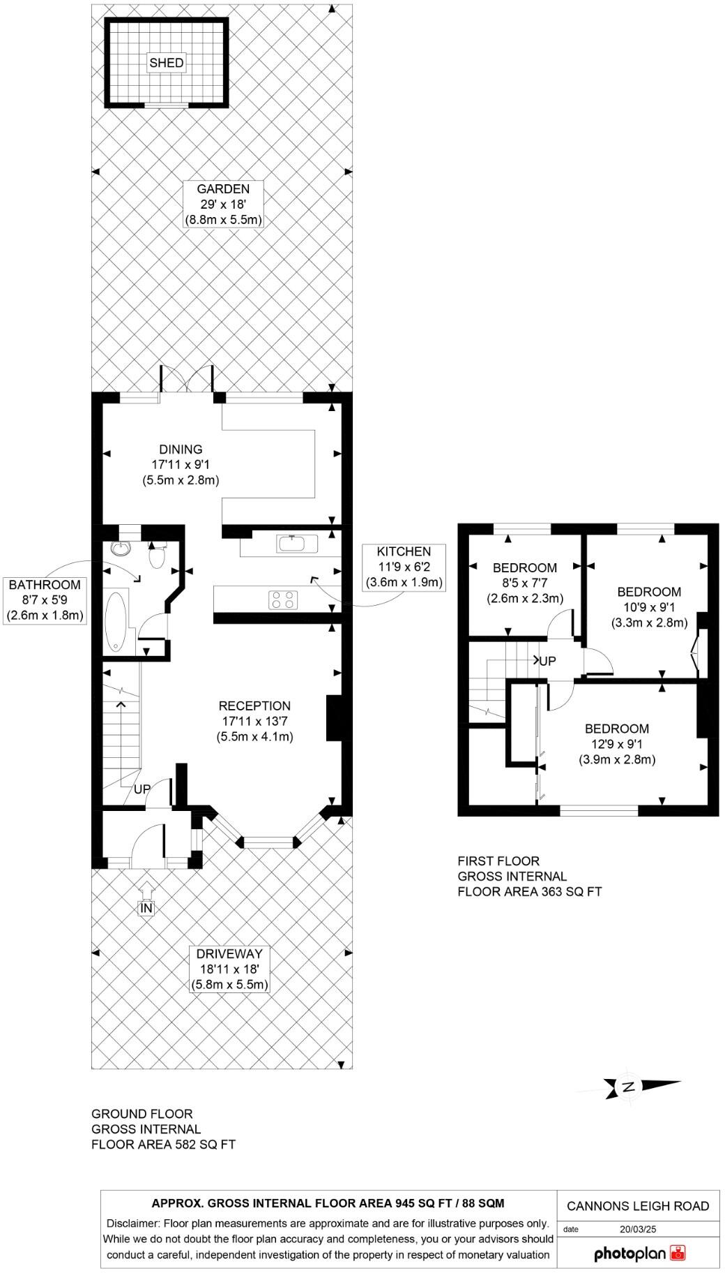
- Spacious reception room (17'11" x 13'7") and separate fitted kitchen
- Extended dining/utility room (17'11" x 9'1")
- Ground floor bathroom/WC
- Generous private rear garden (approx. 29' x 18') with a shed
- Off-street parking on a driveway (approx. 18'11" x 18')
- Close proximity to Becontree Station for easy city access
- Double glazing and gas central heating for comfort
**Potential Concerns:**
- Mid-20th-century exterior may require updates
- Walls assumed to be solid brick without insulation
Nestled in a vibrant community suited for families, this well-presented 3-bedroom terraced home offers excellent living space and outdoor potential for those looking to invest or settle down. The generous reception room and separate fitted kitchen are perfect for entertaining, while the dining/utility room adds versatility for modern lifestyles. With a shallow maintenance footprint and located just a stone's throw from Becontree Station, commuting is a breeze.
The sizeable private rear garden provides a serene escape or a play area for kids, while off-street parking caters to urban convenience. This property represents an excellent opportunity for first-time buyers or investors seeking potential rental income, with desirable local schools nearby and a vibrant urban culture at your doorstep. Priced attractively at the guide of £375,000 - £400,000, this delightful home won’t be on the market for long—make your move today!
3 bedroom terraced house for sale in Davington Road, Dagenham, RM8 — £450,000 • 3 bed • 2 bath • 887 ft²
3 bedroom terraced house for sale in Romsey Road, Dagenham, RM9 — £390,000 • 3 bed • 1 bath • 960 ft²
3 bedroom terraced house for sale in Lillechurch Road, Dagenham, RM8 — £400,000 • 3 bed • 1 bath • 1084 ft²
3 bedroom terraced house for sale in Wren Gardens, Dagenham, RM9 — £425,000 • 3 bed • 1 bath • 899 ft²
2 bedroom terraced house for sale in Rugby Gardens, Dagenham, RM9 — £350,000 • 2 bed • 1 bath • 720 ft²
4 bedroom end of terrace house for sale in Greenfield Road, Dagenham, RM9 — £450,000 • 4 bed • 1 bath • 1108 ft²






































































































