Characterful two-bed flat with private west-facing patio moments from Brighton seafront..
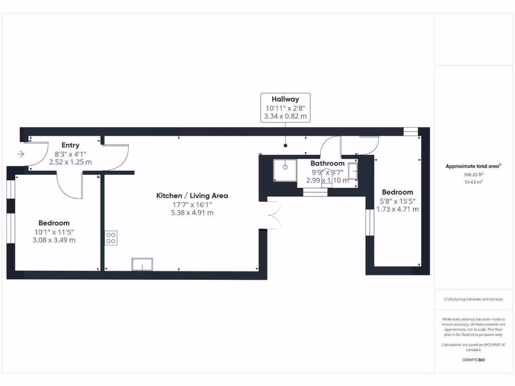
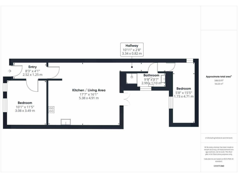
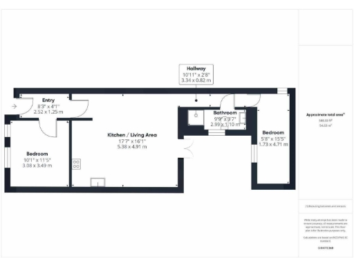
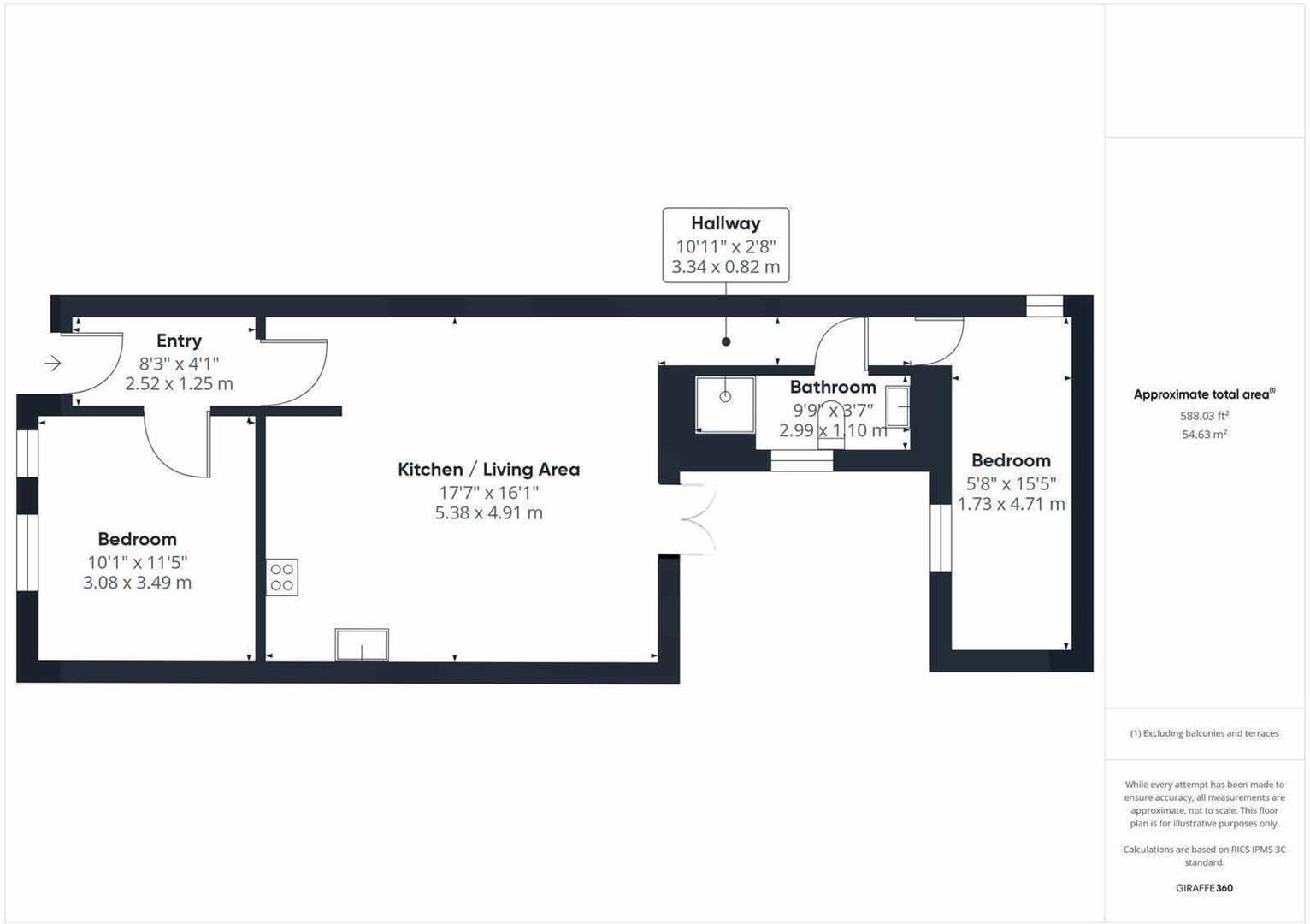
Two double bedrooms and open-plan kitchen/living room with patio access
Private west-facing patio — rare for central Brighton flats
Lower ground floor layout — may reduce natural light
Compact overall size: ~56.4 sqm / 588 sq ft
Leasehold with c.153 years remaining
Solid brick walls; likely limited cavity insulation
Fast broadband and excellent mobile signal
Located moments from seafront, shops and Brighton station
Set on the lower ground floor of an attractive Georgian end-of-terrace, this two-bedroom flat offers a rare private west-facing patio minutes from Brighton seafront. The open-plan kitchen/living area opens onto the patio via double doors, creating a useful outdoor extension for evening sun. Contemporary kitchen units and a modern shower room make the flat ready to occupy.
The property is compact (approximately 56.4 sqm / 588 sq ft) and best suited to first-time buyers, couples, or buy-to-let investors seeking a central Brighton location. It benefits from double glazing, mains gas central heating, excellent mobile signal and fast broadband speeds — practical pluses for city living and rental demand.
Material factors to note: the flat is leasehold (153 years remaining) and occupies a lower ground floor, which can offer reduced natural light compared with upper floors. The building’s solid brick construction likely has limited wall insulation. The local area is classified as a cosmopolitan, multicultural student neighbourhood with higher crime levels and greater area deprivation, which may affect long-term resale or rental positioning.
Brighton railway station, Western Road amenities and the seafront are all within easy walking distance, making this a convenient, characterful central base. Viewings are recommended to assess space, light and layout in person.
2 bedroom flat for sale in Lansdowne Place, Hove, BN3 — £425,000 • 2 bed • 1 bath • 753 ft²
2 bedroom maisonette for sale in Sillwood Street, Brighton, East Sussex, BN1 — £375,000 • 2 bed • 1 bath • 732 ft²
1 bedroom apartment for sale in Montpelier Road, Brighton, BN1 — £249,000 • 1 bed • 1 bath • 485 ft²
2 bedroom apartment for sale in Old Steine, Brighton, East Sussex, BN1 — £400,000 • 2 bed • 2 bath • 797 ft²
1 bedroom apartment for sale in Sillwood Place, Brighton, BN1 — £300,000 • 1 bed • 1 bath • 425 ft²
1 bedroom apartment for sale in Kings Road, Brighton, East Sussex, BN1 — £240,000 • 1 bed • 1 bath • 398 ft²


















































