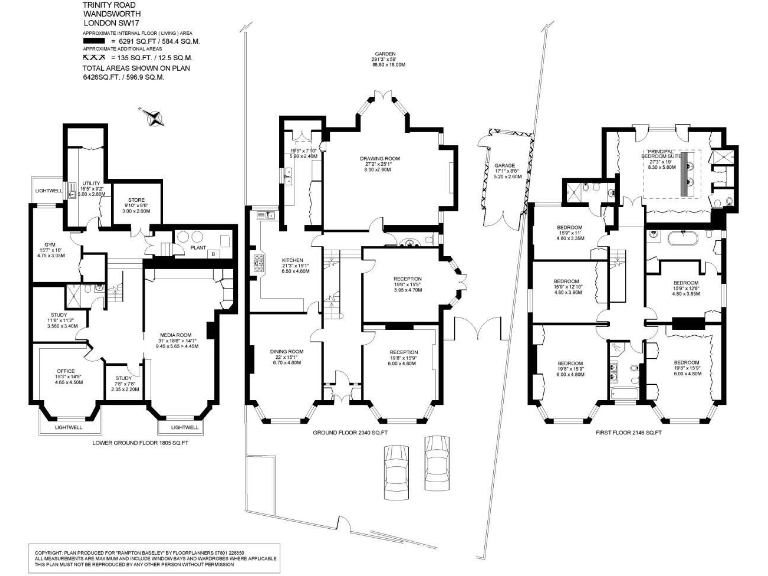
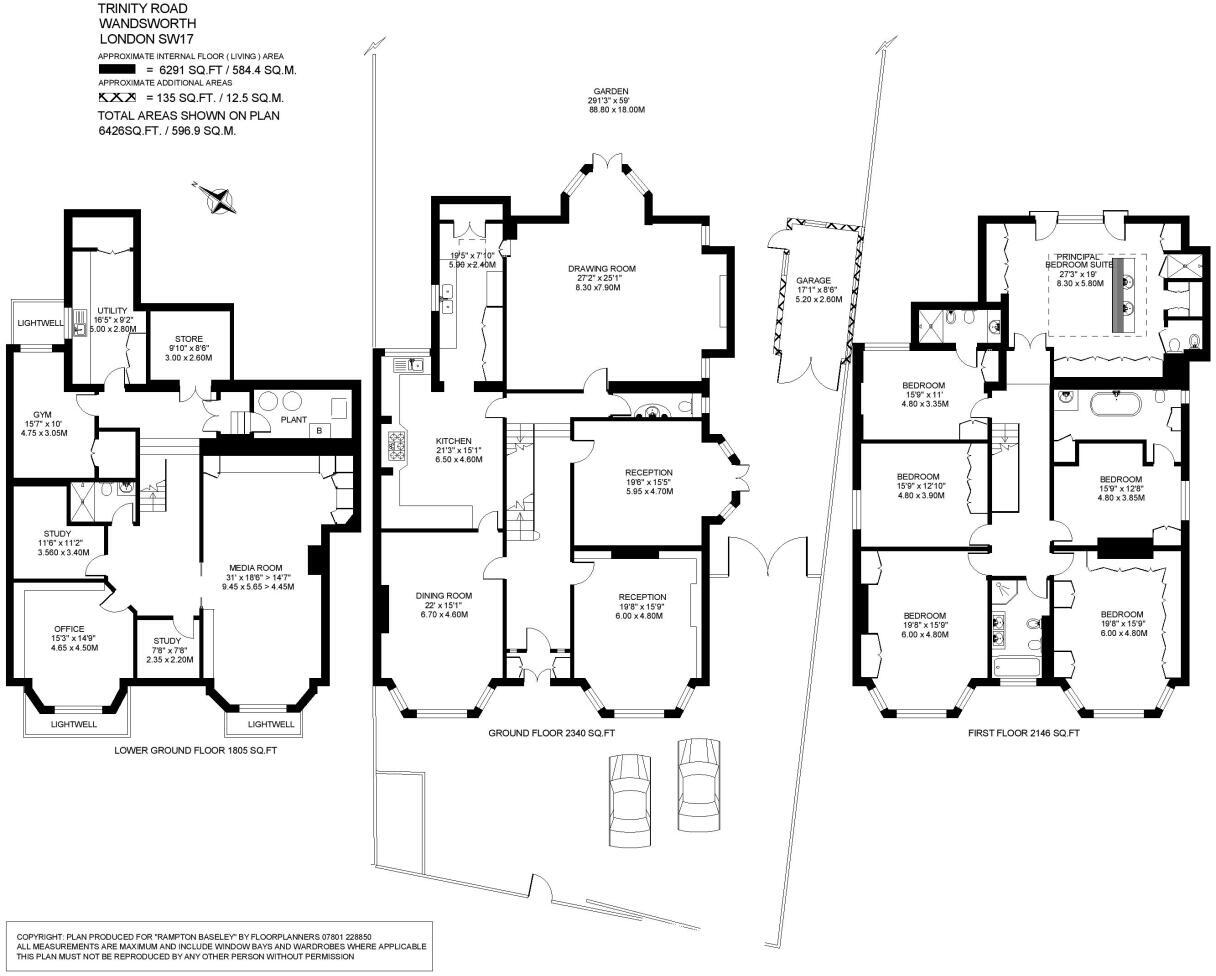
Grand Victorian family home with 291 ft garden and nearly 6,300 sq ft of living space.
Six generous double bedrooms with principal suite and domed glazed roof
A rare, double-fronted Victorian villa on Trinity Road offering almost 6,300 sq ft of family living and an exceptional 291 ft garden. The house is arranged over lower ground, ground and first floors and combines grand period detail — high ceilings, bay windows, marble fireplaces and cloisonné glass — with modern conveniences such as a commercial-grade internal Wi‑Fi network, Control 4 audio-visual system and integrated CCTV.
Accommodation suits a large or multi-generational family: six double bedrooms (principal suite with domed glazed roof and garden aspect), five bathrooms, four principal reception rooms, a sizeable kitchen/breakfast area, cinema/media room, gym, multiple studies and extensive lower-ground storage and utility space. The property sits on roughly a 0.5-acre plot with off-street parking behind automated gates and a detached garage — rare for this location and a key value driver.
The house is presented in excellent decorative order and ready to occupy. There is genuine scope to further enhance value: the large loft offers conversion potential (subject to planning) and the broad ground-floor footprint allows possibilities for internal reconfiguration or rear extension, if desired. Local transport links (Tooting Bec, Wandsworth Common) and several well-regarded schools make this particularly attractive to families.
Buyers should note a few material points: the building is pre-1900 with solid brick walls assumed to be uninsulated, the EPC is D indicating average energy performance, and double glazing install dates are not recorded. While presented well now, these factors may prompt future energy-improvement works. Council tax is low for the band, and the plot size and internal arrangement make this house a rare long-term family asset in SW17.
5 bedroom semi-detached house for sale in Trinity Road, SW17 — £1,400,000 • 5 bed • 4 bath • 2017 ft²
5 bedroom terraced house for sale in Brodrick Road, Wandsworth, London, SW17 — £2,950,000 • 5 bed • 4 bath • 3268 ft²
7 bedroom semi-detached house for sale in Dalebury Road, SW17 — £3,550,000 • 7 bed • 3 bath • 3518 ft²
5 bedroom house for sale in Trinity Road, Tooting Bec, SW17 — £1,100,000 • 5 bed • 2 bath • 1800 ft²
4 bedroom house for sale in Wiseton Road, Wandsworth, South West London, SW17, United Kingdom, SW17 — £2,750,000 • 4 bed • 4 bath • 3400 ft²
6 bedroom semi-detached house for sale in Nicosia Road, London, SW18., SW18 — £3,999,950 • 6 bed • 3 bath • 3512 ft²






































































