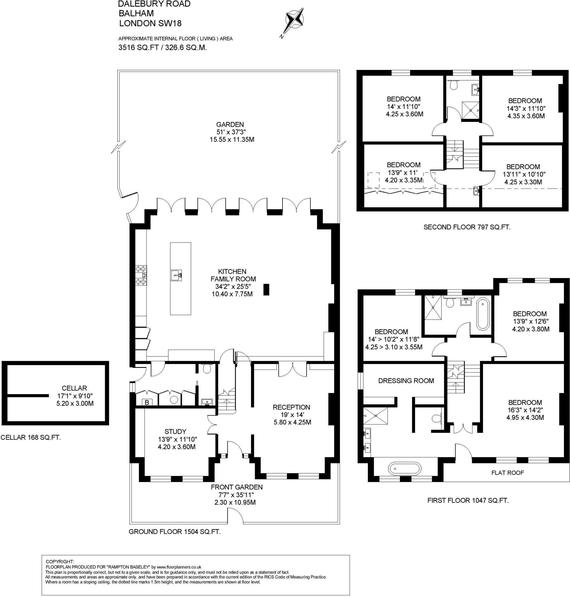
Rare 7‑bed Victorian semi with 51 ft south garden near Wandsworth Common.
- Over 3,500 sq ft of living space across three floors
- Seven bedrooms including a lateral principal suite with en‑suite
- Full‑width kitchen/dining/family room with four French doors
- 51 ft south‑facing garden with patio and mature planting
- Extensively remodelled; contemporary fixtures and integrated appliances
- Solid brick walls assumed without cavity insulation (may need upgrading)
- Three bathrooms for seven bedrooms — limited bathroom ratio
- Freehold tenure; Council Tax Band G (quite expensive)
A generous, double‑fronted Victorian semi offering over 3,500 sq ft of living space and a 51 ft south‑facing garden — a rare size for this part of SW17. The current owner has extensively remodelled the house to create a spectacular full‑width kitchen/dining/family room with four glazed French doors that flood the ground floor with light and open directly to the garden, ideal for family life and entertaining.
Seven bedrooms across the upper floors include a lateral principal suite with walk‑in dressing room and luxury en‑suite bathroom. High ceilings, period cornices and a formal reception room retain classic character while contemporary fittings, integrated Siemens appliances and a mix of boiler and underfloor heating provide modern comfort.
Practical details suit family needs and long‑term ownership: freehold tenure, double glazing installed post‑2002 and utility space off the kitchen. The house sits a short walk from Wandsworth Common, Bellevue Road amenities and Tooting Bec tube (around ten minutes), putting green spaces and schools within easy reach.
Buyers should note a few material points: the property’s solid brick walls are assumed to lack cavity insulation, so further insulation works may be needed for optimal efficiency. There are three bathrooms serving seven bedrooms, which may be tight for large households. Council Tax Band G is relatively expensive. Overall, this is a large, well‑appointed family home with substantial entertaining space and significant potential to adapt for multi‑generational or flexible family use.
4 bedroom terraced house for sale in Hendham Road, London, SW17 — £2,150,000 • 4 bed • 3 bath • 2313 ft²
4 bedroom terraced house for sale in Beechcroft Road, London, SW17 — £1,495,000 • 4 bed • 2 bath • 2024 ft²
5 bedroom semi-detached house for sale in Westover Road, SW18 — £2,750,000 • 5 bed • 3 bath • 2883 ft²
7 bedroom house for sale in Baskerville Road, Wandsworth, South West London, SW18, United Kingdom, SW18 — £4,750,000 • 7 bed • 4 bath • 3391 ft²
6 bedroom semi-detached house for sale in Nicosia Road, London, SW18., SW18 — £3,999,950 • 6 bed • 3 bath • 3512 ft²
4 bedroom terraced house for sale in Beechcroft Road, London, SW17 — £1,400,000 • 4 bed • 2 bath • 1846 ft²


























































